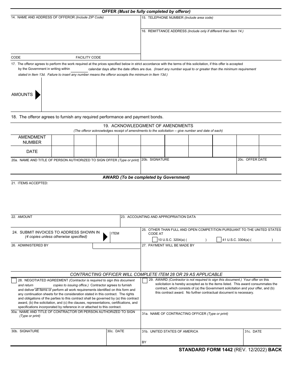
Form SF-1442 Solicitation, Offer, and Award (Construction, Alteration, or Repair)

Form SF-1442 Solicitation, Offer, and Award (Construction, Alteration, or Repair)

What Is Form SF-1442?

This is a legal form that was released by the U.S. General Services Administration on December 1, 2022 and used country-wide. As of today, no separate filing guidelines for the form are provided by the issuing department.

Form Details:

  • Released on December 1, 2022;
  • The latest available edition released by the U.S. General Services Administration;
  • Easy to use and ready to print;
  • Yours to fill out and keep for your records;
  • Compatible with most PDF-viewing applications;
  • Fill out the form in our online filing application.

Download a fillable version of Form SF-1442 by clicking the link below or browse more documents and templates provided by the U.S. General Services Administration.

ADVERTISEMENT

Other Revision

Download Form SF-1442 Solicitation, Offer, and Award (Construction, Alteration, or Repair)

4.5 of 5 (66 votes)
  • Form SF-1442 Solicitation, Offer, and Award (Construction, Alteration, or Repair)

    1

  • Form SF-1442 Solicitation, Offer, and Award (Construction, Alteration, or Repair), Page 2

    2

  • Form SF-1442 Solicitation, Offer, and Award (Construction, Alteration, or Repair), Page 1
  • Form SF-1442 Solicitation, Offer, and Award (Construction, Alteration, or Repair), Page 2
Prev 1 2 Next
ADVERTISEMENT