State Form 51270 Municipal Separate Storm Sewer System (Ms4) Notice of Intent (Noi) - Indiana

State Form 51270 Municipal Separate Storm Sewer System (Ms4) Notice of Intent (Noi) - Indiana

What Is State Form 51270?

This is a legal form that was released by the Indiana Department of Environmental Management - a government authority operating within Indiana. As of today, no separate filing guidelines for the form are provided by the issuing department.

FAQ

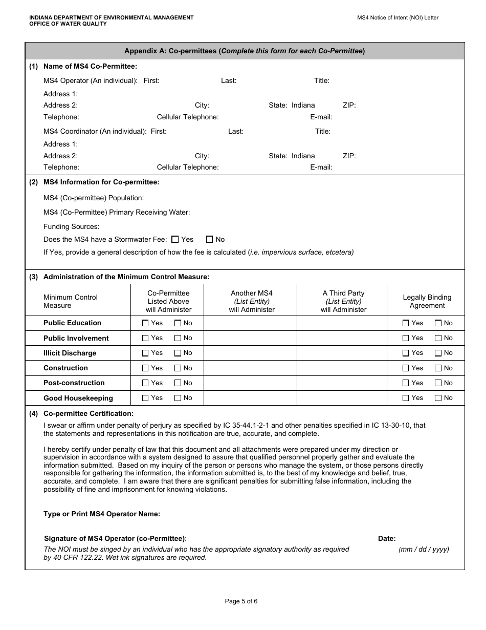
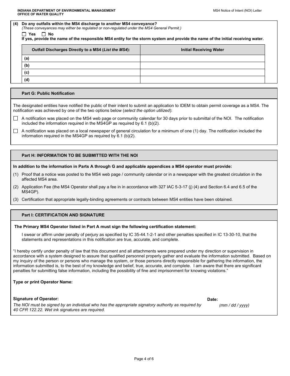
Q: What is Form 51270?A: Form 51270 is the Municipal Separate Storm Sewer System (MS4) Notice of Intent (NOI) for Indiana.

Q: Who is required to fill out Form 51270?A: Municipalities in Indiana with a separate storm sewer system are required to fill out Form 51270.

Q: What is a Municipal Separate Storm Sewer System (MS4)?A: A Municipal Separate Storm Sewer System (MS4) is a system of drainage infrastructure, such as pipes, ditches, and channels, that is owned and operated by a municipality or other public entity to collect and convey stormwater runoff.

Q: What is the purpose of Form 51270?A: The purpose of Form 51270 is to notify the Indiana Department of Environmental Management (IDEM) of a municipality's intent to operate a Municipal Separate Storm Sewer System (MS4) and comply with the requirements of the MS4 program.

Q: What information is required on Form 51270?A: Form 51270 requires information about the municipality, including its name, contact information, and a description of the MS4 system, as well as the signatures of the responsible official and the municipal governing body.

ADVERTISEMENT

Other Revision

Download State Form 51270 Municipal Separate Storm Sewer System (Ms4) Notice of Intent (Noi) - Indiana

4.7 of 5 (15 votes)
  • State Form 51270 Municipal Separate Storm Sewer System (Ms4) Notice of Intent (Noi) - Indiana

    1

  • State Form 51270 Municipal Separate Storm Sewer System (Ms4) Notice of Intent (Noi) - Indiana, Page 2

    2

  • State Form 51270 Municipal Separate Storm Sewer System (Ms4) Notice of Intent (Noi) - Indiana, Page 3

    3

  • State Form 51270 Municipal Separate Storm Sewer System (Ms4) Notice of Intent (Noi) - Indiana, Page 4

    4

  • State Form 51270 Municipal Separate Storm Sewer System (Ms4) Notice of Intent (Noi) - Indiana, Page 5

    5

  • State Form 51270 Municipal Separate Storm Sewer System (Ms4) Notice of Intent (Noi) - Indiana, Page 6

    6

  • State Form 51270 Municipal Separate Storm Sewer System (Ms4) Notice of Intent (Noi) - Indiana, Page 1
  • State Form 51270 Municipal Separate Storm Sewer System (Ms4) Notice of Intent (Noi) - Indiana, Page 2
  • State Form 51270 Municipal Separate Storm Sewer System (Ms4) Notice of Intent (Noi) - Indiana, Page 3
  • State Form 51270 Municipal Separate Storm Sewer System (Ms4) Notice of Intent (Noi) - Indiana, Page 4
  • State Form 51270 Municipal Separate Storm Sewer System (Ms4) Notice of Intent (Noi) - Indiana, Page 5
  • State Form 51270 Municipal Separate Storm Sewer System (Ms4) Notice of Intent (Noi) - Indiana, Page 6
Prev 1 2 3 4 5 6 Next
ADVERTISEMENT