BIA Form 6407 Housing Assistance Application

Notification Icon This version of the form is not currently in use and is provided for reference only. Download this version of BIA Form 6407 for the current year.

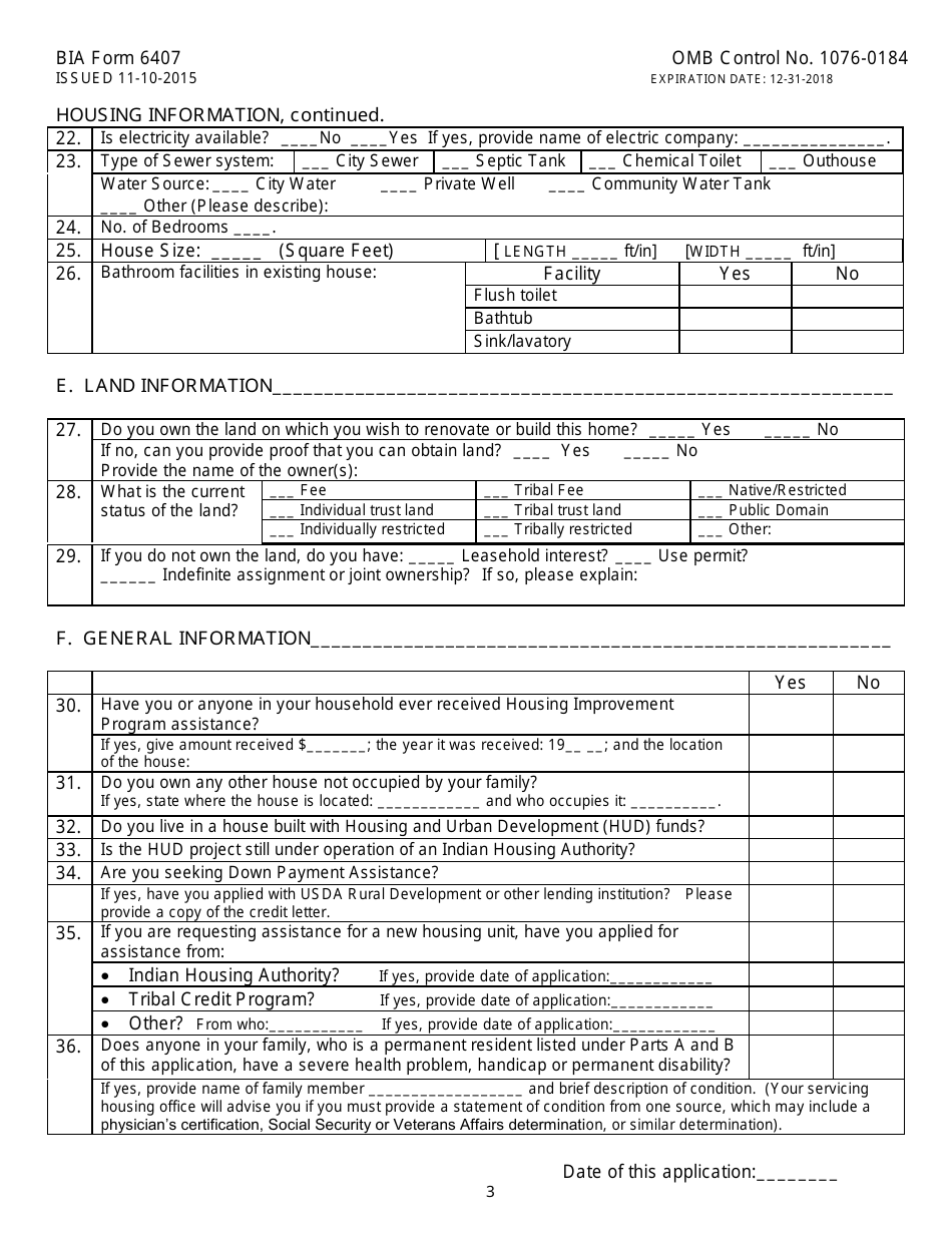
BIA Form 6407 Housing Assistance Application

What Is BIA Form 6407?

This is a legal form that was released by the U.S. Department of the Interior - Bureau of Indian Affairs on November 10, 2015 and used country-wide. Check the official instructions before completing and submitting the form.

FAQ

Q: What is BIA Form 6407?
A: BIA Form 6407 is the Housing Assistance Application form.

Q: What is the purpose of BIA Form 6407?
A: The purpose of BIA Form 6407 is to apply for housing assistance.

Q: How do I obtain BIA Form 6407?
A: You can obtain BIA Form 6407 by contacting the Bureau of Indian Affairs.

Q: Who is eligible to fill out BIA Form 6407?
A: Individuals who are seeking housing assistance from the Bureau of Indian Affairs are eligible to fill out this form.

Q: Is BIA Form 6407 specific to any particular region?
A: No, BIA Form 6407 is not specific to any particular region. It can be used nationwide.

ADVERTISEMENT

Form Details:

  • Released on November 10, 2015;
  • The latest available edition released by the U.S. Department of the Interior - Bureau of Indian Affairs;
  • Easy to use and ready to print;
  • Yours to fill out and keep for your records;
  • Compatible with most PDF-viewing applications;
  • Fill out the form in our online filing application.

Download a printable version of BIA Form 6407 by clicking the link below or browse more documents and templates provided by the U.S. Department of the Interior - Bureau of Indian Affairs.

Download BIA Form 6407 Housing Assistance Application

4.5 of 5 (62 votes)
  • BIA Form 6407 Housing Assistance Application

    1

  • BIA Form 6407 Housing Assistance Application, Page 2

    2

  • BIA Form 6407 Housing Assistance Application, Page 3

    3

  • BIA Form 6407 Housing Assistance Application, Page 4

    4

  • BIA Form 6407 Housing Assistance Application, Page 1
  • BIA Form 6407 Housing Assistance Application, Page 2
  • BIA Form 6407 Housing Assistance Application, Page 3
  • BIA Form 6407 Housing Assistance Application, Page 4
Prev 1 2 3 4 Next
ADVERTISEMENT