Form 102-4069 Application for Certificate of Approval to Construct, Modify, Repair, Remove or Abandon a Dam - Alaska

Form 102-4069 Application for Certificate of Approval to Construct, Modify, Repair, Remove or Abandon a Dam - Alaska

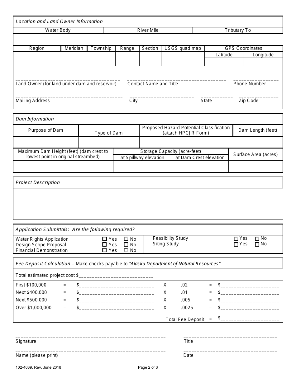
What Is Form 102-4069?

This is a legal form that was released by the Alaska Department of Natural Resources - a government authority operating within Alaska. As of today, no separate filing guidelines for the form are provided by the issuing department.

FAQ

Q: What is Form 102-4069?
A: Form 102-4069 is an application for a Certificate of Approval to construct, modify, repair, remove or abandon a dam in Alaska.

Q: Who needs to fill out Form 102-4069?
A: Anyone planning to construct, modify, repair, remove or abandon a dam in Alaska needs to fill out Form 102-4069.

Q: What is the purpose of Form 102-4069?
A: The purpose of Form 102-4069 is to apply for a Certificate of Approval from the state of Alaska to undertake dam-related activities.

Q: What information is required on Form 102-4069?
A: Form 102-4069 requires detailed information about the dam project, including its location, design plans, and potential impacts on the environment and surrounding communities.

Q: Are there any fees associated with Form 102-4069?
A: Yes, there are fees associated with submitting Form 102-4069. The specific fee amounts can be found on the application form.

Q: Who should I contact for more information about Form 102-4069?
A: For more information about Form 102-4069 and the dam approval process in Alaska, you can contact the Department of Natural Resources.

Q: Is Form 102-4069 applicable to all types of dams?
A: Yes, Form 102-4069 is applicable to all types of dams, including those for recreational purposes, water supply, irrigation, and flood control.

Q: What are the consequences of not submitting Form 102-4069?
A: Failing to submit Form 102-4069 and obtain the necessary Certificate of Approval can result in legal penalties and enforcement actions.

ADVERTISEMENT

Form Details:

  • Released on June 1, 2018;
  • The latest edition provided by the Alaska Department of Natural Resources;
  • Easy to use and ready to print;
  • Quick to customize;
  • Compatible with most PDF-viewing applications;
  • Fill out the form in our online filing application.

Download a fillable version of Form 102-4069 by clicking the link below or browse more documents and templates provided by the Alaska Department of Natural Resources.

Download Form 102-4069 Application for Certificate of Approval to Construct, Modify, Repair, Remove or Abandon a Dam - Alaska

4.5 of 5 (40 votes)
  • Form 102-4069 Application for Certificate of Approval to Construct, Modify, Repair, Remove or Abandon a Dam - Alaska

    1

  • Form 102-4069 Application for Certificate of Approval to Construct, Modify, Repair, Remove or Abandon a Dam - Alaska, Page 2

    2

  • Form 102-4069 Application for Certificate of Approval to Construct, Modify, Repair, Remove or Abandon a Dam - Alaska, Page 3

    3

  • Form 102-4069 Application for Certificate of Approval to Construct, Modify, Repair, Remove or Abandon a Dam - Alaska, Page 1
  • Form 102-4069 Application for Certificate of Approval to Construct, Modify, Repair, Remove or Abandon a Dam - Alaska, Page 2
  • Form 102-4069 Application for Certificate of Approval to Construct, Modify, Repair, Remove or Abandon a Dam - Alaska, Page 3
Prev 1 2 3 Next
ADVERTISEMENT

Related Documents