Form DBPR AID4003 Architecture Continuing Education Providers and Course Application

Form DBPR AID4003 Architecture Continuing Education Providers and Course Application

What Is Form DBPR AID4003?

This is a legal form that was released by the Federal Bureau of Investigation (FBI) on January 1, 2016 and used country-wide. As of today, no separate filing guidelines for the form are provided by the issuing department.

FAQ

Q: What is DBPR AID4003?
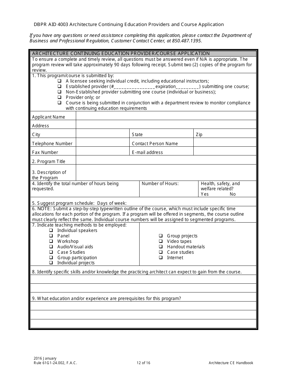
A: DBPR AID4003 is the application form for Architecture Continuing Education Providers and Course Application.

Q: Who is required to fill out this form?
A: This form is required to be filled out by Architecture Continuing Education Providers and Course Application.

Q: What is the purpose of this form?
A: The purpose of this form is to apply for approval as an Architecture Continuing Education Provider and to submit courses for continuing education credits.

Q: What type of courses can be submitted?
A: Courses related to architecture that meet the specified criteria can be submitted.

Q: What are the requirements for the courses to be approved?
A: The courses must meet the specified criteria and be related to architecture.

ADVERTISEMENT

Form Details:

  • Released on January 1, 2016;
  • The latest available edition released by the Federal Bureau of Investigation (FBI);
  • Easy to use and ready to print;
  • Yours to fill out and keep for your records;
  • Compatible with most PDF-viewing applications;
  • Fill out the form in our online filing application.

Download a printable version of Form DBPR AID4003 by clicking the link below or browse more documents and templates provided by the Federal Bureau of Investigation (FBI).

Download Form DBPR AID4003 Architecture Continuing Education Providers and Course Application

4.5 of 5 (13 votes)
  • Form DBPR AID4003 Architecture Continuing Education Providers and Course Application

    1

  • Form DBPR AID4003 Architecture Continuing Education Providers and Course Application, Page 2

    2

  • Form DBPR AID4003 Architecture Continuing Education Providers and Course Application, Page 3

    3

  • Form DBPR AID4003 Architecture Continuing Education Providers and Course Application, Page 4

    4

  • Form DBPR AID4003 Architecture Continuing Education Providers and Course Application, Page 5

    5

  • Form DBPR AID4003 Architecture Continuing Education Providers and Course Application, Page 6

    6

  • Form DBPR AID4003 Architecture Continuing Education Providers and Course Application, Page 7

    7

  • Form DBPR AID4003 Architecture Continuing Education Providers and Course Application, Page 8

    8

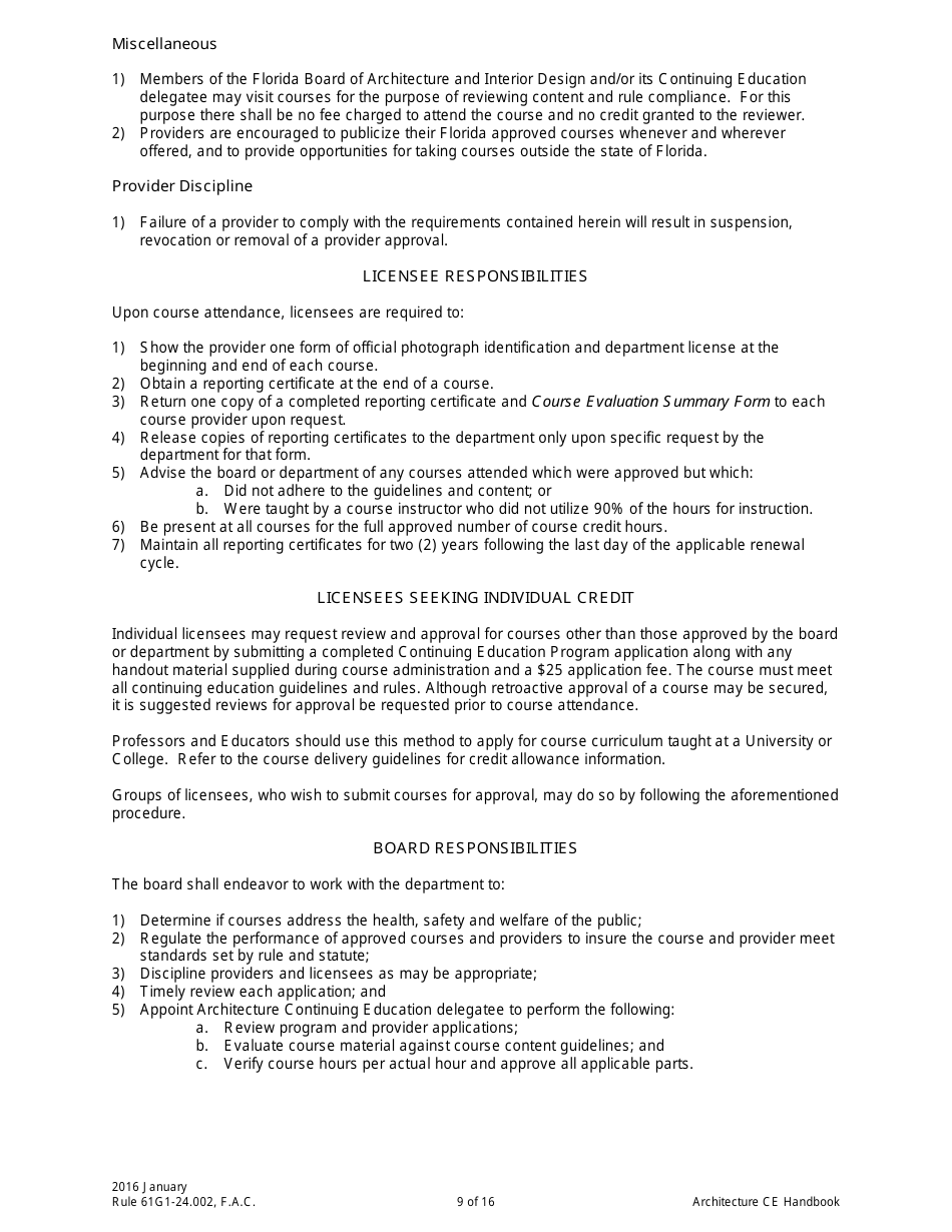
  • Form DBPR AID4003 Architecture Continuing Education Providers and Course Application, Page 9

    9

  • Form DBPR AID4003 Architecture Continuing Education Providers and Course Application, Page 10

    10

  • Form DBPR AID4003 Architecture Continuing Education Providers and Course Application, Page 11

    11

  • Form DBPR AID4003 Architecture Continuing Education Providers and Course Application, Page 12

    12

  • Form DBPR AID4003 Architecture Continuing Education Providers and Course Application, Page 13

    13

  • Form DBPR AID4003 Architecture Continuing Education Providers and Course Application, Page 14

    14

  • Form DBPR AID4003 Architecture Continuing Education Providers and Course Application, Page 15

    15

  • Form DBPR AID4003 Architecture Continuing Education Providers and Course Application, Page 16

    16

  • Form DBPR AID4003 Architecture Continuing Education Providers and Course Application, Page 1
  • Form DBPR AID4003 Architecture Continuing Education Providers and Course Application, Page 2
  • Form DBPR AID4003 Architecture Continuing Education Providers and Course Application, Page 3
  • Form DBPR AID4003 Architecture Continuing Education Providers and Course Application, Page 4
  • Form DBPR AID4003 Architecture Continuing Education Providers and Course Application, Page 5
  • Form DBPR AID4003 Architecture Continuing Education Providers and Course Application, Page 6
  • Form DBPR AID4003 Architecture Continuing Education Providers and Course Application, Page 7
  • Form DBPR AID4003 Architecture Continuing Education Providers and Course Application, Page 8
  • Form DBPR AID4003 Architecture Continuing Education Providers and Course Application, Page 9
  • Form DBPR AID4003 Architecture Continuing Education Providers and Course Application, Page 10
  • Form DBPR AID4003 Architecture Continuing Education Providers and Course Application, Page 11
  • Form DBPR AID4003 Architecture Continuing Education Providers and Course Application, Page 12
  • Form DBPR AID4003 Architecture Continuing Education Providers and Course Application, Page 13
  • Form DBPR AID4003 Architecture Continuing Education Providers and Course Application, Page 14
  • Form DBPR AID4003 Architecture Continuing Education Providers and Course Application, Page 15
  • Form DBPR AID4003 Architecture Continuing Education Providers and Course Application, Page 16
Prev 1 2 3 4 5 ... 16 Next
ADVERTISEMENT