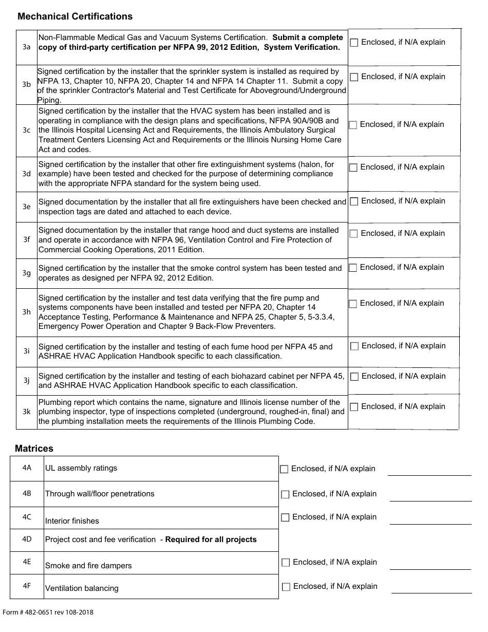
Form 482-0651 Final Occupancy Checklist Certifications for Request of Inspection - Illinois

Notification Icon This version of the form is not currently in use and is provided for reference only. Download this version of Form 482-0651 for the current year.

Form 482-0651 Final Occupancy Checklist Certifications for Request of Inspection - Illinois

What Is Form 482-0651?

This is a legal form that was released by the Illinois Department of Public Health - a government authority operating within Illinois. As of today, no separate filing guidelines for the form are provided by the issuing department.

Form Details:

  • Released on August 1, 2018;
  • The latest edition provided by the Illinois Department of Public Health;
  • Easy to use and ready to print;
  • Quick to customize;
  • Compatible with most PDF-viewing applications;
  • Fill out the form in our online filing application.

Download a fillable version of Form 482-0651 by clicking the link below or browse more documents and templates provided by the Illinois Department of Public Health.

ADVERTISEMENT

Download Form 482-0651 Final Occupancy Checklist Certifications for Request of Inspection - Illinois

4.6 of 5 (49 votes)
  • Form 482-0651 Final Occupancy Checklist Certifications for Request of Inspection - Illinois

    1

  • Form 482-0651 Final Occupancy Checklist Certifications for Request of Inspection - Illinois, Page 2

    2

  • Form 482-0651 Final Occupancy Checklist Certifications for Request of Inspection - Illinois, Page 1
  • Form 482-0651 Final Occupancy Checklist Certifications for Request of Inspection - Illinois, Page 2
Prev 1 2 Next
ADVERTISEMENT