State Form 52558 (PI-17) Oaq Process Information Application - Blasting Operations - Indiana

State Form 52558 (PI-17) Oaq Process Information Application - Blasting Operations - Indiana

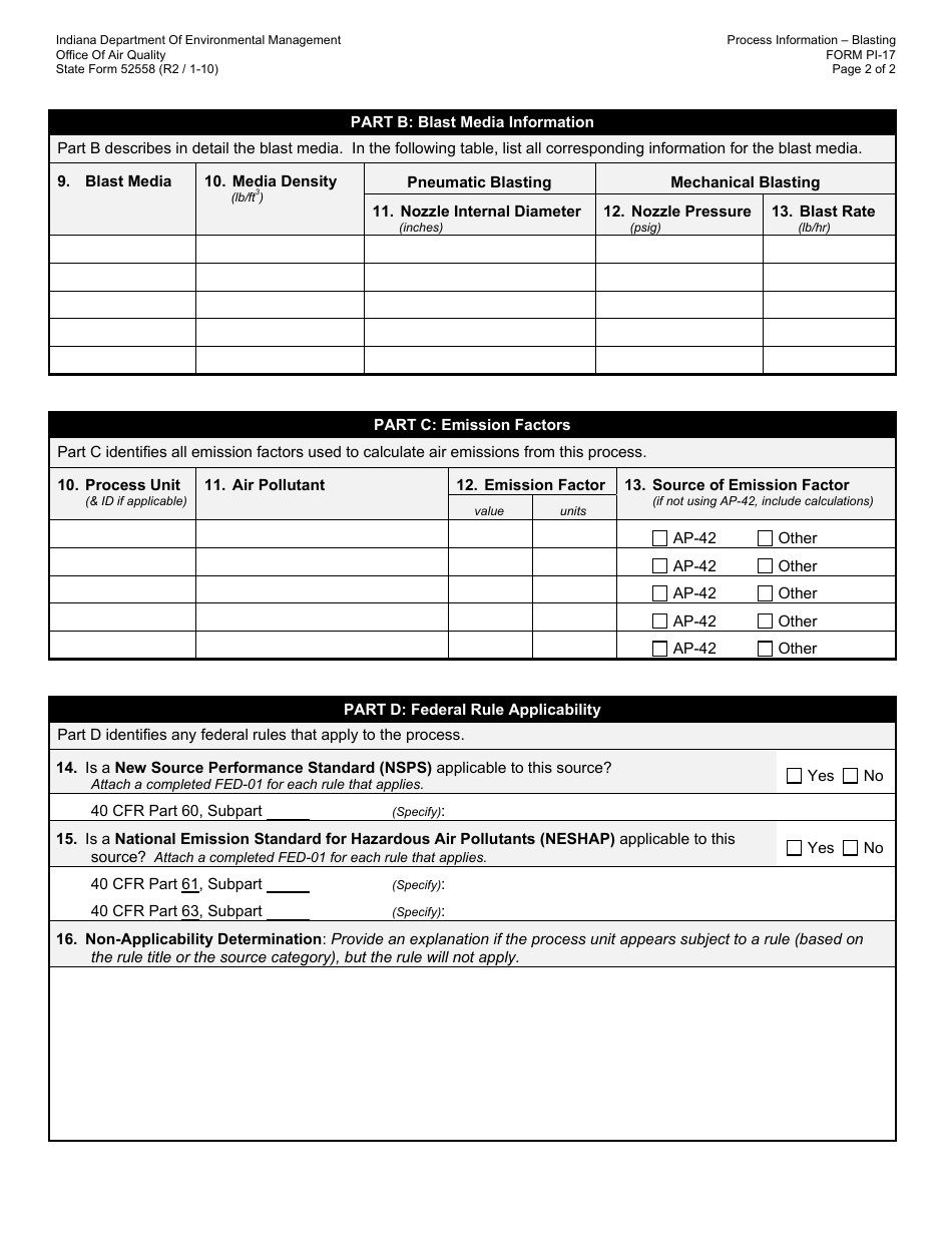
What Is State Form 52558 (PI-17)?

This is a legal form that was released by the Indiana Department of Environmental Management - a government authority operating within Indiana. As of today, no separate filing guidelines for the form are provided by the issuing department.

FAQ

Q: What is State Form 52558 (PI-17) Oaq?
A: State Form 52558 (PI-17) Oaq is an application form for Blasting Operations in Indiana.

Q: What is the purpose of the application?
A: The application is used to provide information about blasting operations in Indiana.

Q: Who needs to fill out this form?
A: Anyone planning to perform blasting operations in Indiana needs to fill out this form.

Q: What information is required in the application?
A: The application requires information such as the purpose of the blasting, location, timing, and safety measures.

Q: Is there a fee for submitting the application?
A: There may be a fee associated with submitting the application, which can vary depending on the jurisdiction.

Q: Are there any specific requirements for blasting operations in Indiana?
A: Yes, Indiana has specific regulations and requirements for blasting operations, including safety measures and permits.

Q: Who can I contact for more information about blasting operations in Indiana?
A: For more information, you can contact the relevant state agency or department responsible for regulating blasting operations in Indiana.

ADVERTISEMENT

Form Details:

  • Released on January 1, 2010;
  • The latest edition provided by the Indiana Department of Environmental Management;
  • Easy to use and ready to print;
  • Quick to customize;
  • Compatible with most PDF-viewing applications;
  • Fill out the form in our online filing application.

Download a fillable version of State Form 52558 (PI-17) by clicking the link below or browse more documents and templates provided by the Indiana Department of Environmental Management.

Download State Form 52558 (PI-17) Oaq Process Information Application - Blasting Operations - Indiana

4.3 of 5 (59 votes)
  • State Form 52558 (PI-17) Oaq Process Information Application - Blasting Operations - Indiana

    1

  • State Form 52558 (PI-17) Oaq Process Information Application - Blasting Operations - Indiana, Page 2

    2

  • State Form 52558 (PI-17) Oaq Process Information Application - Blasting Operations - Indiana, Page 1
  • State Form 52558 (PI-17) Oaq Process Information Application - Blasting Operations - Indiana, Page 2
Prev 1 2 Next
ADVERTISEMENT

Related Documents