State Form 54166 State Cleanup Program Independent Closure Process Site Closure - Indiana

Notification Icon This version of the form is not currently in use and is provided for reference only. Download this version of State Form 54166 for the current year.

State Form 54166 State Cleanup Program Independent Closure Process Site Closure - Indiana

What Is State Form 54166?

This is a legal form that was released by the Indiana Department of Environmental Management - a government authority operating within Indiana. As of today, no separate filing guidelines for the form are provided by the issuing department.

FAQ

Q: What is Form 54166?
A: Form 54166 is a document used for the State Cleanup Program Independent Closure ProcessSite Closure in Indiana.

Q: What is the State Cleanup Program Independent Closure Process?
A: The State Cleanup Program Independent Closure Process is a process in Indiana for closing cleanup sites.

Q: What is the purpose of Form 54166?
A: The purpose of Form 54166 is to facilitate the closure of sites in the State Cleanup Program in Indiana.

Q: How can I use Form 54166?
A: If you need to close a cleanup site in the State Cleanup Program in Indiana, you can use Form 54166 to initiate the closure process.

Q: Is Form 54166 specific to Indiana?
A: Yes, Form 54166 is specific to the State Cleanup Program in Indiana.

ADVERTISEMENT

Form Details:

  • Released on November 1, 2013;
  • The latest edition provided by the Indiana Department of Environmental Management;
  • Easy to use and ready to print;
  • Quick to customize;
  • Compatible with most PDF-viewing applications;
  • Fill out the form in our online filing application.

Download a fillable version of State Form 54166 by clicking the link below or browse more documents and templates provided by the Indiana Department of Environmental Management.

Download State Form 54166 State Cleanup Program Independent Closure Process Site Closure - Indiana

4.4 of 5 (61 votes)
  • State Form 54166 State Cleanup Program Independent Closure Process Site Closure - Indiana

    1

  • State Form 54166 State Cleanup Program Independent Closure Process Site Closure - Indiana, Page 2

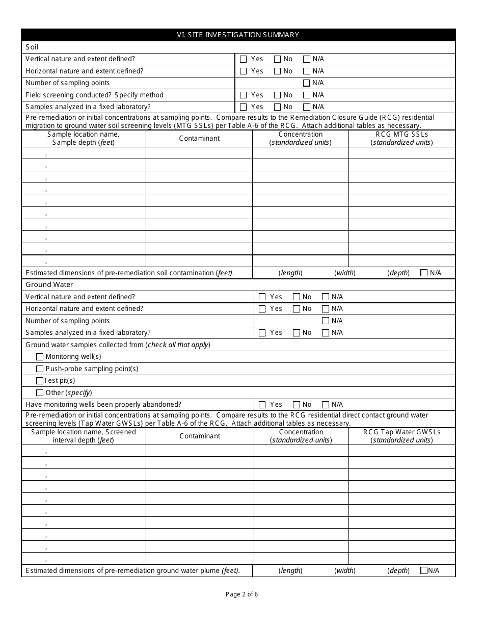
    2

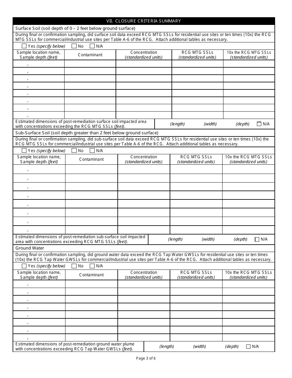
  • State Form 54166 State Cleanup Program Independent Closure Process Site Closure - Indiana, Page 3

    3

  • State Form 54166 State Cleanup Program Independent Closure Process Site Closure - Indiana, Page 4

    4

  • State Form 54166 State Cleanup Program Independent Closure Process Site Closure - Indiana, Page 5

    5

  • State Form 54166 State Cleanup Program Independent Closure Process Site Closure - Indiana, Page 6

    6

  • State Form 54166 State Cleanup Program Independent Closure Process Site Closure - Indiana, Page 1
  • State Form 54166 State Cleanup Program Independent Closure Process Site Closure - Indiana, Page 2
  • State Form 54166 State Cleanup Program Independent Closure Process Site Closure - Indiana, Page 3
  • State Form 54166 State Cleanup Program Independent Closure Process Site Closure - Indiana, Page 4
  • State Form 54166 State Cleanup Program Independent Closure Process Site Closure - Indiana, Page 5
  • State Form 54166 State Cleanup Program Independent Closure Process Site Closure - Indiana, Page 6
Prev 1 2 3 4 5 6 Next
ADVERTISEMENT

Related Documents