State Form 56554 Underground Storage Tank Closure Report - Indiana

Notification Icon This version of the form is not currently in use and is provided for reference only. Download this version of State Form 56554 for the current year.

State Form 56554 Underground Storage Tank Closure Report - Indiana

What Is State Form 56554?

This is a legal form that was released by the Indiana Department of Environmental Management - a government authority operating within Indiana. Check the official instructions before completing and submitting the form.

FAQ

Q: What is Form 56554?
A: Form 56554 is the Underground Storage TankClosure Report in Indiana.

Q: Who needs to fill out Form 56554?
A: The owners/operators of underground storage tanks in Indiana need to fill out Form 56554.

Q: What is the purpose of Form 56554?
A: The purpose of Form 56554 is to report the closure of underground storage tanks in Indiana.

Q: What information is required on Form 56554?
A: Form 56554 requires information such as the tank owner/operator details, closure method, and documentation of the closure.

Q: What are the consequences of not submitting Form 56554?
A: Failure to submit Form 56554 or providing false information may result in penalties and legal consequences.

ADVERTISEMENT

Form Details:

  • Released on September 1, 2018;
  • The latest edition provided by the Indiana Department of Environmental Management;
  • Easy to use and ready to print;
  • Quick to customize;
  • Compatible with most PDF-viewing applications;
  • Fill out the form in our online filing application.

Download a fillable version of State Form 56554 by clicking the link below or browse more documents and templates provided by the Indiana Department of Environmental Management.

Download State Form 56554 Underground Storage Tank Closure Report - Indiana

4.3 of 5 (54 votes)
  • State Form 56554 Underground Storage Tank Closure Report - Indiana

    1

  • State Form 56554 Underground Storage Tank Closure Report - Indiana, Page 2

    2

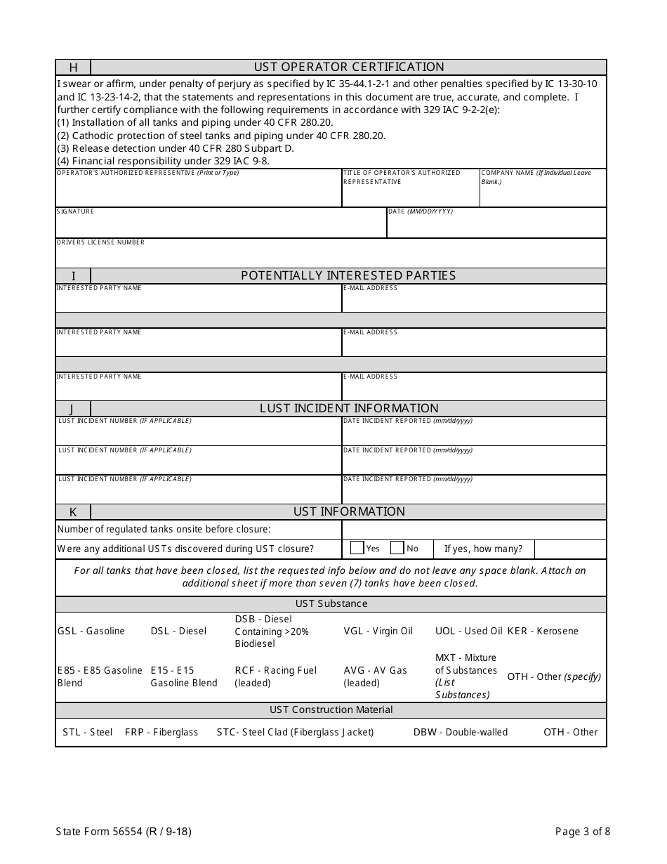
  • State Form 56554 Underground Storage Tank Closure Report - Indiana, Page 3

    3

  • State Form 56554 Underground Storage Tank Closure Report - Indiana, Page 4

    4

  • State Form 56554 Underground Storage Tank Closure Report - Indiana, Page 5

    5

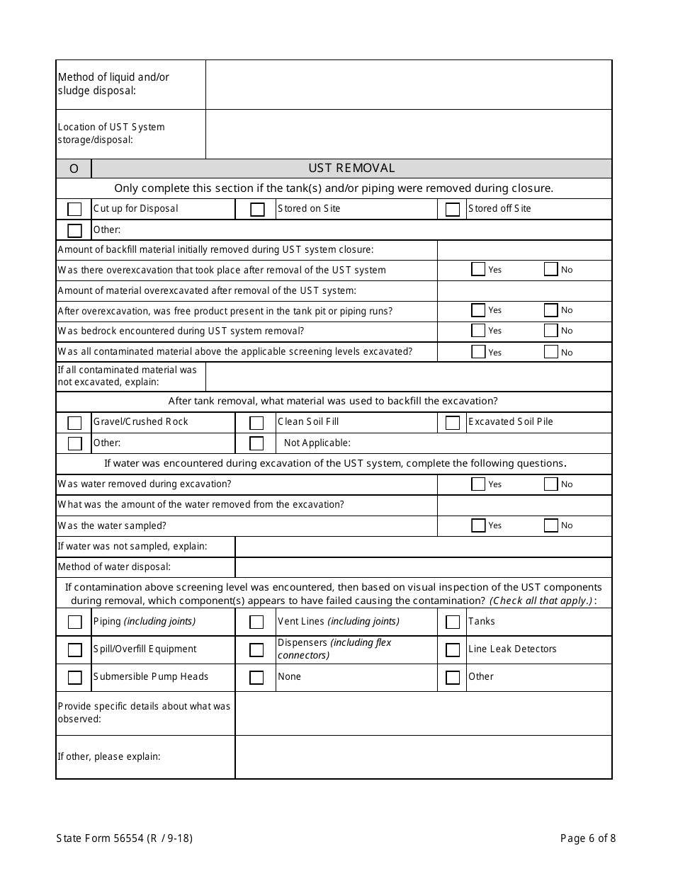
  • State Form 56554 Underground Storage Tank Closure Report - Indiana, Page 6

    6

  • State Form 56554 Underground Storage Tank Closure Report - Indiana, Page 7

    7

  • State Form 56554 Underground Storage Tank Closure Report - Indiana, Page 8

    8

  • State Form 56554 Underground Storage Tank Closure Report - Indiana, Page 1
  • State Form 56554 Underground Storage Tank Closure Report - Indiana, Page 2
  • State Form 56554 Underground Storage Tank Closure Report - Indiana, Page 3
  • State Form 56554 Underground Storage Tank Closure Report - Indiana, Page 4
  • State Form 56554 Underground Storage Tank Closure Report - Indiana, Page 5
  • State Form 56554 Underground Storage Tank Closure Report - Indiana, Page 6
  • State Form 56554 Underground Storage Tank Closure Report - Indiana, Page 7
  • State Form 56554 Underground Storage Tank Closure Report - Indiana, Page 8
Prev 1 2 3 4 5 ... 8 Next
ADVERTISEMENT