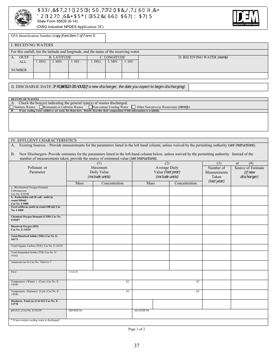
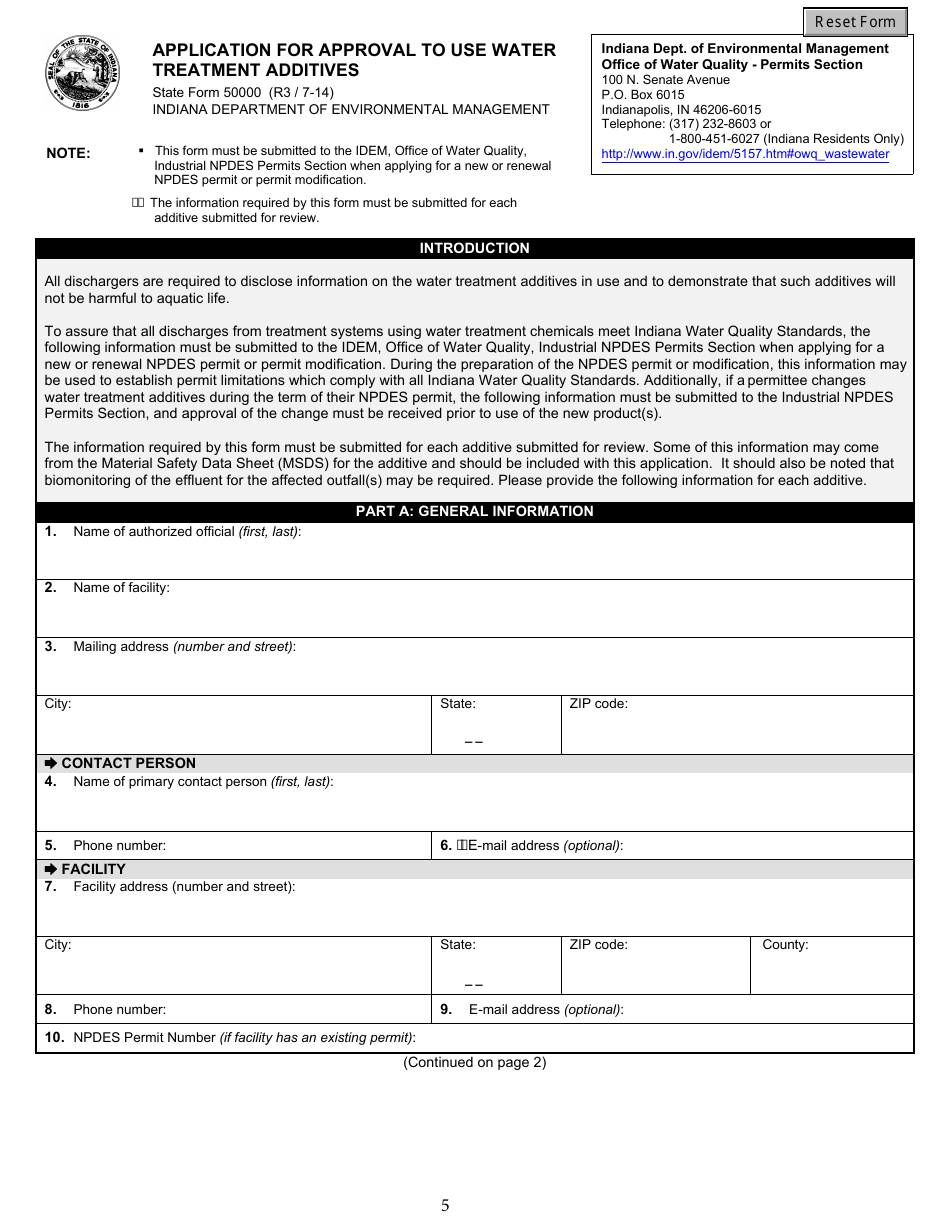
State Form 55639 National Pollutant Discharge Elimination System (Npdes) Permit Application Package 2e for Permit to Discharge Wastewater Proposed or Existing Nonprocess Wastewater Only Dischargers - Indiana

State Form 55639 National Pollutant Discharge Elimination System (Npdes) Permit Application Package 2e for Permit to Discharge Wastewater Proposed or Existing Nonprocess Wastewater Only Dischargers - Indiana

What Is State Form 55639?

This is a legal form that was released by the Indiana Department of Environmental Management - a government authority operating within Indiana. As of today, no separate filing guidelines for the form are provided by the issuing department.

FAQ

Q: What is Form 55639?
A: Form 55639 is the National Pollutant Discharge Elimination System (NPDES) Permit Application Package 2e for Permit to Discharge Wastewater Proposed or Existing Nonprocess Wastewater Only Dischargers.

Q: Who needs to file Form 55639?
A: Those who are proposed or existing nonprocess wastewater only dischargers in Indiana need to file Form 55639.

Q: What is the purpose of Form 55639?
A: The purpose of Form 55639 is to apply for a permit to discharge wastewater for nonprocess wastewater only dischargers.

Q: Are there any fees associated with filing Form 55639?
A: Yes, there may be fees associated with filing Form 55639. Please check with the regulatory agency for the specific fee requirements.

Q: What should be included in the Form 55639 application package?
A: The Form 55639 application package should include the completed application form, supporting documentation, and any required fees.

Q: What happens after submitting Form 55639?
A: After submitting Form 55639, the regulatory agency will review the application and make a decision on whether to issue the permit or request additional information.

Q: How long does it take to process the Form 55639 application?
A: The processing time for the Form 55639 application can vary. It is best to check with the regulatory agency for the estimated processing time.

Q: Can I discharge wastewater without a permit?
A: No, it is illegal to discharge wastewater without a permit. It is important to obtain the necessary permits to comply with environmental regulations.

ADVERTISEMENT

Form Details:

  • Released on August 1, 2014;
  • The latest edition provided by the Indiana Department of Environmental Management;
  • Easy to use and ready to print;
  • Quick to customize;
  • Compatible with most PDF-viewing applications;
  • Fill out the form in our online filing application.

Download a fillable version of State Form 55639 by clicking the link below or browse more documents and templates provided by the Indiana Department of Environmental Management.

Download State Form 55639 National Pollutant Discharge Elimination System (Npdes) Permit Application Package 2e for Permit to Discharge Wastewater Proposed or Existing Nonprocess Wastewater Only Dischargers - Indiana

4.6 of 5 (25 votes)
  • State Form 55639 National Pollutant Discharge Elimination System (Npdes) Permit Application Package 2e for Permit to Discharge Wastewater Proposed or Existing Nonprocess Wastewater Only Dischargers - Indiana

    1

  • State Form 55639 National Pollutant Discharge Elimination System (Npdes) Permit Application Package 2e for Permit to Discharge Wastewater Proposed or Existing Nonprocess Wastewater Only Dischargers - Indiana, Page 2

    2

  • State Form 55639 National Pollutant Discharge Elimination System (Npdes) Permit Application Package 2e for Permit to Discharge Wastewater Proposed or Existing Nonprocess Wastewater Only Dischargers - Indiana, Page 3

    3

  • State Form 55639 National Pollutant Discharge Elimination System (Npdes) Permit Application Package 2e for Permit to Discharge Wastewater Proposed or Existing Nonprocess Wastewater Only Dischargers - Indiana, Page 4

    4

  • State Form 55639 National Pollutant Discharge Elimination System (Npdes) Permit Application Package 2e for Permit to Discharge Wastewater Proposed or Existing Nonprocess Wastewater Only Dischargers - Indiana, Page 5

    5

  • State Form 55639 National Pollutant Discharge Elimination System (Npdes) Permit Application Package 2e for Permit to Discharge Wastewater Proposed or Existing Nonprocess Wastewater Only Dischargers - Indiana, Page 6

    6

  • State Form 55639 National Pollutant Discharge Elimination System (Npdes) Permit Application Package 2e for Permit to Discharge Wastewater Proposed or Existing Nonprocess Wastewater Only Dischargers - Indiana, Page 7

    7

  • State Form 55639 National Pollutant Discharge Elimination System (Npdes) Permit Application Package 2e for Permit to Discharge Wastewater Proposed or Existing Nonprocess Wastewater Only Dischargers - Indiana, Page 8

    8

  • State Form 55639 National Pollutant Discharge Elimination System (Npdes) Permit Application Package 2e for Permit to Discharge Wastewater Proposed or Existing Nonprocess Wastewater Only Dischargers - Indiana, Page 9

    9

  • State Form 55639 National Pollutant Discharge Elimination System (Npdes) Permit Application Package 2e for Permit to Discharge Wastewater Proposed or Existing Nonprocess Wastewater Only Dischargers - Indiana, Page 10

    10

  • State Form 55639 National Pollutant Discharge Elimination System (Npdes) Permit Application Package 2e for Permit to Discharge Wastewater Proposed or Existing Nonprocess Wastewater Only Dischargers - Indiana, Page 11

    11

  • State Form 55639 National Pollutant Discharge Elimination System (Npdes) Permit Application Package 2e for Permit to Discharge Wastewater Proposed or Existing Nonprocess Wastewater Only Dischargers - Indiana, Page 12

    12

  • State Form 55639 National Pollutant Discharge Elimination System (Npdes) Permit Application Package 2e for Permit to Discharge Wastewater Proposed or Existing Nonprocess Wastewater Only Dischargers - Indiana, Page 13

    13

  • State Form 55639 National Pollutant Discharge Elimination System (Npdes) Permit Application Package 2e for Permit to Discharge Wastewater Proposed or Existing Nonprocess Wastewater Only Dischargers - Indiana, Page 14

    14

  • State Form 55639 National Pollutant Discharge Elimination System (Npdes) Permit Application Package 2e for Permit to Discharge Wastewater Proposed or Existing Nonprocess Wastewater Only Dischargers - Indiana, Page 15

    15

  • State Form 55639 National Pollutant Discharge Elimination System (Npdes) Permit Application Package 2e for Permit to Discharge Wastewater Proposed or Existing Nonprocess Wastewater Only Dischargers - Indiana, Page 16

    16

  • State Form 55639 National Pollutant Discharge Elimination System (Npdes) Permit Application Package 2e for Permit to Discharge Wastewater Proposed or Existing Nonprocess Wastewater Only Dischargers - Indiana, Page 17

    17

  • State Form 55639 National Pollutant Discharge Elimination System (Npdes) Permit Application Package 2e for Permit to Discharge Wastewater Proposed or Existing Nonprocess Wastewater Only Dischargers - Indiana, Page 18

    18

  • State Form 55639 National Pollutant Discharge Elimination System (Npdes) Permit Application Package 2e for Permit to Discharge Wastewater Proposed or Existing Nonprocess Wastewater Only Dischargers - Indiana, Page 19

    19

  • State Form 55639 National Pollutant Discharge Elimination System (Npdes) Permit Application Package 2e for Permit to Discharge Wastewater Proposed or Existing Nonprocess Wastewater Only Dischargers - Indiana, Page 20

    20

  • State Form 55639 National Pollutant Discharge Elimination System (Npdes) Permit Application Package 2e for Permit to Discharge Wastewater Proposed or Existing Nonprocess Wastewater Only Dischargers - Indiana, Page 21

    21

  • State Form 55639 National Pollutant Discharge Elimination System (Npdes) Permit Application Package 2e for Permit to Discharge Wastewater Proposed or Existing Nonprocess Wastewater Only Dischargers - Indiana, Page 22

    22

  • State Form 55639 National Pollutant Discharge Elimination System (Npdes) Permit Application Package 2e for Permit to Discharge Wastewater Proposed or Existing Nonprocess Wastewater Only Dischargers - Indiana, Page 23

    23

  • State Form 55639 National Pollutant Discharge Elimination System (Npdes) Permit Application Package 2e for Permit to Discharge Wastewater Proposed or Existing Nonprocess Wastewater Only Dischargers - Indiana, Page 24

    24

  • State Form 55639 National Pollutant Discharge Elimination System (Npdes) Permit Application Package 2e for Permit to Discharge Wastewater Proposed or Existing Nonprocess Wastewater Only Dischargers - Indiana, Page 25

    25

  • State Form 55639 National Pollutant Discharge Elimination System (Npdes) Permit Application Package 2e for Permit to Discharge Wastewater Proposed or Existing Nonprocess Wastewater Only Dischargers - Indiana, Page 26

    26

  • State Form 55639 National Pollutant Discharge Elimination System (Npdes) Permit Application Package 2e for Permit to Discharge Wastewater Proposed or Existing Nonprocess Wastewater Only Dischargers - Indiana, Page 27

    27

  • State Form 55639 National Pollutant Discharge Elimination System (Npdes) Permit Application Package 2e for Permit to Discharge Wastewater Proposed or Existing Nonprocess Wastewater Only Dischargers - Indiana, Page 28

    28

  • State Form 55639 National Pollutant Discharge Elimination System (Npdes) Permit Application Package 2e for Permit to Discharge Wastewater Proposed or Existing Nonprocess Wastewater Only Dischargers - Indiana, Page 29

    29

  • State Form 55639 National Pollutant Discharge Elimination System (Npdes) Permit Application Package 2e for Permit to Discharge Wastewater Proposed or Existing Nonprocess Wastewater Only Dischargers - Indiana, Page 30

    30

  • State Form 55639 National Pollutant Discharge Elimination System (Npdes) Permit Application Package 2e for Permit to Discharge Wastewater Proposed or Existing Nonprocess Wastewater Only Dischargers - Indiana, Page 31

    31

  • State Form 55639 National Pollutant Discharge Elimination System (Npdes) Permit Application Package 2e for Permit to Discharge Wastewater Proposed or Existing Nonprocess Wastewater Only Dischargers - Indiana, Page 32

    32

  • State Form 55639 National Pollutant Discharge Elimination System (Npdes) Permit Application Package 2e for Permit to Discharge Wastewater Proposed or Existing Nonprocess Wastewater Only Dischargers - Indiana, Page 33

    33

  • State Form 55639 National Pollutant Discharge Elimination System (Npdes) Permit Application Package 2e for Permit to Discharge Wastewater Proposed or Existing Nonprocess Wastewater Only Dischargers - Indiana, Page 34

    34

  • State Form 55639 National Pollutant Discharge Elimination System (Npdes) Permit Application Package 2e for Permit to Discharge Wastewater Proposed or Existing Nonprocess Wastewater Only Dischargers - Indiana, Page 35

    35

  • State Form 55639 National Pollutant Discharge Elimination System (Npdes) Permit Application Package 2e for Permit to Discharge Wastewater Proposed or Existing Nonprocess Wastewater Only Dischargers - Indiana, Page 36

    36

  • State Form 55639 National Pollutant Discharge Elimination System (Npdes) Permit Application Package 2e for Permit to Discharge Wastewater Proposed or Existing Nonprocess Wastewater Only Dischargers - Indiana, Page 37

    37

  • State Form 55639 National Pollutant Discharge Elimination System (Npdes) Permit Application Package 2e for Permit to Discharge Wastewater Proposed or Existing Nonprocess Wastewater Only Dischargers - Indiana, Page 38

    38

  • State Form 55639 National Pollutant Discharge Elimination System (Npdes) Permit Application Package 2e for Permit to Discharge Wastewater Proposed or Existing Nonprocess Wastewater Only Dischargers - Indiana, Page 1
  • State Form 55639 National Pollutant Discharge Elimination System (Npdes) Permit Application Package 2e for Permit to Discharge Wastewater Proposed or Existing Nonprocess Wastewater Only Dischargers - Indiana, Page 2
  • State Form 55639 National Pollutant Discharge Elimination System (Npdes) Permit Application Package 2e for Permit to Discharge Wastewater Proposed or Existing Nonprocess Wastewater Only Dischargers - Indiana, Page 3
  • State Form 55639 National Pollutant Discharge Elimination System (Npdes) Permit Application Package 2e for Permit to Discharge Wastewater Proposed or Existing Nonprocess Wastewater Only Dischargers - Indiana, Page 4
  • State Form 55639 National Pollutant Discharge Elimination System (Npdes) Permit Application Package 2e for Permit to Discharge Wastewater Proposed or Existing Nonprocess Wastewater Only Dischargers - Indiana, Page 5
  • State Form 55639 National Pollutant Discharge Elimination System (Npdes) Permit Application Package 2e for Permit to Discharge Wastewater Proposed or Existing Nonprocess Wastewater Only Dischargers - Indiana, Page 6
  • State Form 55639 National Pollutant Discharge Elimination System (Npdes) Permit Application Package 2e for Permit to Discharge Wastewater Proposed or Existing Nonprocess Wastewater Only Dischargers - Indiana, Page 7
  • State Form 55639 National Pollutant Discharge Elimination System (Npdes) Permit Application Package 2e for Permit to Discharge Wastewater Proposed or Existing Nonprocess Wastewater Only Dischargers - Indiana, Page 8
  • State Form 55639 National Pollutant Discharge Elimination System (Npdes) Permit Application Package 2e for Permit to Discharge Wastewater Proposed or Existing Nonprocess Wastewater Only Dischargers - Indiana, Page 9
  • State Form 55639 National Pollutant Discharge Elimination System (Npdes) Permit Application Package 2e for Permit to Discharge Wastewater Proposed or Existing Nonprocess Wastewater Only Dischargers - Indiana, Page 10
  • State Form 55639 National Pollutant Discharge Elimination System (Npdes) Permit Application Package 2e for Permit to Discharge Wastewater Proposed or Existing Nonprocess Wastewater Only Dischargers - Indiana, Page 11
  • State Form 55639 National Pollutant Discharge Elimination System (Npdes) Permit Application Package 2e for Permit to Discharge Wastewater Proposed or Existing Nonprocess Wastewater Only Dischargers - Indiana, Page 12
  • State Form 55639 National Pollutant Discharge Elimination System (Npdes) Permit Application Package 2e for Permit to Discharge Wastewater Proposed or Existing Nonprocess Wastewater Only Dischargers - Indiana, Page 13
  • State Form 55639 National Pollutant Discharge Elimination System (Npdes) Permit Application Package 2e for Permit to Discharge Wastewater Proposed or Existing Nonprocess Wastewater Only Dischargers - Indiana, Page 14
  • State Form 55639 National Pollutant Discharge Elimination System (Npdes) Permit Application Package 2e for Permit to Discharge Wastewater Proposed or Existing Nonprocess Wastewater Only Dischargers - Indiana, Page 15
  • State Form 55639 National Pollutant Discharge Elimination System (Npdes) Permit Application Package 2e for Permit to Discharge Wastewater Proposed or Existing Nonprocess Wastewater Only Dischargers - Indiana, Page 16
  • State Form 55639 National Pollutant Discharge Elimination System (Npdes) Permit Application Package 2e for Permit to Discharge Wastewater Proposed or Existing Nonprocess Wastewater Only Dischargers - Indiana, Page 17
  • State Form 55639 National Pollutant Discharge Elimination System (Npdes) Permit Application Package 2e for Permit to Discharge Wastewater Proposed or Existing Nonprocess Wastewater Only Dischargers - Indiana, Page 18
  • State Form 55639 National Pollutant Discharge Elimination System (Npdes) Permit Application Package 2e for Permit to Discharge Wastewater Proposed or Existing Nonprocess Wastewater Only Dischargers - Indiana, Page 19
  • State Form 55639 National Pollutant Discharge Elimination System (Npdes) Permit Application Package 2e for Permit to Discharge Wastewater Proposed or Existing Nonprocess Wastewater Only Dischargers - Indiana, Page 20
  • State Form 55639 National Pollutant Discharge Elimination System (Npdes) Permit Application Package 2e for Permit to Discharge Wastewater Proposed or Existing Nonprocess Wastewater Only Dischargers - Indiana, Page 21
  • State Form 55639 National Pollutant Discharge Elimination System (Npdes) Permit Application Package 2e for Permit to Discharge Wastewater Proposed or Existing Nonprocess Wastewater Only Dischargers - Indiana, Page 22
  • State Form 55639 National Pollutant Discharge Elimination System (Npdes) Permit Application Package 2e for Permit to Discharge Wastewater Proposed or Existing Nonprocess Wastewater Only Dischargers - Indiana, Page 23
  • State Form 55639 National Pollutant Discharge Elimination System (Npdes) Permit Application Package 2e for Permit to Discharge Wastewater Proposed or Existing Nonprocess Wastewater Only Dischargers - Indiana, Page 24
  • State Form 55639 National Pollutant Discharge Elimination System (Npdes) Permit Application Package 2e for Permit to Discharge Wastewater Proposed or Existing Nonprocess Wastewater Only Dischargers - Indiana, Page 25
  • State Form 55639 National Pollutant Discharge Elimination System (Npdes) Permit Application Package 2e for Permit to Discharge Wastewater Proposed or Existing Nonprocess Wastewater Only Dischargers - Indiana, Page 26
  • State Form 55639 National Pollutant Discharge Elimination System (Npdes) Permit Application Package 2e for Permit to Discharge Wastewater Proposed or Existing Nonprocess Wastewater Only Dischargers - Indiana, Page 27
  • State Form 55639 National Pollutant Discharge Elimination System (Npdes) Permit Application Package 2e for Permit to Discharge Wastewater Proposed or Existing Nonprocess Wastewater Only Dischargers - Indiana, Page 28
  • State Form 55639 National Pollutant Discharge Elimination System (Npdes) Permit Application Package 2e for Permit to Discharge Wastewater Proposed or Existing Nonprocess Wastewater Only Dischargers - Indiana, Page 29
  • State Form 55639 National Pollutant Discharge Elimination System (Npdes) Permit Application Package 2e for Permit to Discharge Wastewater Proposed or Existing Nonprocess Wastewater Only Dischargers - Indiana, Page 30
  • State Form 55639 National Pollutant Discharge Elimination System (Npdes) Permit Application Package 2e for Permit to Discharge Wastewater Proposed or Existing Nonprocess Wastewater Only Dischargers - Indiana, Page 31
  • State Form 55639 National Pollutant Discharge Elimination System (Npdes) Permit Application Package 2e for Permit to Discharge Wastewater Proposed or Existing Nonprocess Wastewater Only Dischargers - Indiana, Page 32
  • State Form 55639 National Pollutant Discharge Elimination System (Npdes) Permit Application Package 2e for Permit to Discharge Wastewater Proposed or Existing Nonprocess Wastewater Only Dischargers - Indiana, Page 33
  • State Form 55639 National Pollutant Discharge Elimination System (Npdes) Permit Application Package 2e for Permit to Discharge Wastewater Proposed or Existing Nonprocess Wastewater Only Dischargers - Indiana, Page 34
  • State Form 55639 National Pollutant Discharge Elimination System (Npdes) Permit Application Package 2e for Permit to Discharge Wastewater Proposed or Existing Nonprocess Wastewater Only Dischargers - Indiana, Page 35
  • State Form 55639 National Pollutant Discharge Elimination System (Npdes) Permit Application Package 2e for Permit to Discharge Wastewater Proposed or Existing Nonprocess Wastewater Only Dischargers - Indiana, Page 36
  • State Form 55639 National Pollutant Discharge Elimination System (Npdes) Permit Application Package 2e for Permit to Discharge Wastewater Proposed or Existing Nonprocess Wastewater Only Dischargers - Indiana, Page 37
  • State Form 55639 National Pollutant Discharge Elimination System (Npdes) Permit Application Package 2e for Permit to Discharge Wastewater Proposed or Existing Nonprocess Wastewater Only Dischargers - Indiana, Page 38
Prev 1 2 3 4 5 ... 38 Next
ADVERTISEMENT