Form GST190 Gst / Hst New Housing Rebate Application for Houses Purchased From a Builder - Canada

Notification Icon This version of the form is not currently in use and is provided for reference only. Download this version of Form GST190 for the current year.

Form GST190 Gst / Hst New Housing Rebate Application for Houses Purchased From a Builder - Canada

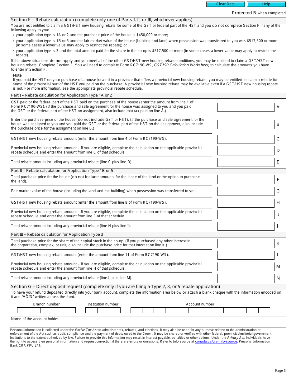
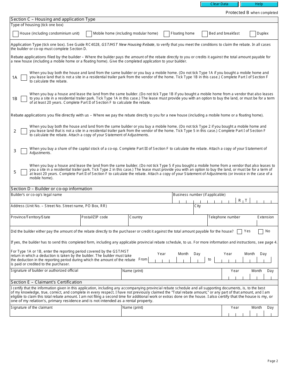
Form GST190 is the GST/HST New Housing Rebate Application for houses purchased from a builder in Canada. It is used to apply for a rebate if you bought a newly constructed or substantially renovated home and paid GST or HST on the purchase.

The purchaser of the new house files the Form GST190 GST/HST New Housing Rebate Application in Canada.

FAQ

Q: What is Form GST190?
A: Form GST190 is the GST/HST New Housing Rebate Application for Houses Purchased From a Builder in Canada.

Q: Who can use Form GST190?
A: This form can be used by individuals who have purchased a new house from a builder and are eligible for the GST/HST new housing rebate.

Q: What is the purpose of Form GST190?
A: The purpose of this form is to apply for the GST/HST new housing rebate for houses purchased from a builder in Canada.

Q: What information is required on Form GST190?
A: Form GST190 requires information about the property, the builder, and the purchase price, as well as supporting documents.

Q: What are the eligibility criteria for the GST/HST new housing rebate?
A: To be eligible for the rebate, you must meet certain criteria, including being a Canadian resident, purchasing a new house from a builder, and meeting the qualifying conditions.

Q: What are the qualifying conditions for the GST/HST new housing rebate?
A: The qualifying conditions include the property being used as a primary place of residence, the purchase price being less than a specified threshold, and the house being intended for residential use.

Q: When should I submit Form GST190?
A: You should submit Form GST190 within two years after the date of purchase or occupancy of the house, whichever comes later.

Q: What happens after I submit Form GST190?
A: After submitting Form GST190, the Canada Revenue Agency will assess your application and determine your eligibility for the GST/HST new housing rebate.

Q: Is there a time limit for receiving the GST/HST new housing rebate?
A: Yes, you must apply for the rebate within two years of the date of purchase or occupancy of the house, whichever comes later.

ADVERTISEMENT

Download Form GST190 Gst / Hst New Housing Rebate Application for Houses Purchased From a Builder - Canada

4.6 of 5 (33 votes)
  • Form GST190 Gst/Hst New Housing Rebate Application for Houses Purchased From a Builder - Canada

    1

  • Form GST190 Gst/Hst New Housing Rebate Application for Houses Purchased From a Builder - Canada, Page 2

    2

  • Form GST190 Gst/Hst New Housing Rebate Application for Houses Purchased From a Builder - Canada, Page 3

    3

  • Form GST190 Gst/Hst New Housing Rebate Application for Houses Purchased From a Builder - Canada, Page 4

    4

  • Form GST190 Gst / Hst New Housing Rebate Application for Houses Purchased From a Builder - Canada, Page 1
  • Form GST190 Gst / Hst New Housing Rebate Application for Houses Purchased From a Builder - Canada, Page 2
  • Form GST190 Gst / Hst New Housing Rebate Application for Houses Purchased From a Builder - Canada, Page 3
  • Form GST190 Gst / Hst New Housing Rebate Application for Houses Purchased From a Builder - Canada, Page 4
Prev 1 2 3 4 Next
ADVERTISEMENT