Form 2011E Application for Review of Permanent X-Ray Location - Ontario, Canada

Form 2011E Application for Review of Permanent X-Ray Location - Ontario, Canada

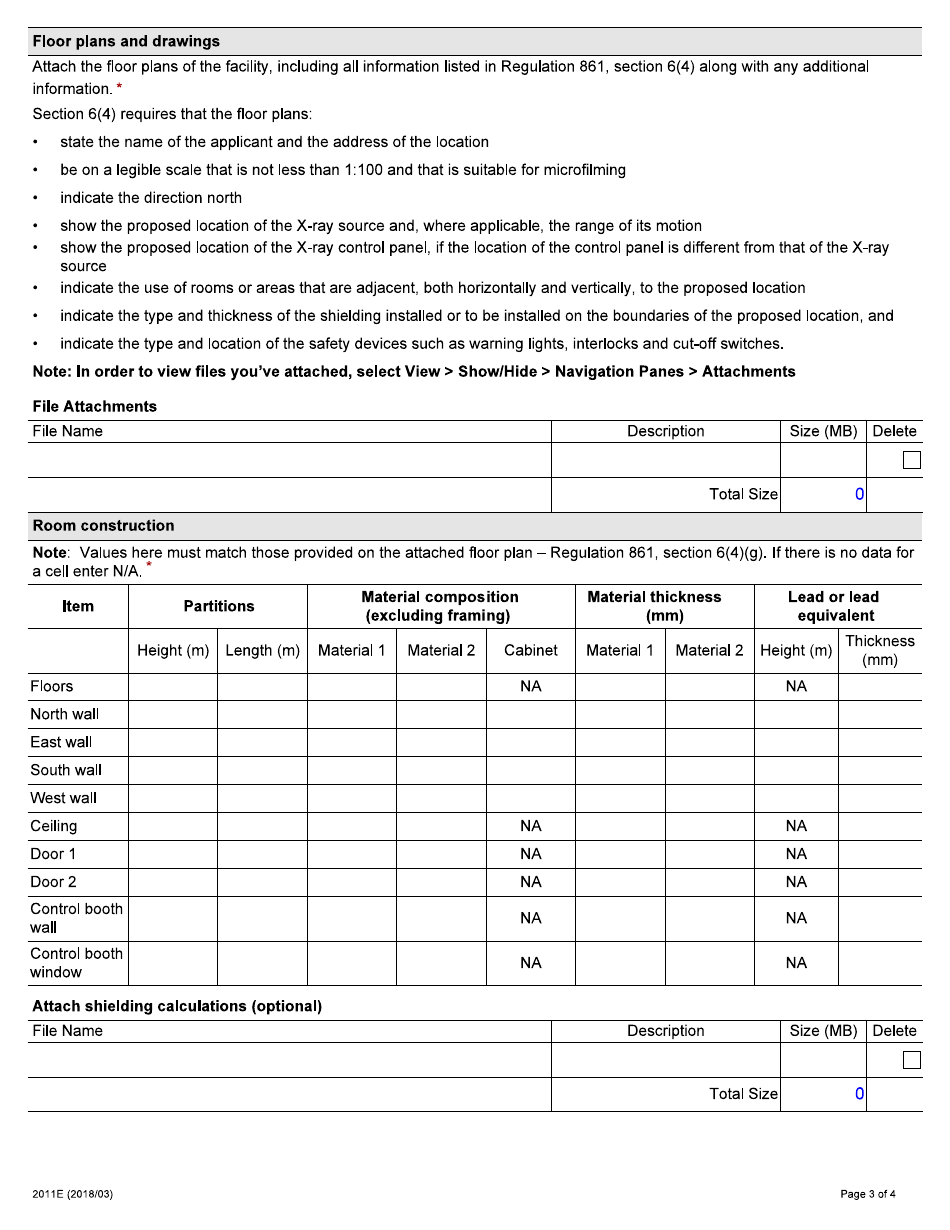
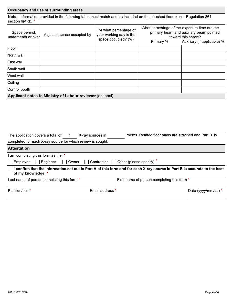
Form 2011E Application for Review of Permanent X-Ray Location in Ontario, Canada is used to request a review of a permanent X-ray location facility. This form is typically used by healthcare providers or facilities to ensure compliance with regulations and standards set by the Ontario Ministry of Health.

The Form 2011E Application for Review of Permanent X-Ray Location in Ontario, Canada is typically filed by the facility or organization that operates the X-ray location.

FAQ

Q: What is Form 2011E?
A: Form 2011E is an application for review of permanent X-Ray location in Ontario, Canada.

Q: Who can use Form 2011E?
A: Form 2011E can be used by anyone who wants to apply for a review of a permanent X-Ray location in Ontario, Canada.

Q: Why would I need to fill out Form 2011E?
A: You would need to fill out Form 2011E if you want to request a review of a permanent X-Ray location in Ontario, Canada.

Q: Is Form 2011E specific to Ontario, Canada?
A: Yes, Form 2011E is specific to Ontario, Canada.

Q: Are there any fees associated with Form 2011E?
A: There may be fees associated with Form 2011E. Please refer to the instructions on the form or contact the Ontario Ministry of Health and Long-Term Care for more information.

Q: What is the purpose of reviewing a permanent X-Ray location?
A: The purpose of reviewing a permanent X-Ray location is to ensure that the facility meets the necessary standards and regulations for providing quality radiological services.

Q: How long does the review process take?
A: The length of the review process for Form 2011E may vary. It is best to contact the Ontario Ministry of Health and Long-Term Care for an estimate.

Q: Can I track the status of my application?
A: Yes, you can contact the Ontario Ministry of Health and Long-Term Care to inquire about the status of your application.

ADVERTISEMENT

Download Form 2011E Application for Review of Permanent X-Ray Location - Ontario, Canada

4.8 of 5 (25 votes)
  • Form 2011E Application for Review of Permanent X-Ray Location - Ontario, Canada

    1

  • Form 2011E Application for Review of Permanent X-Ray Location - Ontario, Canada, Page 2

    2

  • Form 2011E Application for Review of Permanent X-Ray Location - Ontario, Canada, Page 3

    3

  • Form 2011E Application for Review of Permanent X-Ray Location - Ontario, Canada, Page 4

    4

  • Form 2011E Application for Review of Permanent X-Ray Location - Ontario, Canada, Page 1
  • Form 2011E Application for Review of Permanent X-Ray Location - Ontario, Canada, Page 2
  • Form 2011E Application for Review of Permanent X-Ray Location - Ontario, Canada, Page 3
  • Form 2011E Application for Review of Permanent X-Ray Location - Ontario, Canada, Page 4
Prev 1 2 3 4 Next
ADVERTISEMENT

Related Documents