Crown Reserved Road Application - New Brunswick, Canada

Crown Reserved Road Application - New Brunswick, Canada

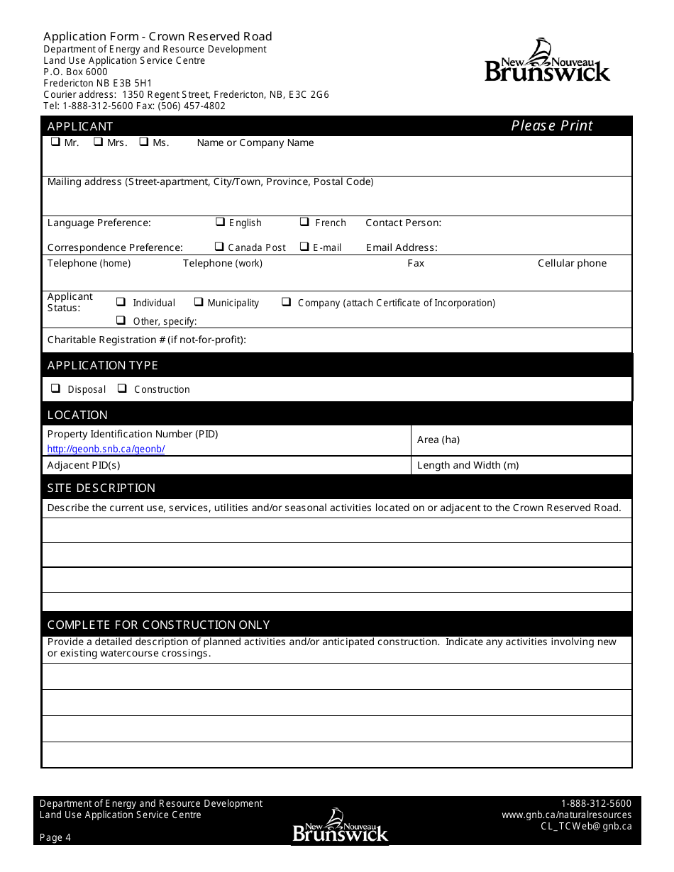
The Crown Reserved Road Application in New Brunswick, Canada is a process for individuals or organizations to apply for the designation of a road as a Crown Reserved Road. This designation ensures public access and maintenance responsibilities are handled by the provincial government.

The Crown Reserved Road Application in New Brunswick, Canada, is filed by the provincial government.

FAQ

Q: What is the Crown Reserved Road Application?
A: The Crown Reserved Road Application is a process used in New Brunswick, Canada.

Q: What is the purpose of the Crown Reserved Road Application?
A: The purpose of the Crown Reserved Road Application is to request permission to gain access to Crown land for road construction or maintenance.

Q: Who can submit a Crown Reserved Road Application?
A: Any individual, organization, or government entity can submit a Crown Reserved Road Application.

Q: How can I submit a Crown Reserved Road Application?
A: You can submit a Crown Reserved Road Application by contacting the appropriate government authority in New Brunswick, Canada.

Q: What information is required in a Crown Reserved Road Application?
A: A Crown Reserved Road Application requires information such as the purpose of the road, proposed route, land ownership details, and environmental assessments.

Q: How long does it take to process a Crown Reserved Road Application?
A: The processing time for a Crown Reserved Road Application can vary depending on various factors, but it generally takes several months.

Q: Are there any fees associated with the Crown Reserved Road Application?
A: Yes, there are fees associated with the Crown Reserved Road Application. The specific fees can be obtained from the government authority handling the application.

Q: Is approval guaranteed after submitting a Crown Reserved Road Application?
A: Approval of a Crown Reserved Road Application is not guaranteed. It depends on factors such as the proposed road's impact on the environment and land ownership considerations.

Q: Can I appeal if my Crown Reserved Road Application is denied?
A: Yes, you can appeal a denial of a Crown Reserved Road Application. The appeal process varies and can be discussed with the government authority handling the application.

Q: Are there any restrictions on the use of a Crown Reserved Road?
A: Yes, there may be restrictions on the use of a Crown Reserved Road. These restrictions can vary and may be outlined during the application process.

ADVERTISEMENT

Download Crown Reserved Road Application - New Brunswick, Canada

4.3 of 5 (25 votes)
  • Crown Reserved Road Application - New Brunswick, Canada

    1

  • Crown Reserved Road Application - New Brunswick, Canada, Page 2

    2

  • Crown Reserved Road Application - New Brunswick, Canada, Page 3

    3

  • Crown Reserved Road Application - New Brunswick, Canada, Page 4

    4

  • Crown Reserved Road Application - New Brunswick, Canada, Page 1
  • Crown Reserved Road Application - New Brunswick, Canada, Page 2
  • Crown Reserved Road Application - New Brunswick, Canada, Page 3
  • Crown Reserved Road Application - New Brunswick, Canada, Page 4
Prev 1 2 3 4 Next
ADVERTISEMENT