Form SFMO-5 Application for Annual Permit to Store Explosives - Virginia

Notification Icon This version of the form is not currently in use and is provided for reference only. Download this version of Form SFMO-5 for the current year.

Form SFMO-5 Application for Annual Permit to Store Explosives - Virginia

What Is Form SFMO-5?

This is a legal form that was released by the Virginia Department of Fire Programs - a government authority operating within Virginia. As of today, no separate filing guidelines for the form are provided by the issuing department.

FAQ

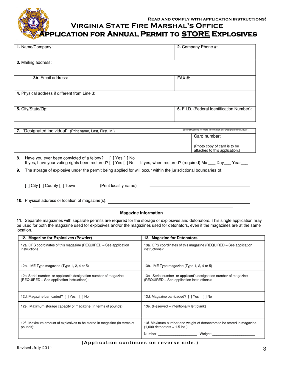
Q: What is Form SFMO-5?
A: Form SFMO-5 is the Application for Annual Permit to Store Explosives in Virginia.

Q: Who needs to fill out Form SFMO-5?
A: Anyone who wants to store explosives in Virginia needs to fill out Form SFMO-5.

Q: What is the purpose of Form SFMO-5?
A: The purpose of Form SFMO-5 is to apply for a permit to store explosives in Virginia on an annual basis.

Q: What information do I need to provide on Form SFMO-5?
A: You will need to provide information about the applicant, the location where the explosives will be stored, and the type and quantity of explosives.

Q: Are there any fees associated with submitting Form SFMO-5?
A: Yes, there is a fee for submitting Form SFMO-5. The fee varies depending on the quantity of explosives being stored.

Q: What is the deadline for submitting Form SFMO-5?
A: Form SFMO-5 must be submitted at least 30 days prior to the date of storage.

Q: Are there any additional requirements for storing explosives in Virginia?
A: Yes, there are additional requirements for storing explosives in Virginia, including obtaining a storage magazine and complying with all applicable regulations and safety standards.

Q: What happens after I submit Form SFMO-5?
A: After you submit Form SFMO-5, the Virginia Department of Fire Programs will review your application and may conduct an inspection of the storage facility before issuing a permit.

Q: How long is the permit to store explosives valid?
A: The permit to store explosives is valid for one year from the date of issuance.

ADVERTISEMENT

Form Details:

  • Released on July 1, 2014;
  • The latest edition provided by the Virginia Department of Fire Programs;
  • Easy to use and ready to print;
  • Quick to customize;
  • Compatible with most PDF-viewing applications;
  • Fill out the form in our online filing application.

Download a printable version of Form SFMO-5 by clicking the link below or browse more documents and templates provided by the Virginia Department of Fire Programs.

Download Form SFMO-5 Application for Annual Permit to Store Explosives - Virginia

4.5 of 5 (71 votes)
  • Form SFMO-5 Application for Annual Permit to Store Explosives - Virginia

    1

  • Form SFMO-5 Application for Annual Permit to Store Explosives - Virginia, Page 2

    2

  • Form SFMO-5 Application for Annual Permit to Store Explosives - Virginia, Page 3

    3

  • Form SFMO-5 Application for Annual Permit to Store Explosives - Virginia, Page 4

    4

  • Form SFMO-5 Application for Annual Permit to Store Explosives - Virginia, Page 1
  • Form SFMO-5 Application for Annual Permit to Store Explosives - Virginia, Page 2
  • Form SFMO-5 Application for Annual Permit to Store Explosives - Virginia, Page 3
  • Form SFMO-5 Application for Annual Permit to Store Explosives - Virginia, Page 4
Prev 1 2 3 4 Next
ADVERTISEMENT

Related Documents