Permit Application and Notification for Lead Abatement and Renovation - Virginia

Permit Application and Notification for Lead Abatement and Renovation - Virginia

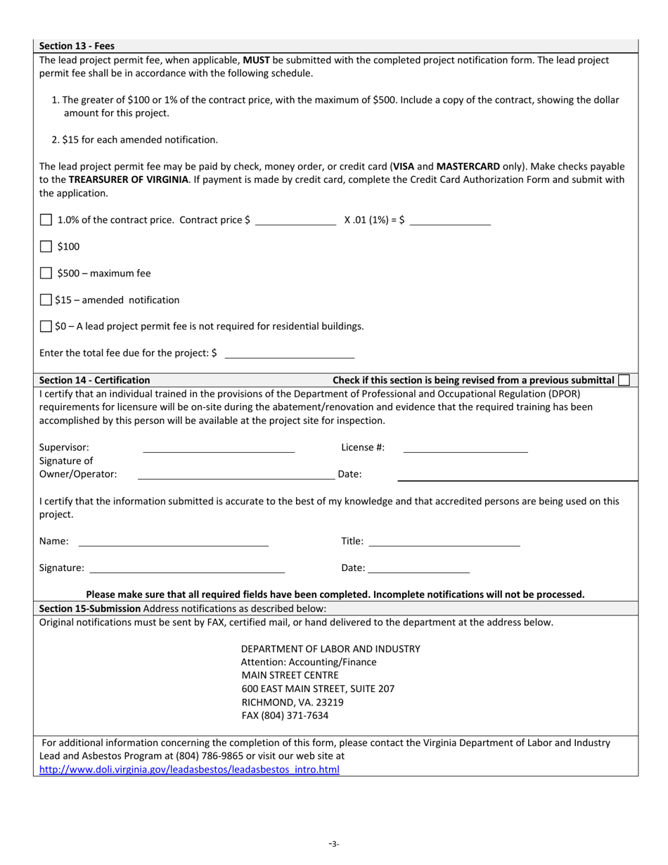
Permit Application and Notification for Lead Abatement and Renovation is a legal document that was released by the Virginia Department of Labor and Industry - a government authority operating within Virginia.

FAQ

Q: What is the purpose of the Permit Application and Notification for Lead Abatement and Renovation in Virginia?
A: The purpose of the permit application and notification is to ensure safe and proper handling of lead-based paint during abatement and renovation activities in Virginia.

Q: Who needs to apply for a permit and provide notification for lead abatement and renovation in Virginia?
A: Contractors and property owners who are conducting lead abatement or renovation activities in pre-1978 housing or child-occupied facilities need to apply for a permit and provide notification.

Q: What are the requirements for obtaining a permit for lead abatement and renovation in Virginia?
A: To obtain a permit in Virginia, contractors and property owners need to complete the application form, submit the required fee, provide certification of lead-safe work practices, and comply with all applicable laws and regulations.

Q: What are the consequences of not obtaining a permit or providing notification for lead abatement and renovation in Virginia?
A: Failure to obtain a permit or provide notification for lead abatement and renovation in Virginia can result in penalties and legal consequences, including fines and potential liability for harm caused by lead exposure.

ADVERTISEMENT

Form Details:

  • The latest edition currently provided by the Virginia Department of Labor and Industry;
  • Ready to use and print;
  • Easy to customize;
  • Compatible with most PDF-viewing applications;
  • Fill out the form in our online filing application.

Download a fillable version of the form by clicking the link below or browse more documents and templates provided by the Virginia Department of Labor and Industry.

Download Permit Application and Notification for Lead Abatement and Renovation - Virginia

4.8 of 5 (61 votes)
  • Permit Application and Notification for Lead Abatement and Renovation - Virginia

    1

  • Permit Application and Notification for Lead Abatement and Renovation - Virginia, Page 2

    2

  • Permit Application and Notification for Lead Abatement and Renovation - Virginia, Page 3

    3

  • Permit Application and Notification for Lead Abatement and Renovation - Virginia, Page 4

    4

  • Permit Application and Notification for Lead Abatement and Renovation - Virginia, Page 1
  • Permit Application and Notification for Lead Abatement and Renovation - Virginia, Page 2
  • Permit Application and Notification for Lead Abatement and Renovation - Virginia, Page 3
  • Permit Application and Notification for Lead Abatement and Renovation - Virginia, Page 4
Prev 1 2 3 4 Next
ADVERTISEMENT

Related Documents