State Form 56554 Underground Storage Tank Systems Closure Report - Indiana

Notification Icon This version of the form is not currently in use and is provided for reference only. Download this version of State Form 56554 for the current year.

State Form 56554 Underground Storage Tank Systems Closure Report - Indiana

What Is State Form 56554?

This is a legal form that was released by the Indiana Department of Environmental Management - a government authority operating within Indiana. Check the official instructions before completing and submitting the form.

FAQ

Q: What is Form 56554?
A: Form 56554 is the Underground StorageTank SystemsClosure Report for Indiana.

Q: Who needs to submit Form 56554?
A: Owners or operators of underground storage tank systems in Indiana that are being closed or removed.

Q: What is the purpose of Form 56554?
A: The form is used to provide information about the closure or removal of underground storage tank systems.

Q: Are there any fees associated with submitting Form 56554?
A: There may be fees associated with the closure or removal of underground storage tank systems, but the specific details can be found in the Indiana Department of Environmental Management's fee schedule.

Q: Is Form 56554 specific to Indiana?
A: Yes, Form 56554 is specific to Indiana and is used for reporting underground storage tank systems closure in the state.

ADVERTISEMENT

Form Details:

  • Released on May 1, 2019;
  • The latest edition provided by the Indiana Department of Environmental Management;
  • Easy to use and ready to print;
  • Quick to customize;
  • Compatible with most PDF-viewing applications;
  • Fill out the form in our online filing application.

Download a fillable version of State Form 56554 by clicking the link below or browse more documents and templates provided by the Indiana Department of Environmental Management.

Download State Form 56554 Underground Storage Tank Systems Closure Report - Indiana

4.3 of 5 (12 votes)
  • State Form 56554 Underground Storage Tank Systems Closure Report - Indiana

    1

  • State Form 56554 Underground Storage Tank Systems Closure Report - Indiana, Page 2

    2

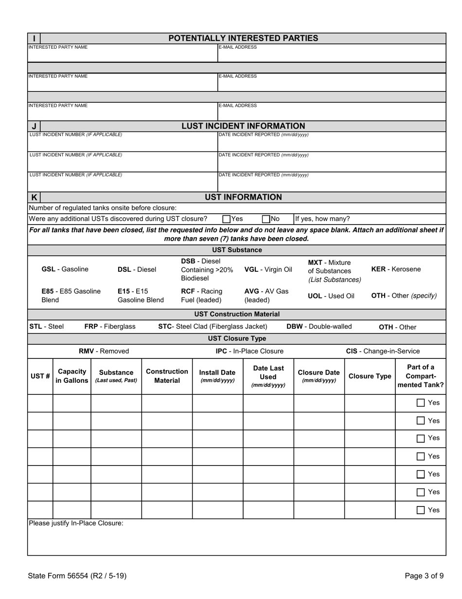
  • State Form 56554 Underground Storage Tank Systems Closure Report - Indiana, Page 3

    3

  • State Form 56554 Underground Storage Tank Systems Closure Report - Indiana, Page 4

    4

  • State Form 56554 Underground Storage Tank Systems Closure Report - Indiana, Page 5

    5

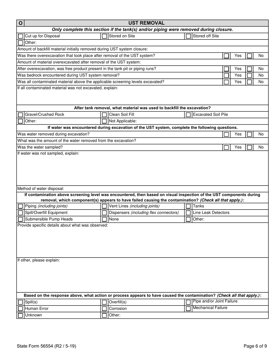
  • State Form 56554 Underground Storage Tank Systems Closure Report - Indiana, Page 6

    6

  • State Form 56554 Underground Storage Tank Systems Closure Report - Indiana, Page 7

    7

  • State Form 56554 Underground Storage Tank Systems Closure Report - Indiana, Page 8

    8

  • State Form 56554 Underground Storage Tank Systems Closure Report - Indiana, Page 9

    9

  • State Form 56554 Underground Storage Tank Systems Closure Report - Indiana, Page 1
  • State Form 56554 Underground Storage Tank Systems Closure Report - Indiana, Page 2
  • State Form 56554 Underground Storage Tank Systems Closure Report - Indiana, Page 3
  • State Form 56554 Underground Storage Tank Systems Closure Report - Indiana, Page 4
  • State Form 56554 Underground Storage Tank Systems Closure Report - Indiana, Page 5
  • State Form 56554 Underground Storage Tank Systems Closure Report - Indiana, Page 6
  • State Form 56554 Underground Storage Tank Systems Closure Report - Indiana, Page 7
  • State Form 56554 Underground Storage Tank Systems Closure Report - Indiana, Page 8
  • State Form 56554 Underground Storage Tank Systems Closure Report - Indiana, Page 9
Prev 1 2 3 4 5 ... 9 Next
ADVERTISEMENT