State Form 56548 Initial Registration for Underground Storage Tanks - Indiana

Notification Icon This version of the form is not currently in use and is provided for reference only. Download this version of State Form 56548 for the current year.

State Form 56548 Initial Registration for Underground Storage Tanks - Indiana

What Is State Form 56548?

This is a legal form that was released by the Indiana Department of Environmental Management - a government authority operating within Indiana. Check the official instructions before completing and submitting the form.

FAQ

Q: What is form 56548?
A: Form 56548 is the Initial Registration form for Underground Storage Tanks in Indiana.

Q: Who needs to fill out form 56548?
A: Owners or operators of underground storage tanks in Indiana need to fill out form 56548.

Q: What is the purpose of form 56548?
A: The purpose of form 56548 is to register underground storage tanks in Indiana.

Q: Are there any fees associated with form 56548?
A: Yes, there are registration fees associated with form 56548. The fees vary depending on the number of tanks being registered.

Q: When should form 56548 be submitted?
A: Form 56548 should be submitted prior to installing or operating an underground storage tank in Indiana.

Q: What information is required on form 56548?
A: Form 56548 requires information such as tank owner/operator details, tank location, tank characteristics, and compliance certifications.

Q: Are there any reporting requirements after submitting form 56548?
A: Yes, tank owners/operators are required to submit annual tank registration renewals and report any changes in tank status to the Indiana Department of Environmental Management.

Q: What are the consequences of not submitting form 56548?
A: Failure to submit form 56548 may result in penalties or enforcement actions by the Indiana Department of Environmental Management.

ADVERTISEMENT

Form Details:

  • Released on January 1, 2019;
  • The latest edition provided by the Indiana Department of Environmental Management;
  • Easy to use and ready to print;
  • Quick to customize;
  • Compatible with most PDF-viewing applications;
  • Fill out the form in our online filing application.

Download a fillable version of State Form 56548 by clicking the link below or browse more documents and templates provided by the Indiana Department of Environmental Management.

Download State Form 56548 Initial Registration for Underground Storage Tanks - Indiana

4.3 of 5 (10 votes)
  • State Form 56548 Initial Registration for Underground Storage Tanks - Indiana

    1

  • State Form 56548 Initial Registration for Underground Storage Tanks - Indiana, Page 2

    2

  • State Form 56548 Initial Registration for Underground Storage Tanks - Indiana, Page 3

    3

  • State Form 56548 Initial Registration for Underground Storage Tanks - Indiana, Page 4

    4

  • State Form 56548 Initial Registration for Underground Storage Tanks - Indiana, Page 5

    5

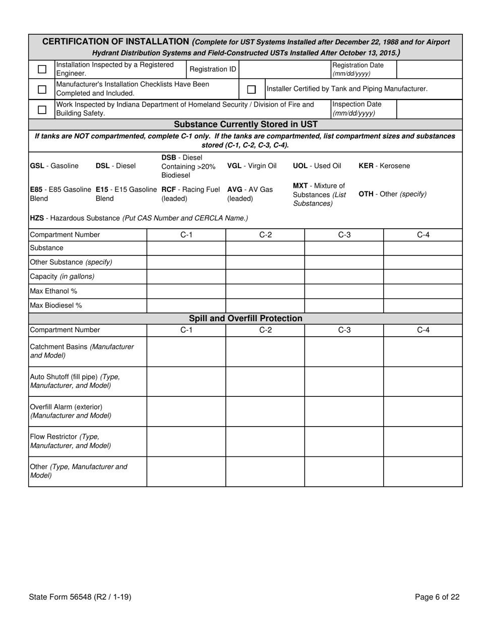
  • State Form 56548 Initial Registration for Underground Storage Tanks - Indiana, Page 6

    6

  • State Form 56548 Initial Registration for Underground Storage Tanks - Indiana, Page 7

    7

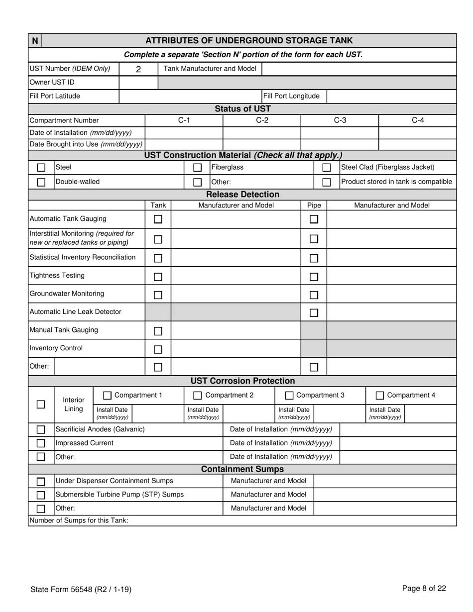
  • State Form 56548 Initial Registration for Underground Storage Tanks - Indiana, Page 8

    8

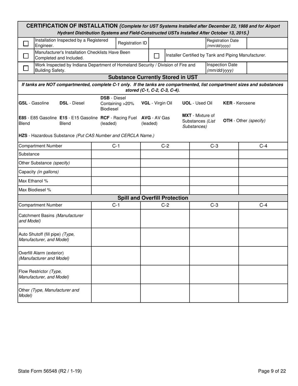
  • State Form 56548 Initial Registration for Underground Storage Tanks - Indiana, Page 9

    9

  • State Form 56548 Initial Registration for Underground Storage Tanks - Indiana, Page 10

    10

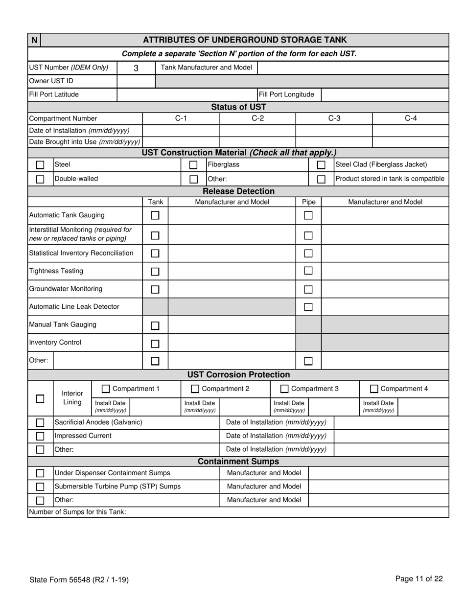
  • State Form 56548 Initial Registration for Underground Storage Tanks - Indiana, Page 11

    11

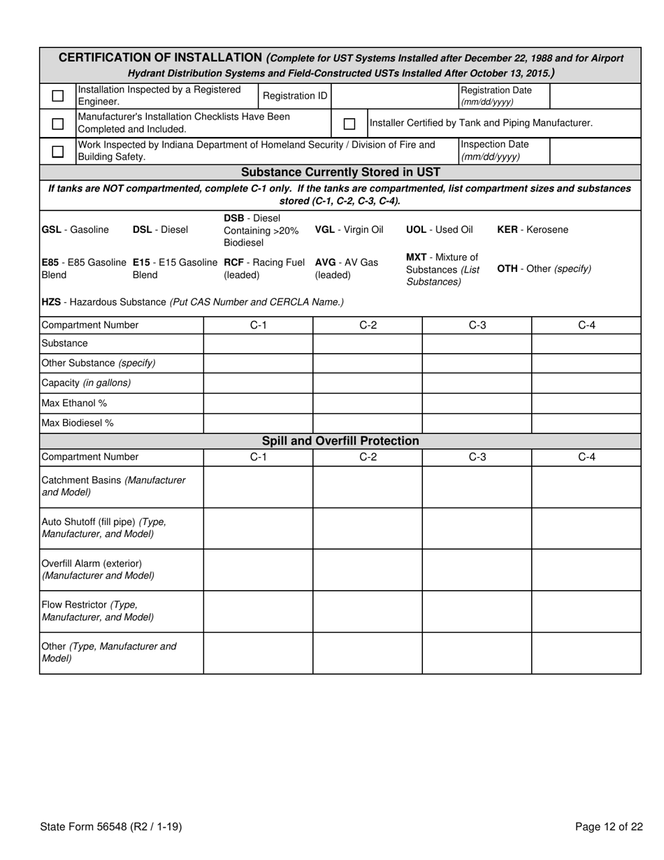
  • State Form 56548 Initial Registration for Underground Storage Tanks - Indiana, Page 12

    12

  • State Form 56548 Initial Registration for Underground Storage Tanks - Indiana, Page 13

    13

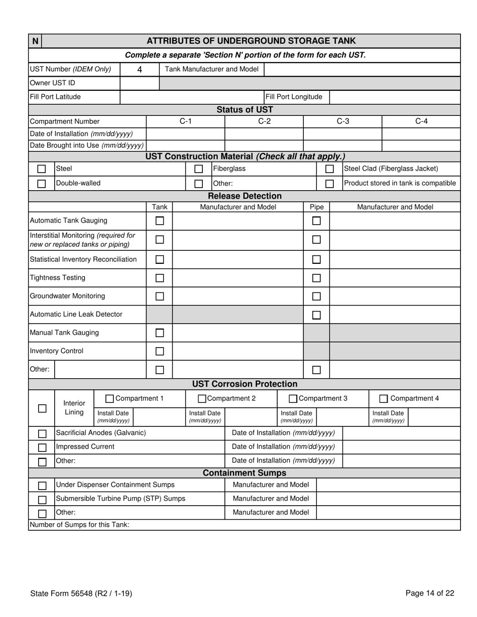
  • State Form 56548 Initial Registration for Underground Storage Tanks - Indiana, Page 14

    14

  • State Form 56548 Initial Registration for Underground Storage Tanks - Indiana, Page 15

    15

  • State Form 56548 Initial Registration for Underground Storage Tanks - Indiana, Page 16

    16

  • State Form 56548 Initial Registration for Underground Storage Tanks - Indiana, Page 17

    17

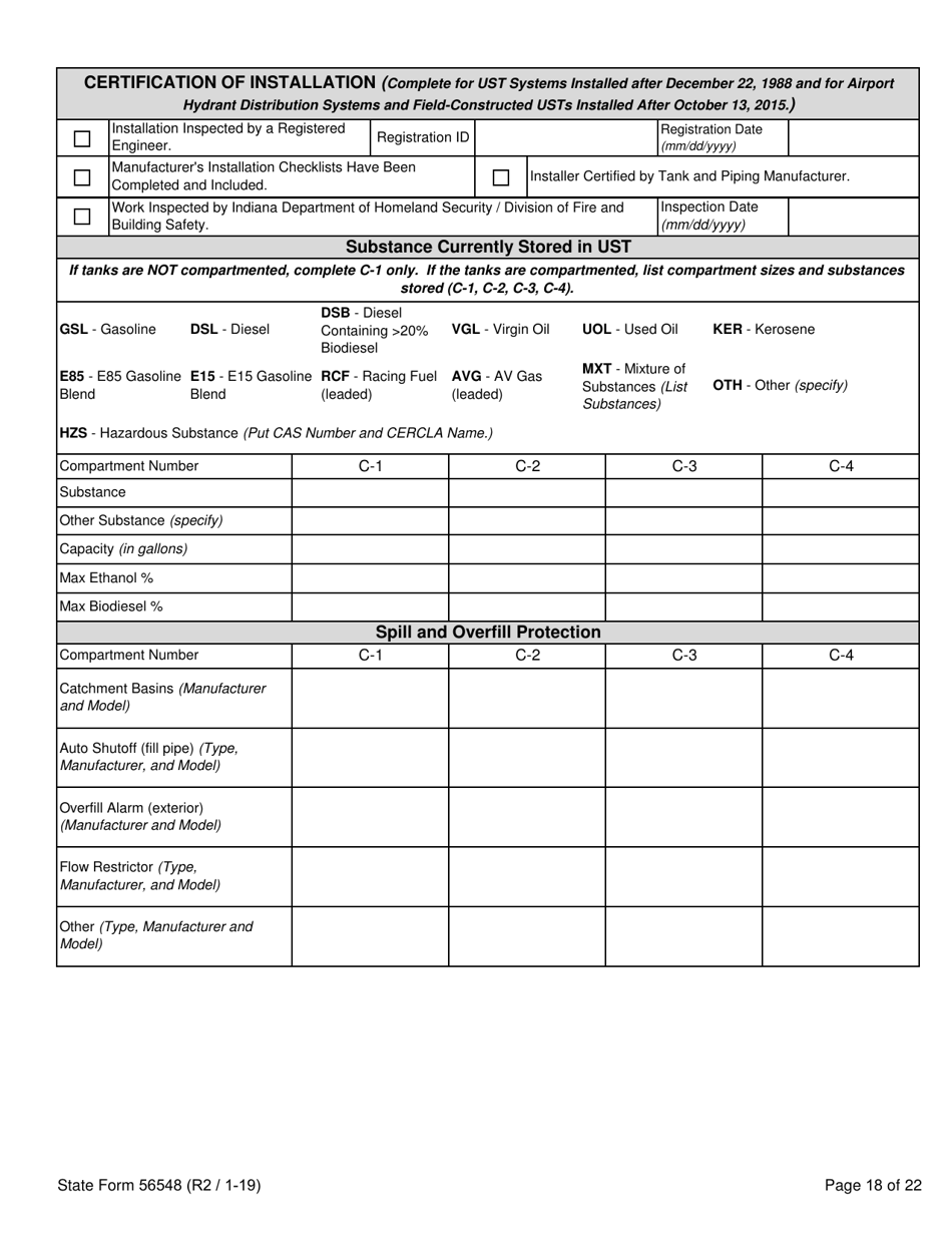
  • State Form 56548 Initial Registration for Underground Storage Tanks - Indiana, Page 18

    18

  • State Form 56548 Initial Registration for Underground Storage Tanks - Indiana, Page 19

    19

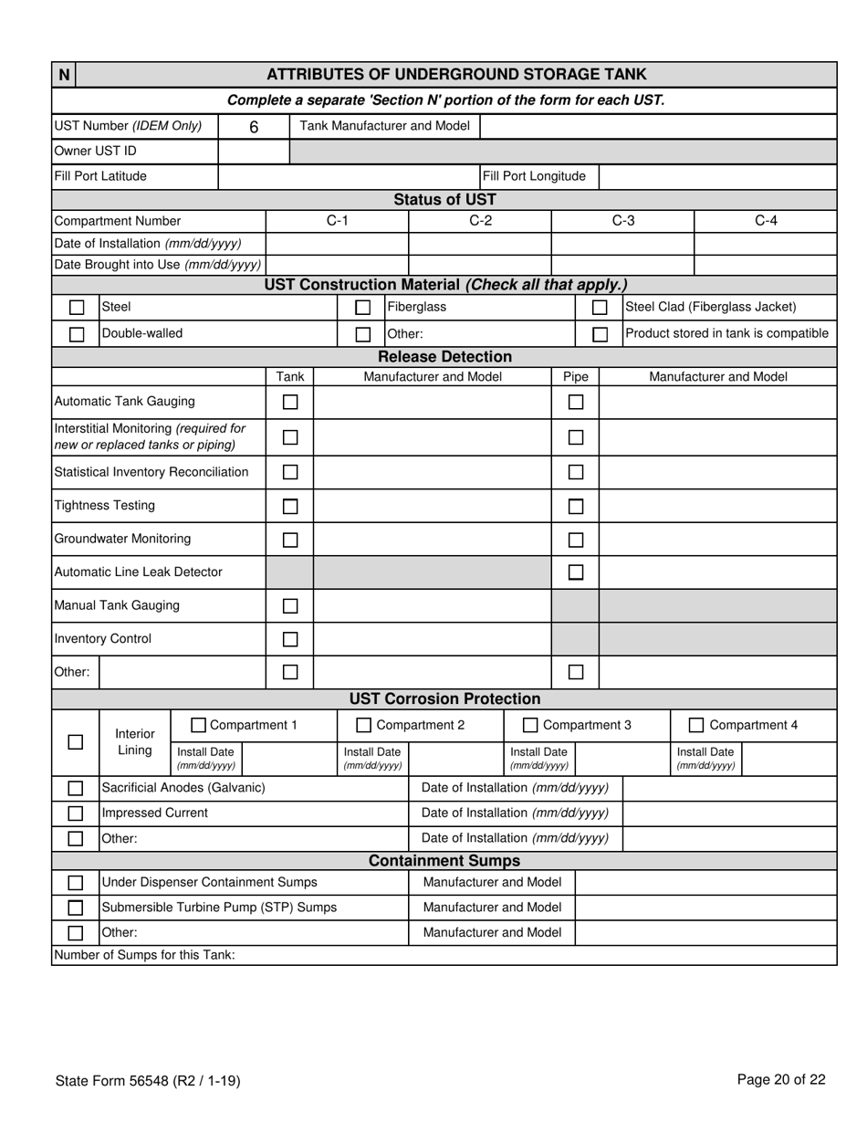
  • State Form 56548 Initial Registration for Underground Storage Tanks - Indiana, Page 20

    20

  • State Form 56548 Initial Registration for Underground Storage Tanks - Indiana, Page 21

    21

  • State Form 56548 Initial Registration for Underground Storage Tanks - Indiana, Page 22

    22

  • State Form 56548 Initial Registration for Underground Storage Tanks - Indiana, Page 1
  • State Form 56548 Initial Registration for Underground Storage Tanks - Indiana, Page 2
  • State Form 56548 Initial Registration for Underground Storage Tanks - Indiana, Page 3
  • State Form 56548 Initial Registration for Underground Storage Tanks - Indiana, Page 4
  • State Form 56548 Initial Registration for Underground Storage Tanks - Indiana, Page 5
  • State Form 56548 Initial Registration for Underground Storage Tanks - Indiana, Page 6
  • State Form 56548 Initial Registration for Underground Storage Tanks - Indiana, Page 7
  • State Form 56548 Initial Registration for Underground Storage Tanks - Indiana, Page 8
  • State Form 56548 Initial Registration for Underground Storage Tanks - Indiana, Page 9
  • State Form 56548 Initial Registration for Underground Storage Tanks - Indiana, Page 10
  • State Form 56548 Initial Registration for Underground Storage Tanks - Indiana, Page 11
  • State Form 56548 Initial Registration for Underground Storage Tanks - Indiana, Page 12
  • State Form 56548 Initial Registration for Underground Storage Tanks - Indiana, Page 13
  • State Form 56548 Initial Registration for Underground Storage Tanks - Indiana, Page 14
  • State Form 56548 Initial Registration for Underground Storage Tanks - Indiana, Page 15
  • State Form 56548 Initial Registration for Underground Storage Tanks - Indiana, Page 16
  • State Form 56548 Initial Registration for Underground Storage Tanks - Indiana, Page 17
  • State Form 56548 Initial Registration for Underground Storage Tanks - Indiana, Page 18
  • State Form 56548 Initial Registration for Underground Storage Tanks - Indiana, Page 19
  • State Form 56548 Initial Registration for Underground Storage Tanks - Indiana, Page 20
  • State Form 56548 Initial Registration for Underground Storage Tanks - Indiana, Page 21
  • State Form 56548 Initial Registration for Underground Storage Tanks - Indiana, Page 22
Prev 1 2 3 4 5 ... 22 Next
ADVERTISEMENT