State Form 45223 Notification for Underground Storage Tank Systems - Indiana

Notification Icon This version of the form is not currently in use and is provided for reference only. Download this version of State Form 45223 for the current year.

State Form 45223 Notification for Underground Storage Tank Systems - Indiana

What Is State Form 45223?

This is a legal form that was released by the Indiana Department of Environmental Management - a government authority operating within Indiana. Check the official instructions before completing and submitting the form.

FAQ

Q: What is State Form 45223?
A: State Form 45223 is the Notification for Underground Storage Tank Systems in Indiana.

Q: What is an underground storage tank system?
A: An underground storage tank system is a tank and any underground piping connected to the tank that has at least 10% of its volume underground.

Q: Why do I need to submit State Form 45223?
A: You need to submit State Form 45223 to notify the Indiana Department of Environmental Management (IDEM) about your underground storage tank system.

Q: Who needs to submit State Form 45223?
A: Anyone who owns or operates an underground storage tank system in Indiana needs to submit State Form 45223.

Q: When do I need to submit State Form 45223?
A: You need to submit State Form 45223 within 30 days of installing a new underground storage tank system or within 30 days of becoming the owner or operator of an existing underground storage tank system.

Q: Is there a fee for submitting State Form 45223?
A: Yes, there is a fee associated with submitting State Form 45223. The fee amount depends on the number of underground storage tank systems you have.

Q: What happens after I submit State Form 45223?
A: After you submit State Form 45223, the IDEM will review the information and may conduct inspections or request additional information.

Q: Are there any penalties for not submitting State Form 45223?
A: Yes, there are penalties for not submitting State Form 45223, including fines and potential closure of your underground storage tank system.

ADVERTISEMENT

Form Details:

  • Released on January 1, 2019;
  • The latest edition provided by the Indiana Department of Environmental Management;
  • Easy to use and ready to print;
  • Quick to customize;
  • Compatible with most PDF-viewing applications;
  • Fill out the form in our online filing application.

Download a fillable version of State Form 45223 by clicking the link below or browse more documents and templates provided by the Indiana Department of Environmental Management.

Download State Form 45223 Notification for Underground Storage Tank Systems - Indiana

4.6 of 5 (16 votes)
  • State Form 45223 Notification for Underground Storage Tank Systems - Indiana

    1

  • State Form 45223 Notification for Underground Storage Tank Systems - Indiana, Page 2

    2

  • State Form 45223 Notification for Underground Storage Tank Systems - Indiana, Page 3

    3

  • State Form 45223 Notification for Underground Storage Tank Systems - Indiana, Page 4

    4

  • State Form 45223 Notification for Underground Storage Tank Systems - Indiana, Page 5

    5

  • State Form 45223 Notification for Underground Storage Tank Systems - Indiana, Page 6

    6

  • State Form 45223 Notification for Underground Storage Tank Systems - Indiana, Page 7

    7

  • State Form 45223 Notification for Underground Storage Tank Systems - Indiana, Page 8

    8

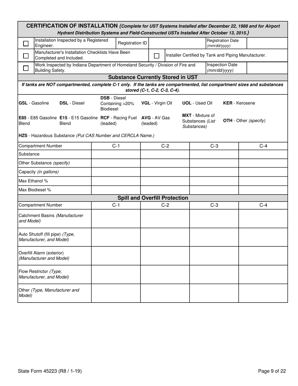
  • State Form 45223 Notification for Underground Storage Tank Systems - Indiana, Page 9

    9

  • State Form 45223 Notification for Underground Storage Tank Systems - Indiana, Page 10

    10

  • State Form 45223 Notification for Underground Storage Tank Systems - Indiana, Page 11

    11

  • State Form 45223 Notification for Underground Storage Tank Systems - Indiana, Page 12

    12

  • State Form 45223 Notification for Underground Storage Tank Systems - Indiana, Page 13

    13

  • State Form 45223 Notification for Underground Storage Tank Systems - Indiana, Page 14

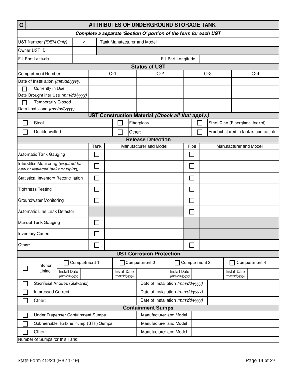
    14

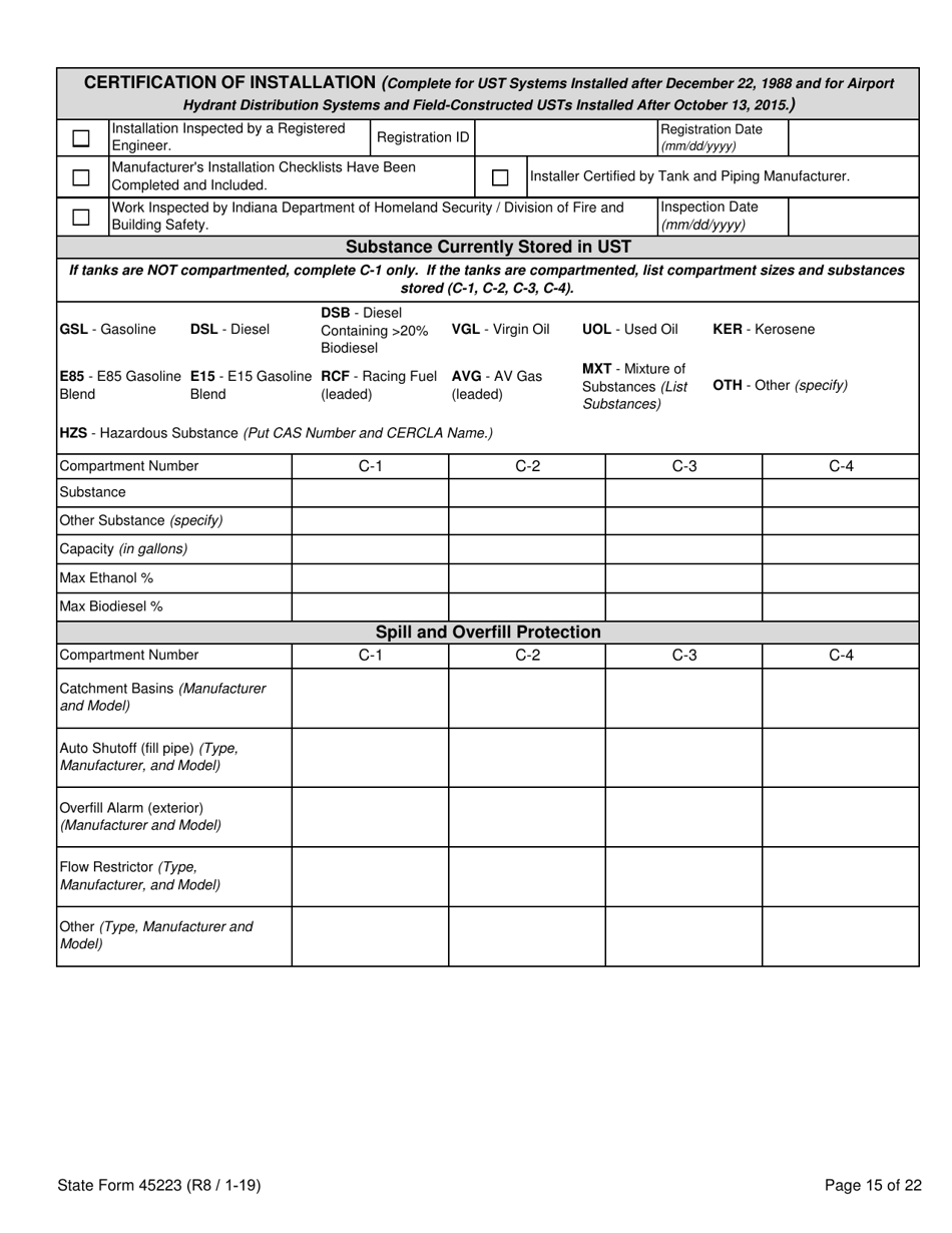
  • State Form 45223 Notification for Underground Storage Tank Systems - Indiana, Page 15

    15

  • State Form 45223 Notification for Underground Storage Tank Systems - Indiana, Page 16

    16

  • State Form 45223 Notification for Underground Storage Tank Systems - Indiana, Page 17

    17

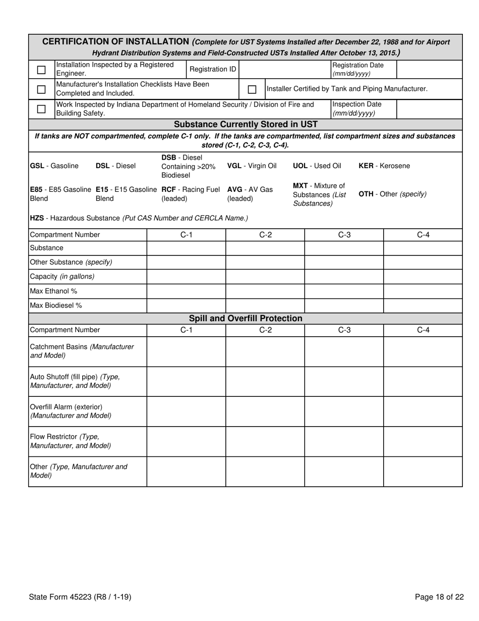
  • State Form 45223 Notification for Underground Storage Tank Systems - Indiana, Page 18

    18

  • State Form 45223 Notification for Underground Storage Tank Systems - Indiana, Page 19

    19

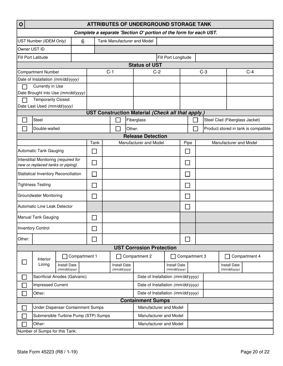
  • State Form 45223 Notification for Underground Storage Tank Systems - Indiana, Page 20

    20

  • State Form 45223 Notification for Underground Storage Tank Systems - Indiana, Page 21

    21

  • State Form 45223 Notification for Underground Storage Tank Systems - Indiana, Page 22

    22

  • State Form 45223 Notification for Underground Storage Tank Systems - Indiana, Page 1
  • State Form 45223 Notification for Underground Storage Tank Systems - Indiana, Page 2
  • State Form 45223 Notification for Underground Storage Tank Systems - Indiana, Page 3
  • State Form 45223 Notification for Underground Storage Tank Systems - Indiana, Page 4
  • State Form 45223 Notification for Underground Storage Tank Systems - Indiana, Page 5
  • State Form 45223 Notification for Underground Storage Tank Systems - Indiana, Page 6
  • State Form 45223 Notification for Underground Storage Tank Systems - Indiana, Page 7
  • State Form 45223 Notification for Underground Storage Tank Systems - Indiana, Page 8
  • State Form 45223 Notification for Underground Storage Tank Systems - Indiana, Page 9
  • State Form 45223 Notification for Underground Storage Tank Systems - Indiana, Page 10
  • State Form 45223 Notification for Underground Storage Tank Systems - Indiana, Page 11
  • State Form 45223 Notification for Underground Storage Tank Systems - Indiana, Page 12
  • State Form 45223 Notification for Underground Storage Tank Systems - Indiana, Page 13
  • State Form 45223 Notification for Underground Storage Tank Systems - Indiana, Page 14
  • State Form 45223 Notification for Underground Storage Tank Systems - Indiana, Page 15
  • State Form 45223 Notification for Underground Storage Tank Systems - Indiana, Page 16
  • State Form 45223 Notification for Underground Storage Tank Systems - Indiana, Page 17
  • State Form 45223 Notification for Underground Storage Tank Systems - Indiana, Page 18
  • State Form 45223 Notification for Underground Storage Tank Systems - Indiana, Page 19
  • State Form 45223 Notification for Underground Storage Tank Systems - Indiana, Page 20
  • State Form 45223 Notification for Underground Storage Tank Systems - Indiana, Page 21
  • State Form 45223 Notification for Underground Storage Tank Systems - Indiana, Page 22
Prev 1 2 3 4 5 ... 22 Next
ADVERTISEMENT