FEMA Form 086-0-34 Floodproofing Certificate for Non-residential Structures

FEMA Form 086-0-34 Floodproofing Certificate for Non-residential Structures

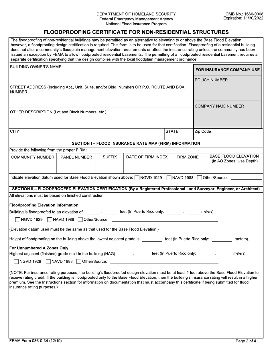
What Is FEMA Form 086-0-34?

This is a legal form that was released by the U.S. Department of Homeland Security - Federal Emergency Management Agency on December 1, 2019 and used country-wide. As of today, no separate filing guidelines for the form are provided by the issuing department.

FAQ

Q: What is FEMA Form 086-0-34?
A: FEMA Form 086-0-34 is a Floodproofing Certificate for Non-residential Structures.

Q: What is the purpose of FEMA Form 086-0-34?
A: The purpose of FEMA Form 086-0-34 is to certify that a non-residential structure has been floodproofed in accordance with applicable regulations.

Q: Who needs to fill out FEMA Form 086-0-34?
A: FEMA Form 086-0-34 needs to be filled out by the owner or authorized representative of a non-residential structure that has been floodproofed.

Q: What information is required on FEMA Form 086-0-34?
A: FEMA Form 086-0-34 requires information about the structure's location, floodproofing measures, and signatures of the owner and design professional.

ADVERTISEMENT

Form Details:

  • Released on December 1, 2019;
  • The latest available edition released by the U.S. Department of Homeland Security - Federal Emergency Management Agency;
  • Easy to use and ready to print;
  • Yours to fill out and keep for your records;
  • Compatible with most PDF-viewing applications;
  • Fill out the form in our online filing application.

Download a fillable version of FEMA Form 086-0-34 by clicking the link below or browse more documents and templates provided by the U.S. Department of Homeland Security - Federal Emergency Management Agency.

Download FEMA Form 086-0-34 Floodproofing Certificate for Non-residential Structures

4.5 of 5 (28 votes)
  • FEMA Form 086-0-34 Floodproofing Certificate for Non-residential Structures

    1

  • FEMA Form 086-0-34 Floodproofing Certificate for Non-residential Structures, Page 2

    2

  • FEMA Form 086-0-34 Floodproofing Certificate for Non-residential Structures, Page 3

    3

  • FEMA Form 086-0-34 Floodproofing Certificate for Non-residential Structures, Page 4

    4

  • FEMA Form 086-0-34 Floodproofing Certificate for Non-residential Structures, Page 1
  • FEMA Form 086-0-34 Floodproofing Certificate for Non-residential Structures, Page 2
  • FEMA Form 086-0-34 Floodproofing Certificate for Non-residential Structures, Page 3
  • FEMA Form 086-0-34 Floodproofing Certificate for Non-residential Structures, Page 4
Prev 1 2 3 4 Next
ADVERTISEMENT