Form BMPR CM02 Type I / II Portland Cement Pre / Pro Split Sample Report - Illinois

Form BMPR CM02 Type I / II Portland Cement Pre / Pro Split Sample Report - Illinois

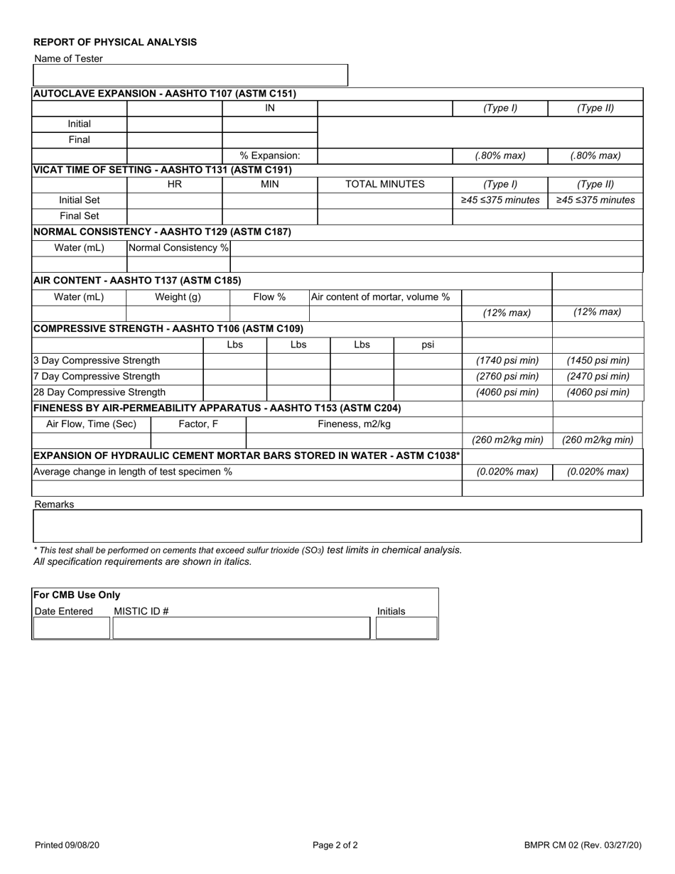
What Is Form BMPR CM02?

This is a legal form that was released by the Illinois Department of Transportation - a government authority operating within Illinois. As of today, no separate filing guidelines for the form are provided by the issuing department.

FAQ

Q: What is the title of the document?
A: Form BMPR CM02 Type I/II Portland Cement Pre/Pro Split Sample Report - Illinois

Q: What type of cement does the report focus on?
A: Type I/II Portland Cement

Q: What is the purpose of the document?
A: To report the results of a split sample test for cement

Q: Which state is the report from?
A: Illinois

ADVERTISEMENT

Form Details:

  • Released on March 27, 2020;
  • The latest edition provided by the Illinois Department of Transportation;
  • Easy to use and ready to print;
  • Quick to customize;
  • Compatible with most PDF-viewing applications;
  • Fill out the form in our online filing application.

Download a fillable version of Form BMPR CM02 by clicking the link below or browse more documents and templates provided by the Illinois Department of Transportation.

Download Form BMPR CM02 Type I / II Portland Cement Pre / Pro Split Sample Report - Illinois

4.6 of 5 (24 votes)
  • Form BMPR CM02 Type I/II Portland Cement Pre/Pro Split Sample Report - Illinois

    1

  • Form BMPR CM02 Type I/II Portland Cement Pre/Pro Split Sample Report - Illinois, Page 2

    2

  • Form BMPR CM02 Type I / II Portland Cement Pre / Pro Split Sample Report - Illinois, Page 1
  • Form BMPR CM02 Type I / II Portland Cement Pre / Pro Split Sample Report - Illinois, Page 2
Prev 1 2 Next
ADVERTISEMENT