Form MAP-811 Enrollment - Kentucky

Form MAP-811 Enrollment - Kentucky

What Is Form MAP-811?

This is a legal form that was released by the Kentucky Department for Medicaid Services - a government authority operating within Kentucky. As of today, no separate filing guidelines for the form are provided by the issuing department.

FAQ

Q: What is a MAP-811 Enrollment form?
A: A MAP-811 Enrollment form is a document used in Kentucky to request utility line locates before digging or excavating.

Q: Why do I need to fill out a MAP-811 Enrollment form?
A: You need to fill out a MAP-811 Enrollment form to ensure that utilities are properly marked and avoid damaging underground utility lines.

Q: How do I fill out a MAP-811 Enrollment form?
A: To fill out a MAP-811 Enrollment form, you will need to provide information about your project, including the location, type of work, and desired start date.

Q: Are there any fees for submitting a MAP-811 Enrollment form?
A: Yes, there may be fees associated with submitting a MAP-811 Enrollment form in Kentucky. These fees vary depending on the utility company and the scope of your project.

Q: How far in advance should I submit a MAP-811 Enrollment form?
A: It is recommended to submit a MAP-811 Enrollment form at least 3 business days before you plan to start digging or excavating.

Q: What happens after I submit a MAP-811 Enrollment form?
A: After you submit a MAP-811 Enrollment form, the utility companies in your area will mark the location of their underground lines within a designated timeframe.

Q: What should I do if the utility lines are not marked after submitting a MAP-811 Enrollment form?
A: If the utility lines are not marked within the specified timeframe, you should contact the Kentucky Public Service Commission or your local utility company to report the issue.

ADVERTISEMENT

Form Details:

  • Released on March 1, 2019;
  • The latest edition provided by the Kentucky Department for Medicaid Services;
  • Easy to use and ready to print;
  • Quick to customize;
  • Compatible with most PDF-viewing applications;
  • Fill out the form in our online filing application.

Download a fillable version of Form MAP-811 by clicking the link below or browse more documents and templates provided by the Kentucky Department for Medicaid Services.

Download Form MAP-811 Enrollment - Kentucky

4.5 of 5 (30 votes)
  • Form MAP-811 Enrollment - Kentucky

    1

  • Form MAP-811 Enrollment - Kentucky, Page 2

    2

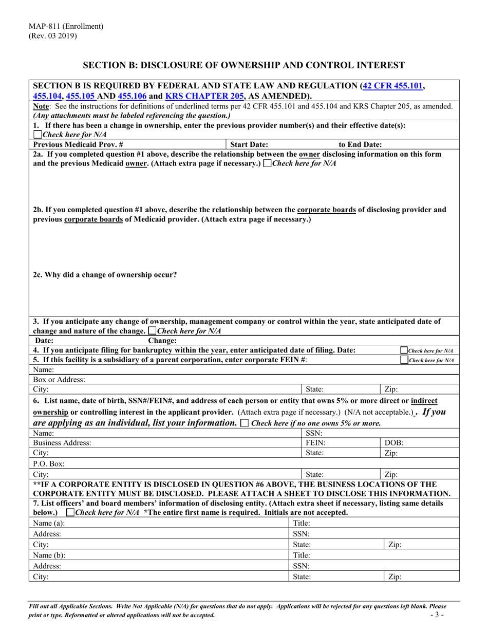
  • Form MAP-811 Enrollment - Kentucky, Page 3

    3

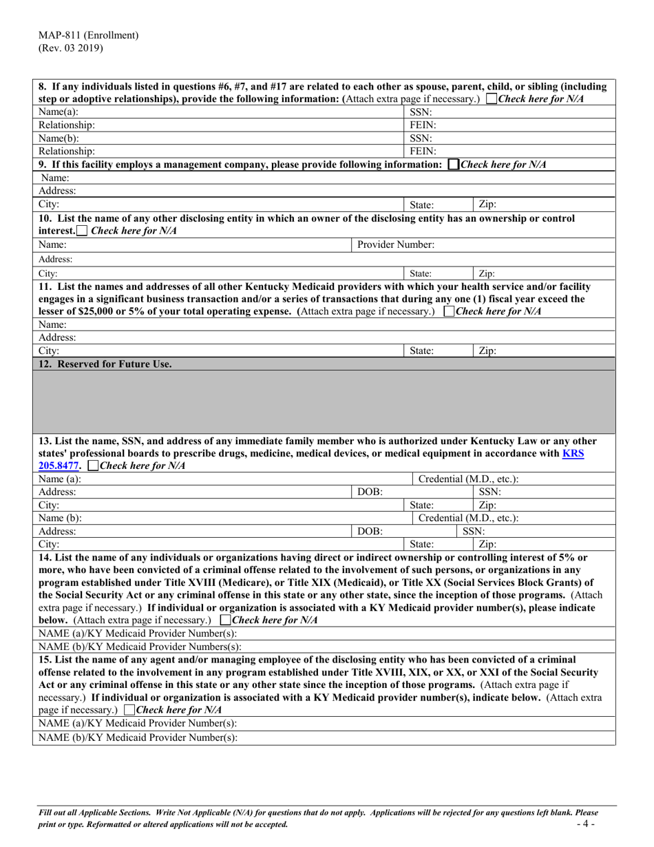
  • Form MAP-811 Enrollment - Kentucky, Page 4

    4

  • Form MAP-811 Enrollment - Kentucky, Page 5

    5

  • Form MAP-811 Enrollment - Kentucky, Page 6

    6

  • Form MAP-811 Enrollment - Kentucky, Page 7

    7

  • Form MAP-811 Enrollment - Kentucky, Page 8

    8

  • Form MAP-811 Enrollment - Kentucky, Page 9

    9

  • Form MAP-811 Enrollment - Kentucky, Page 10

    10

  • Form MAP-811 Enrollment - Kentucky, Page 11

    11

  • Form MAP-811 Enrollment - Kentucky, Page 12

    12

  • Form MAP-811 Enrollment - Kentucky, Page 13

    13

  • Form MAP-811 Enrollment - Kentucky, Page 14

    14

  • Form MAP-811 Enrollment - Kentucky, Page 15

    15

  • Form MAP-811 Enrollment - Kentucky, Page 1
  • Form MAP-811 Enrollment - Kentucky, Page 2
  • Form MAP-811 Enrollment - Kentucky, Page 3
  • Form MAP-811 Enrollment - Kentucky, Page 4
  • Form MAP-811 Enrollment - Kentucky, Page 5
  • Form MAP-811 Enrollment - Kentucky, Page 6
  • Form MAP-811 Enrollment - Kentucky, Page 7
  • Form MAP-811 Enrollment - Kentucky, Page 8
  • Form MAP-811 Enrollment - Kentucky, Page 9
  • Form MAP-811 Enrollment - Kentucky, Page 10
  • Form MAP-811 Enrollment - Kentucky, Page 11
  • Form MAP-811 Enrollment - Kentucky, Page 12
  • Form MAP-811 Enrollment - Kentucky, Page 13
  • Form MAP-811 Enrollment - Kentucky, Page 14
  • Form MAP-811 Enrollment - Kentucky, Page 15
Prev 1 2 3 4 5 ... 15 Next
ADVERTISEMENT