Form DWM4227 Ust Impressed Current Cathodic Protection Evaluation - Kentucky

Form DWM4227 Ust Impressed Current Cathodic Protection Evaluation - Kentucky

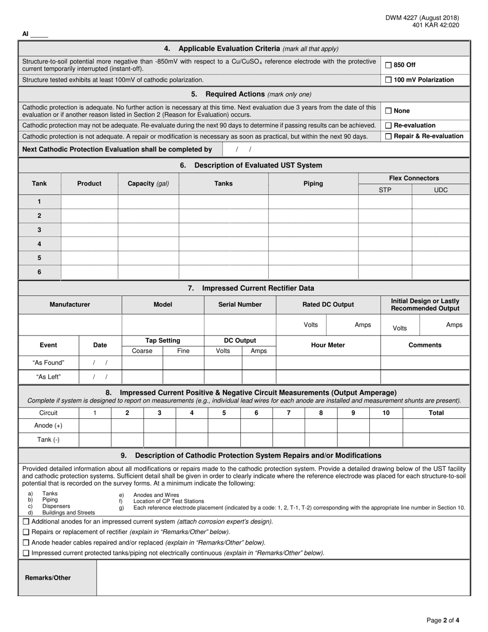
What Is Form DWM4227?

This is a legal form that was released by the Kentucky Energy and Environment Cabinet - a government authority operating within Kentucky. As of today, no separate filing guidelines for the form are provided by the issuing department.

FAQ

Q: What is Form DWM4227?
A: Form DWM4227 is an evaluation form for UST (Underground Storage Tank) Impressed Current Cathodic Protection.

Q: What is UST?
A: UST stands for Underground Storage Tank.

Q: What is Impressed Current Cathodic Protection?
A: Impressed Current Cathodic Protection is a method used to protect underground tanks from corrosion.

Q: What is the purpose of Form DWM4227?
A: The purpose of Form DWM4227 is to evaluate the effectiveness of Impressed Current Cathodic Protection on USTs in Kentucky.

Q: Who is responsible for completing Form DWM4227?
A: The owner or operator of the UST is responsible for completing Form DWM4227.

Q: What does the evaluation entail?
A: The evaluation includes inspecting the cathodic protection system, testing the UST's electrical isolation, and analyzing the system's operational data.

Q: Why is cathodic protection important for USTs?
A: Cathodic protection helps prevent corrosion of the USTs, which can lead to leaks and contamination of the surrounding soil and groundwater.

Q: Is Form DWM4227 specific to Kentucky?
A: Yes, Form DWM4227 is specific to Kentucky and is used to evaluate USTs in the state.

Q: Is Form DWM4227 mandatory for UST owners?
A: Yes, UST owners are required to complete and submit Form DWM4227 as part of the evaluation process.

ADVERTISEMENT

Form Details:

  • Released on August 1, 2018;
  • The latest edition provided by the Kentucky Energy and Environment Cabinet;
  • Easy to use and ready to print;
  • Quick to customize;
  • Compatible with most PDF-viewing applications;
  • Fill out the form in our online filing application.

Download a printable version of Form DWM4227 by clicking the link below or browse more documents and templates provided by the Kentucky Energy and Environment Cabinet.

Download Form DWM4227 Ust Impressed Current Cathodic Protection Evaluation - Kentucky

4.8 of 5 (5 votes)
  • Form DWM4227 Ust Impressed Current Cathodic Protection Evaluation - Kentucky

    1

  • Form DWM4227 Ust Impressed Current Cathodic Protection Evaluation - Kentucky, Page 2

    2

  • Form DWM4227 Ust Impressed Current Cathodic Protection Evaluation - Kentucky, Page 3

    3

  • Form DWM4227 Ust Impressed Current Cathodic Protection Evaluation - Kentucky, Page 4

    4

  • Form DWM4227 Ust Impressed Current Cathodic Protection Evaluation - Kentucky, Page 5

    5

  • Form DWM4227 Ust Impressed Current Cathodic Protection Evaluation - Kentucky, Page 6

    6

  • Form DWM4227 Ust Impressed Current Cathodic Protection Evaluation - Kentucky, Page 7

    7

  • Form DWM4227 Ust Impressed Current Cathodic Protection Evaluation - Kentucky, Page 1
  • Form DWM4227 Ust Impressed Current Cathodic Protection Evaluation - Kentucky, Page 2
  • Form DWM4227 Ust Impressed Current Cathodic Protection Evaluation - Kentucky, Page 3
  • Form DWM4227 Ust Impressed Current Cathodic Protection Evaluation - Kentucky, Page 4
  • Form DWM4227 Ust Impressed Current Cathodic Protection Evaluation - Kentucky, Page 5
  • Form DWM4227 Ust Impressed Current Cathodic Protection Evaluation - Kentucky, Page 6
  • Form DWM4227 Ust Impressed Current Cathodic Protection Evaluation - Kentucky, Page 7
Prev 1 2 3 4 5 ... 7 Next
ADVERTISEMENT