Idwr South Fork Clearwater River Special Supplement Application - Idaho

Idwr South Fork Clearwater River Special Supplement Application - Idaho

Idwr South Fork Clearwater River Special Supplement Application is a legal document that was released by the Idaho Department of Environmental Quality - a government authority operating within Idaho.

FAQ

Q: What is the IDWR South Fork Clearwater River Special Supplement Application?
A: The IDWR South Fork Clearwater River Special Supplement Application is a document specific to Idaho that is used for special applications related to the South Fork Clearwater River.

Q: What is the purpose of the IDWR South Fork Clearwater River Special Supplement Application?
A: The purpose of this application is to allow individuals or organizations to apply for special use permits or other forms of approval related to the South Fork Clearwater River.

Q: Who needs to fill out the IDWR South Fork Clearwater River Special Supplement Application?
A: Anyone who wants to request a special use permit or seek approval for activities or projects related to the South Fork Clearwater River in Idaho may need to fill out this application.

Q: Are there any fees associated with the IDWR South Fork Clearwater River Special Supplement Application?
A: There may be fees associated with the application, but you would need to check with the IDWR or refer to the instructions provided with the application for specific details.

Q: What types of activities or projects require the IDWR South Fork Clearwater River Special Supplement Application?
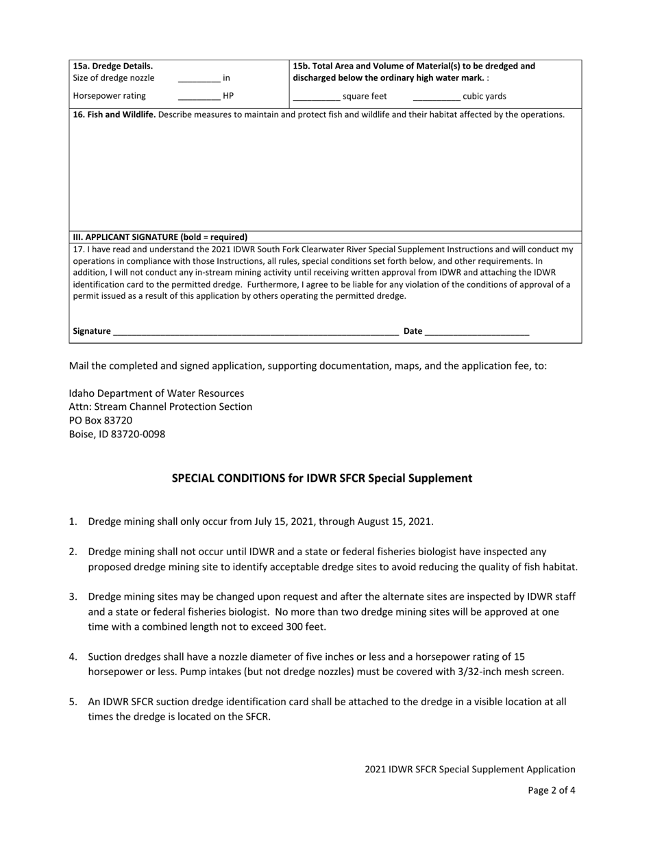
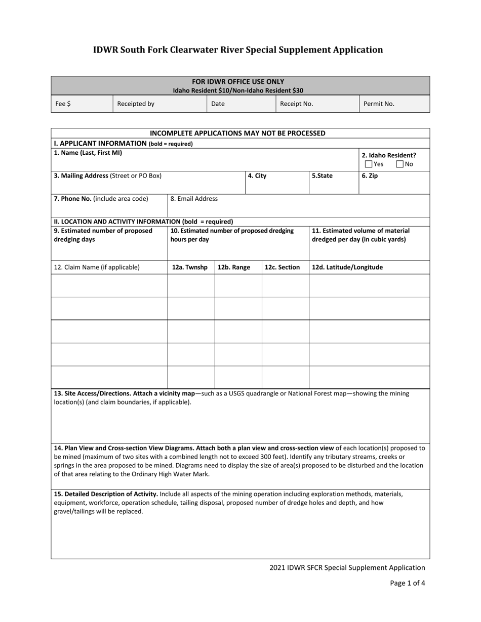
A: Activities or projects that may require this application include, but are not limited to, water diversions, water use for irrigation, construction of dams or weirs, and other activities that may affect the South Fork Clearwater River.

Q: Are there any restrictions or guidelines to consider when filling out the IDWR South Fork Clearwater River Special Supplement Application?
A: Yes, there may be specific restrictions or guidelines that need to be followed when filling out the application. Make sure to read the instructions carefully and provide all the necessary information.

Q: How long does it take to process the IDWR South Fork Clearwater River Special Supplement Application?
A: The processing time can vary depending on the complexity of the request and other factors. It is best to contact the IDWR directly for an estimated processing time.

Q: What should I do if I have questions or need assistance with the IDWR South Fork Clearwater River Special Supplement Application?
A: If you have any questions or need assistance, you can reach out to the IDWR for guidance. They should be able to provide the necessary support or direct you to the appropriate resources.

ADVERTISEMENT

Form Details:

  • The latest edition currently provided by the Idaho Department of Environmental Quality;
  • Ready to use and print;
  • Easy to customize;
  • Compatible with most PDF-viewing applications;
  • Fill out the form in our online filing application.

Download a printable version of the form by clicking the link below or browse more documents and templates provided by the Idaho Department of Environmental Quality.

Download Idwr South Fork Clearwater River Special Supplement Application - Idaho

4.6 of 5 (18 votes)
  • Idwr South Fork Clearwater River Special Supplement Application - Idaho

    1

  • Idwr South Fork Clearwater River Special Supplement Application - Idaho, Page 2

    2

  • Idwr South Fork Clearwater River Special Supplement Application - Idaho, Page 3

    3

  • Idwr South Fork Clearwater River Special Supplement Application - Idaho, Page 4

    4

  • Idwr South Fork Clearwater River Special Supplement Application - Idaho, Page 5

    5

  • Idwr South Fork Clearwater River Special Supplement Application - Idaho, Page 6

    6

  • Idwr South Fork Clearwater River Special Supplement Application - Idaho, Page 1
  • Idwr South Fork Clearwater River Special Supplement Application - Idaho, Page 2
  • Idwr South Fork Clearwater River Special Supplement Application - Idaho, Page 3
  • Idwr South Fork Clearwater River Special Supplement Application - Idaho, Page 4
  • Idwr South Fork Clearwater River Special Supplement Application - Idaho, Page 5
  • Idwr South Fork Clearwater River Special Supplement Application - Idaho, Page 6
Prev 1 2 3 4 5 6 Next
ADVERTISEMENT