Form REPL-19-0025 Home Inspector Complaint Form - Ohio

Form REPL-19-0025 Home Inspector Complaint Form - Ohio

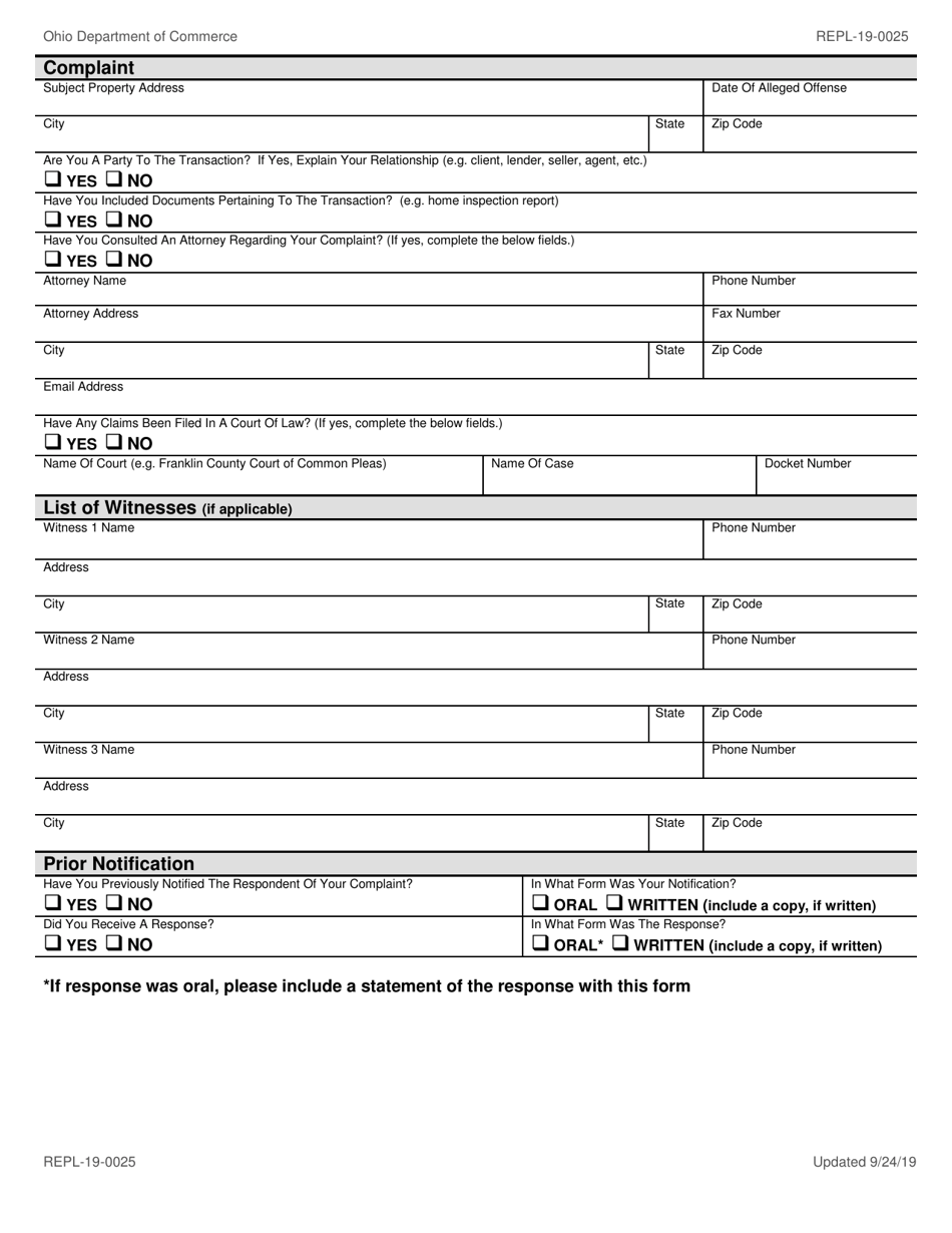
What Is Form REPL-19-0025?

This is a legal form that was released by the Ohio Department of Commerce - a government authority operating within Ohio. As of today, no separate filing guidelines for the form are provided by the issuing department.

FAQ

Q: What is the purpose of the Form REPL-19-0025 Home Inspector Complaint Form?
A: The form is used to file a complaint against a home inspector in Ohio.

Q: Who can file a complaint using this form?
A: Any individual who has a complaint against a home inspector in Ohio can file using this form.

Q: What information do I need to provide on the form?
A: You will need to provide details about the complaint, the home inspector's information, and your contact information.

Q: What happens after I submit the complaint form?
A: The Ohio Division of Real Estate & Professional Licensing will review the complaint and take appropriate action.

ADVERTISEMENT

Form Details:

  • Released on September 24, 2019;
  • The latest edition provided by the Ohio Department of Commerce;
  • Easy to use and ready to print;
  • Quick to customize;
  • Compatible with most PDF-viewing applications;
  • Fill out the form in our online filing application.

Download a fillable version of Form REPL-19-0025 by clicking the link below or browse more documents and templates provided by the Ohio Department of Commerce.

Download Form REPL-19-0025 Home Inspector Complaint Form - Ohio

4.7 of 5 (21 votes)
  • Form REPL-19-0025 Home Inspector Complaint Form - Ohio

    1

  • Form REPL-19-0025 Home Inspector Complaint Form - Ohio, Page 2

    2

  • Form REPL-19-0025 Home Inspector Complaint Form - Ohio, Page 3

    3

  • Form REPL-19-0025 Home Inspector Complaint Form - Ohio, Page 4

    4

  • Form REPL-19-0025 Home Inspector Complaint Form - Ohio, Page 1
  • Form REPL-19-0025 Home Inspector Complaint Form - Ohio, Page 2
  • Form REPL-19-0025 Home Inspector Complaint Form - Ohio, Page 3
  • Form REPL-19-0025 Home Inspector Complaint Form - Ohio, Page 4
Prev 1 2 3 4 Next
ADVERTISEMENT