Post-installation Testing of New or Replaced Underground Storage Tanks, Product Piping, and / or Motor Fuel Dispensers - Nevada

Post-installation Testing of New or Replaced Underground Storage Tanks, Product Piping, and / or Motor Fuel Dispensers - Nevada

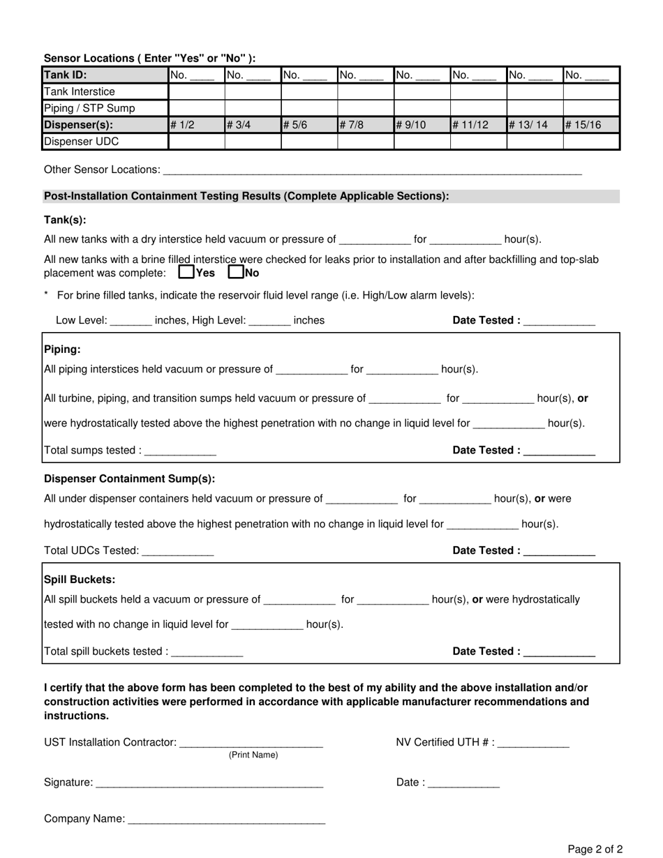
Post-installation Testing of New or Replaced Motor Fuel Dispensers is a legal document that was released by the Nevada Department of Conservation and Natural Resources - a government authority operating within Nevada.

FAQ

Q: Why is post-installation testing necessary for underground storage tanks, product piping, and motor fuel dispensers?
A: Post-installation testing is necessary to ensure the proper installation and functionality of these systems to prevent leaks and environmental contamination.

Q: What is post-installation testing?
A: Post-installation testing is a series of tests and inspections conducted after the installation or replacement of underground storage tanks, product piping, and/or motor fuel dispensers.

Q: Who is responsible for conducting post-installation testing?
A: The owner or operator of the underground storage tank system is responsible for conducting post-installation testing.

Q: What are some common types of post-installation tests?
A: Some common types of post-installation tests include hydrostatic testing, vacuum testing, and leak detection testing.

Q: What is hydrostatic testing?
A: Hydrostatic testing is a method of testing the structural integrity of underground storage tanks and product piping by filling them with water and applying pressure.

Q: What is vacuum testing?
A: Vacuum testing is a method of testing the tightness of underground storage tanks and product piping by creating a negative pressure and monitoring for any pressure loss.

Q: What is leak detection testing?
A: Leak detection testing is a method of testing for any leaks or potential leaks in underground storage tanks, product piping, and motor fuel dispensers using specialized equipment.

Q: Are there any regulations or guidelines for post-installation testing in Nevada?
A: Yes, Nevada has regulations and guidelines for post-installation testing, which can be found in the Nevada Administrative Code (NAC) and Nevada Revised Statutes (NRS).

Q: What should be done if a leak or any issues are found during post-installation testing?
A: If a leak or any issues are found during post-installation testing, immediate actions should be taken to address and correct the problem, such as repairing or replacing the affected components.

Q: Can a professional contractor or company be hired to conduct post-installation testing?
A: Yes, a professional contractor or company specializing in post-installation testing can be hired to conduct the necessary tests and inspections.

ADVERTISEMENT

Form Details:

  • The latest edition currently provided by the Nevada Department of Conservation and Natural Resources;
  • Ready to use and print;
  • Easy to customize;
  • Compatible with most PDF-viewing applications;
  • Fill out the form in our online filing application.

Download a printable version of the form by clicking the link below or browse more documents and templates provided by the Nevada Department of Conservation and Natural Resources.

Download Post-installation Testing of New or Replaced Underground Storage Tanks, Product Piping, and / or Motor Fuel Dispensers - Nevada

4.3 of 5 (7 votes)
  • Post-installation Testing of New or Replaced Underground Storage Tanks, Product Piping, and/or Motor Fuel Dispensers - Nevada

    1

  • Post-installation Testing of New or Replaced Underground Storage Tanks, Product Piping, and/or Motor Fuel Dispensers - Nevada, Page 2

    2

  • Post-installation Testing of New or Replaced Underground Storage Tanks, Product Piping, and / or Motor Fuel Dispensers - Nevada, Page 1
  • Post-installation Testing of New or Replaced Underground Storage Tanks, Product Piping, and / or Motor Fuel Dispensers - Nevada, Page 2
Prev 1 2 Next
ADVERTISEMENT