Form 924LA Agricultural Use Assessment Application - Nevada

Form 924LA Agricultural Use Assessment Application - Nevada

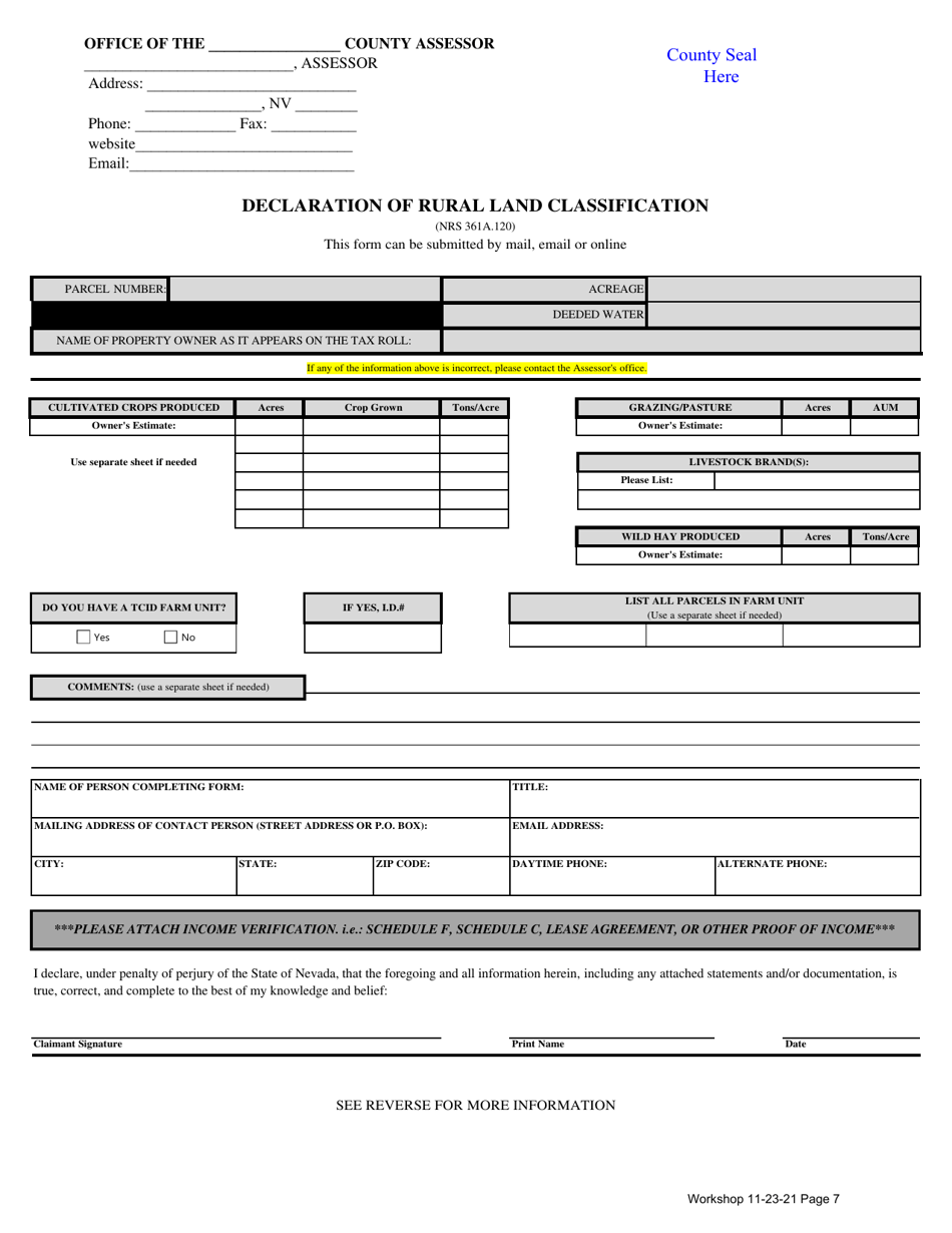
What Is Form 924LA?

This is a legal form that was released by the Nevada Department of Taxation - a government authority operating within Nevada. As of today, no separate filing guidelines for the form are provided by the issuing department.

FAQ

Q: What is Form 924LA?
A: Form 924LA is the Agricultural Use Assessment Application in Nevada.

Q: What is the purpose of Form 924LA?
A: The purpose of Form 924LA is to apply for agricultural use assessment of property in Nevada.

Q: Who is eligible to use Form 924LA?
A: Property owners in Nevada who use their land for agricultural purposes are eligible to use Form 924LA.

Q: What information do I need to provide on Form 924LA?
A: You will need to provide information about the property, its agricultural use, and your contact details on Form 924LA.

Q: When is Form 924LA due?
A: Form 924LA is due annually on the last day of February.

Q: What happens after I submit Form 924LA?
A: After you submit Form 924LA, the Nevada Department of Taxation will review your application and determine if your property qualifies for agricultural use assessment.

Q: What are the benefits of agricultural use assessment in Nevada?
A: The main benefit of agricultural use assessment is a lower property tax assessment, which can result in significant tax savings for property owners.

Q: Can I appeal a denial of agricultural use assessment?
A: Yes, if your application for agricultural use assessment is denied, you have the right to appeal the decision.

ADVERTISEMENT

Form Details:

  • Released on November 23, 2021;
  • The latest edition provided by the Nevada Department of Taxation;
  • Easy to use and ready to print;
  • Quick to customize;
  • Compatible with most PDF-viewing applications;
  • Fill out the form in our online filing application.

Download a fillable version of Form 924LA by clicking the link below or browse more documents and templates provided by the Nevada Department of Taxation.

Download Form 924LA Agricultural Use Assessment Application - Nevada

4.7 of 5 (34 votes)
  • Form 924LA Agricultural Use Assessment Application - Nevada

    1

  • Form 924LA Agricultural Use Assessment Application - Nevada, Page 2

    2

  • Form 924LA Agricultural Use Assessment Application - Nevada, Page 3

    3

  • Form 924LA Agricultural Use Assessment Application - Nevada, Page 4

    4

  • Form 924LA Agricultural Use Assessment Application - Nevada, Page 5

    5

  • Form 924LA Agricultural Use Assessment Application - Nevada, Page 6

    6

  • Form 924LA Agricultural Use Assessment Application - Nevada, Page 7

    7

  • Form 924LA Agricultural Use Assessment Application - Nevada, Page 8

    8

  • Form 924LA Agricultural Use Assessment Application - Nevada, Page 1
  • Form 924LA Agricultural Use Assessment Application - Nevada, Page 2
  • Form 924LA Agricultural Use Assessment Application - Nevada, Page 3
  • Form 924LA Agricultural Use Assessment Application - Nevada, Page 4
  • Form 924LA Agricultural Use Assessment Application - Nevada, Page 5
  • Form 924LA Agricultural Use Assessment Application - Nevada, Page 6
  • Form 924LA Agricultural Use Assessment Application - Nevada, Page 7
  • Form 924LA Agricultural Use Assessment Application - Nevada, Page 8
Prev 1 2 3 4 5 ... 8 Next
ADVERTISEMENT