State Form 56815 Application for a Boiler or Pressure Vessel Variance - Indiana

State Form 56815 Application for a Boiler or Pressure Vessel Variance - Indiana

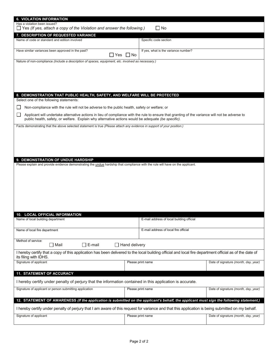
What Is State Form 56815?

This is a legal form that was released by the Indiana Department of Homeland Security - a government authority operating within Indiana. As of today, no separate filing guidelines for the form are provided by the issuing department.

FAQ

Q: What is Form 56815?
A: Form 56815 is an application for a boiler or pressure vessel variance in the state of Indiana.

Q: What is a boiler or pressure vessel variance?
A: A boiler or pressure vessel variance is a permit that allows deviations from the standard regulations for boilers and pressure vessels.

Q: Who needs to submit Form 56815?
A: Anyone in Indiana who wants to request a variance for their boiler or pressure vessel needs to submit Form 56815.

Q: What information is required on Form 56815?
A: Form 56815 requires information about the applicant, the boiler or pressure vessel, and the specific variance requested.

Q: How long does it take to process Form 56815?
A: The processing time for Form 56815 varies and depends on the complexity of the variance requested.

ADVERTISEMENT

Form Details:

  • Released on August 1, 2019;
  • The latest edition provided by the Indiana Department of Homeland Security;
  • Easy to use and ready to print;
  • Quick to customize;
  • Compatible with most PDF-viewing applications;
  • Fill out the form in our online filing application.

Download a fillable version of State Form 56815 by clicking the link below or browse more documents and templates provided by the Indiana Department of Homeland Security.

Download State Form 56815 Application for a Boiler or Pressure Vessel Variance - Indiana

4.4 of 5 (17 votes)
  • State Form 56815 Application for a Boiler or Pressure Vessel Variance - Indiana

    1

  • State Form 56815 Application for a Boiler or Pressure Vessel Variance - Indiana, Page 2

    2

  • State Form 56815 Application for a Boiler or Pressure Vessel Variance - Indiana, Page 3

    3

  • State Form 56815 Application for a Boiler or Pressure Vessel Variance - Indiana, Page 4

    4

  • State Form 56815 Application for a Boiler or Pressure Vessel Variance - Indiana, Page 1
  • State Form 56815 Application for a Boiler or Pressure Vessel Variance - Indiana, Page 2
  • State Form 56815 Application for a Boiler or Pressure Vessel Variance - Indiana, Page 3
  • State Form 56815 Application for a Boiler or Pressure Vessel Variance - Indiana, Page 4
Prev 1 2 3 4 Next
ADVERTISEMENT