Invitation to Bid (Itb) Bid Form - Installation, Repair and Maintenance of Fencing - District - Georgia (United States)

Invitation to Bid (Itb) Bid Form - Installation, Repair and Maintenance of Fencing - District - Georgia (United States)

Invitation to Bid (Itb) Bid Form - Installation, Repair and Maintenance of Fencing - District is a legal document that was released by the Georgia Department of Transportation - a government authority operating within Georgia (United States).

FAQ

Q: What is the Invitation to Bid (ITB) Bid Form?
A: The ITB Bid Form is a document used to invite bids for the installation, repair, and maintenance of fencing.

Q: What is the purpose of the ITB Bid Form?
A: The purpose of the ITB Bid Form is to request bids from contractors for the installation, repair, and maintenance of fencing in a specific district in Georgia, United States.

Q: Who can participate in the bidding process?
A: Any qualified contractor can participate in the bidding process.

Q: What is the scope of work for this project?
A: The scope of work for this project includes the installation, repair, and maintenance of fencing in a district in Georgia, United States.

ADVERTISEMENT

Form Details:

  • Released on January 15, 2020;
  • The latest edition currently provided by the Georgia Department of Transportation;
  • Ready to use and print;
  • Easy to customize;
  • Compatible with most PDF-viewing applications;
  • Fill out the form in our online filing application.

Download a printable version of the form by clicking the link below or browse more documents and templates provided by the Georgia Department of Transportation.

Download Invitation to Bid (Itb) Bid Form - Installation, Repair and Maintenance of Fencing - District - Georgia (United States)

4.3 of 5 (12 votes)
  • Invitation to Bid (Itb) Bid Form - Installation, Repair and Maintenance of Fencing - District - Georgia (United States)

    1

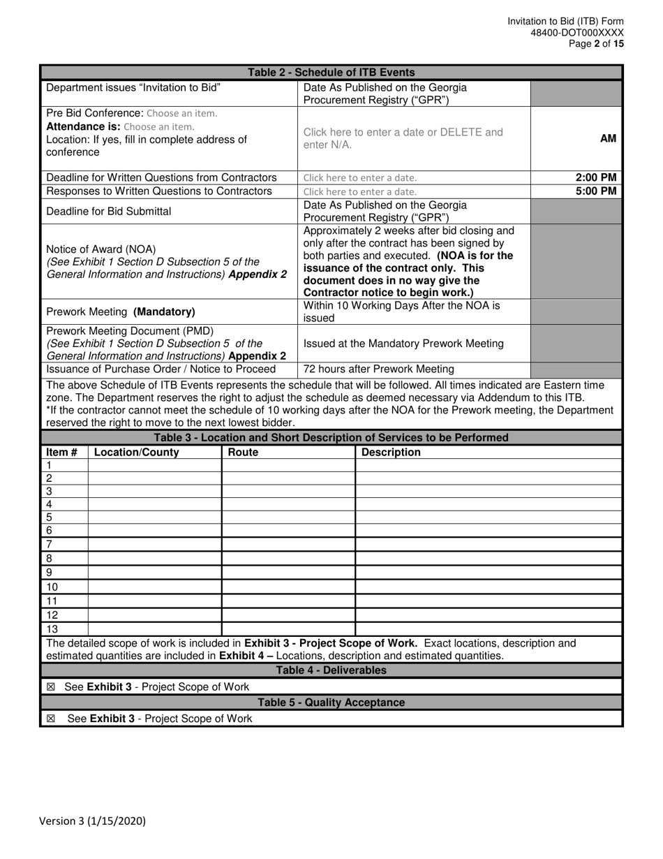
  • Invitation to Bid (Itb) Bid Form - Installation, Repair and Maintenance of Fencing - District - Georgia (United States), Page 2

    2

  • Invitation to Bid (Itb) Bid Form - Installation, Repair and Maintenance of Fencing - District - Georgia (United States), Page 3

    3

  • Invitation to Bid (Itb) Bid Form - Installation, Repair and Maintenance of Fencing - District - Georgia (United States), Page 4

    4

  • Invitation to Bid (Itb) Bid Form - Installation, Repair and Maintenance of Fencing - District - Georgia (United States), Page 5

    5

  • Invitation to Bid (Itb) Bid Form - Installation, Repair and Maintenance of Fencing - District - Georgia (United States), Page 6

    6

  • Invitation to Bid (Itb) Bid Form - Installation, Repair and Maintenance of Fencing - District - Georgia (United States), Page 7

    7

  • Invitation to Bid (Itb) Bid Form - Installation, Repair and Maintenance of Fencing - District - Georgia (United States), Page 8

    8

  • Invitation to Bid (Itb) Bid Form - Installation, Repair and Maintenance of Fencing - District - Georgia (United States), Page 9

    9

  • Invitation to Bid (Itb) Bid Form - Installation, Repair and Maintenance of Fencing - District - Georgia (United States), Page 10

    10

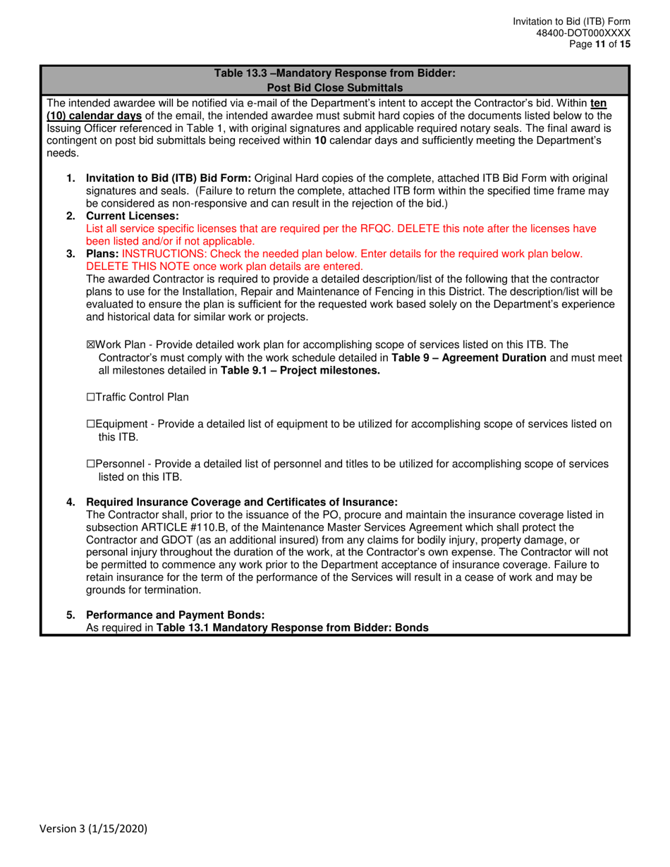
  • Invitation to Bid (Itb) Bid Form - Installation, Repair and Maintenance of Fencing - District - Georgia (United States), Page 11

    11

  • Invitation to Bid (Itb) Bid Form - Installation, Repair and Maintenance of Fencing - District - Georgia (United States), Page 12

    12

  • Invitation to Bid (Itb) Bid Form - Installation, Repair and Maintenance of Fencing - District - Georgia (United States), Page 13

    13

  • Invitation to Bid (Itb) Bid Form - Installation, Repair and Maintenance of Fencing - District - Georgia (United States), Page 14

    14

  • Invitation to Bid (Itb) Bid Form - Installation, Repair and Maintenance of Fencing - District - Georgia (United States), Page 15

    15

  • Invitation to Bid (Itb) Bid Form - Installation, Repair and Maintenance of Fencing - District - Georgia (United States), Page 16

    16

  • Invitation to Bid (Itb) Bid Form - Installation, Repair and Maintenance of Fencing - District - Georgia (United States), Page 17

    17

  • Invitation to Bid (Itb) Bid Form - Installation, Repair and Maintenance of Fencing - District - Georgia (United States), Page 18

    18

  • Invitation to Bid (Itb) Bid Form - Installation, Repair and Maintenance of Fencing - District - Georgia (United States), Page 19

    19

  • Invitation to Bid (Itb) Bid Form - Installation, Repair and Maintenance of Fencing - District - Georgia (United States), Page 20

    20

  • Invitation to Bid (Itb) Bid Form - Installation, Repair and Maintenance of Fencing - District - Georgia (United States), Page 21

    21

  • Invitation to Bid (Itb) Bid Form - Installation, Repair and Maintenance of Fencing - District - Georgia (United States), Page 22

    22

  • Invitation to Bid (Itb) Bid Form - Installation, Repair and Maintenance of Fencing - District - Georgia (United States), Page 23

    23

  • Invitation to Bid (Itb) Bid Form - Installation, Repair and Maintenance of Fencing - District - Georgia (United States), Page 24

    24

  • Invitation to Bid (Itb) Bid Form - Installation, Repair and Maintenance of Fencing - District - Georgia (United States), Page 25

    25

  • Invitation to Bid (Itb) Bid Form - Installation, Repair and Maintenance of Fencing - District - Georgia (United States), Page 26

    26

  • Invitation to Bid (Itb) Bid Form - Installation, Repair and Maintenance of Fencing - District - Georgia (United States), Page 27

    27

  • Invitation to Bid (Itb) Bid Form - Installation, Repair and Maintenance of Fencing - District - Georgia (United States), Page 28

    28

  • Invitation to Bid (Itb) Bid Form - Installation, Repair and Maintenance of Fencing - District - Georgia (United States), Page 29

    29

  • Invitation to Bid (Itb) Bid Form - Installation, Repair and Maintenance of Fencing - District - Georgia (United States), Page 30

    30

  • Invitation to Bid (Itb) Bid Form - Installation, Repair and Maintenance of Fencing - District - Georgia (United States), Page 31

    31

  • Invitation to Bid (Itb) Bid Form - Installation, Repair and Maintenance of Fencing - District - Georgia (United States), Page 32

    32

  • Invitation to Bid (Itb) Bid Form - Installation, Repair and Maintenance of Fencing - District - Georgia (United States), Page 33

    33

  • Invitation to Bid (Itb) Bid Form - Installation, Repair and Maintenance of Fencing - District - Georgia (United States), Page 34

    34

  • Invitation to Bid (Itb) Bid Form - Installation, Repair and Maintenance of Fencing - District - Georgia (United States), Page 35

    35

  • Invitation to Bid (Itb) Bid Form - Installation, Repair and Maintenance of Fencing - District - Georgia (United States), Page 36

    36

  • Invitation to Bid (Itb) Bid Form - Installation, Repair and Maintenance of Fencing - District - Georgia (United States), Page 37

    37

  • Invitation to Bid (Itb) Bid Form - Installation, Repair and Maintenance of Fencing - District - Georgia (United States), Page 38

    38

  • Invitation to Bid (Itb) Bid Form - Installation, Repair and Maintenance of Fencing - District - Georgia (United States), Page 39

    39

  • Invitation to Bid (Itb) Bid Form - Installation, Repair and Maintenance of Fencing - District - Georgia (United States), Page 40

    40

  • Invitation to Bid (Itb) Bid Form - Installation, Repair and Maintenance of Fencing - District - Georgia (United States), Page 41

    41

  • Invitation to Bid (Itb) Bid Form - Installation, Repair and Maintenance of Fencing - District - Georgia (United States), Page 42

    42

  • Invitation to Bid (Itb) Bid Form - Installation, Repair and Maintenance of Fencing - District - Georgia (United States), Page 1
  • Invitation to Bid (Itb) Bid Form - Installation, Repair and Maintenance of Fencing - District - Georgia (United States), Page 2
  • Invitation to Bid (Itb) Bid Form - Installation, Repair and Maintenance of Fencing - District - Georgia (United States), Page 3
  • Invitation to Bid (Itb) Bid Form - Installation, Repair and Maintenance of Fencing - District - Georgia (United States), Page 4
  • Invitation to Bid (Itb) Bid Form - Installation, Repair and Maintenance of Fencing - District - Georgia (United States), Page 5
  • Invitation to Bid (Itb) Bid Form - Installation, Repair and Maintenance of Fencing - District - Georgia (United States), Page 6
  • Invitation to Bid (Itb) Bid Form - Installation, Repair and Maintenance of Fencing - District - Georgia (United States), Page 7
  • Invitation to Bid (Itb) Bid Form - Installation, Repair and Maintenance of Fencing - District - Georgia (United States), Page 8
  • Invitation to Bid (Itb) Bid Form - Installation, Repair and Maintenance of Fencing - District - Georgia (United States), Page 9
  • Invitation to Bid (Itb) Bid Form - Installation, Repair and Maintenance of Fencing - District - Georgia (United States), Page 10
  • Invitation to Bid (Itb) Bid Form - Installation, Repair and Maintenance of Fencing - District - Georgia (United States), Page 11
  • Invitation to Bid (Itb) Bid Form - Installation, Repair and Maintenance of Fencing - District - Georgia (United States), Page 12
  • Invitation to Bid (Itb) Bid Form - Installation, Repair and Maintenance of Fencing - District - Georgia (United States), Page 13
  • Invitation to Bid (Itb) Bid Form - Installation, Repair and Maintenance of Fencing - District - Georgia (United States), Page 14
  • Invitation to Bid (Itb) Bid Form - Installation, Repair and Maintenance of Fencing - District - Georgia (United States), Page 15
  • Invitation to Bid (Itb) Bid Form - Installation, Repair and Maintenance of Fencing - District - Georgia (United States), Page 16
  • Invitation to Bid (Itb) Bid Form - Installation, Repair and Maintenance of Fencing - District - Georgia (United States), Page 17
  • Invitation to Bid (Itb) Bid Form - Installation, Repair and Maintenance of Fencing - District - Georgia (United States), Page 18
  • Invitation to Bid (Itb) Bid Form - Installation, Repair and Maintenance of Fencing - District - Georgia (United States), Page 19
  • Invitation to Bid (Itb) Bid Form - Installation, Repair and Maintenance of Fencing - District - Georgia (United States), Page 20
  • Invitation to Bid (Itb) Bid Form - Installation, Repair and Maintenance of Fencing - District - Georgia (United States), Page 21
  • Invitation to Bid (Itb) Bid Form - Installation, Repair and Maintenance of Fencing - District - Georgia (United States), Page 22
  • Invitation to Bid (Itb) Bid Form - Installation, Repair and Maintenance of Fencing - District - Georgia (United States), Page 23
  • Invitation to Bid (Itb) Bid Form - Installation, Repair and Maintenance of Fencing - District - Georgia (United States), Page 24
  • Invitation to Bid (Itb) Bid Form - Installation, Repair and Maintenance of Fencing - District - Georgia (United States), Page 25
  • Invitation to Bid (Itb) Bid Form - Installation, Repair and Maintenance of Fencing - District - Georgia (United States), Page 26
  • Invitation to Bid (Itb) Bid Form - Installation, Repair and Maintenance of Fencing - District - Georgia (United States), Page 27
  • Invitation to Bid (Itb) Bid Form - Installation, Repair and Maintenance of Fencing - District - Georgia (United States), Page 28
  • Invitation to Bid (Itb) Bid Form - Installation, Repair and Maintenance of Fencing - District - Georgia (United States), Page 29
  • Invitation to Bid (Itb) Bid Form - Installation, Repair and Maintenance of Fencing - District - Georgia (United States), Page 30
  • Invitation to Bid (Itb) Bid Form - Installation, Repair and Maintenance of Fencing - District - Georgia (United States), Page 31
  • Invitation to Bid (Itb) Bid Form - Installation, Repair and Maintenance of Fencing - District - Georgia (United States), Page 32
  • Invitation to Bid (Itb) Bid Form - Installation, Repair and Maintenance of Fencing - District - Georgia (United States), Page 33
  • Invitation to Bid (Itb) Bid Form - Installation, Repair and Maintenance of Fencing - District - Georgia (United States), Page 34
  • Invitation to Bid (Itb) Bid Form - Installation, Repair and Maintenance of Fencing - District - Georgia (United States), Page 35
  • Invitation to Bid (Itb) Bid Form - Installation, Repair and Maintenance of Fencing - District - Georgia (United States), Page 36
  • Invitation to Bid (Itb) Bid Form - Installation, Repair and Maintenance of Fencing - District - Georgia (United States), Page 37
  • Invitation to Bid (Itb) Bid Form - Installation, Repair and Maintenance of Fencing - District - Georgia (United States), Page 38
  • Invitation to Bid (Itb) Bid Form - Installation, Repair and Maintenance of Fencing - District - Georgia (United States), Page 39
  • Invitation to Bid (Itb) Bid Form - Installation, Repair and Maintenance of Fencing - District - Georgia (United States), Page 40
  • Invitation to Bid (Itb) Bid Form - Installation, Repair and Maintenance of Fencing - District - Georgia (United States), Page 41
  • Invitation to Bid (Itb) Bid Form - Installation, Repair and Maintenance of Fencing - District - Georgia (United States), Page 42
Prev 1 2 3 4 5 ... 42 Next
ADVERTISEMENT