Form DTE1 Complaint Against the Valuation of Real Property - Butler County, Ohio

Notification Icon This version of the form is not currently in use and is provided for reference only. Download this version of Form DTE1 for the current year.

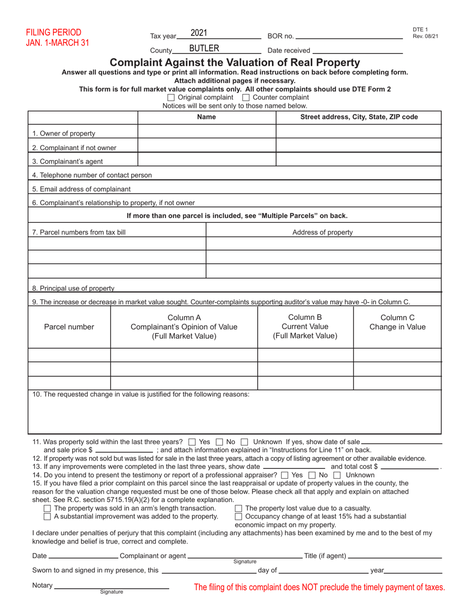
Form DTE1 Complaint Against the Valuation of Real Property - Butler County, Ohio

What Is Form DTE1?

This is a legal form that was released by the County Auditor's Office - Butler County, Ohio - a government authority operating within Ohio. The form may be used strictly within Butler County. As of today, no separate filing guidelines for the form are provided by the issuing department.

FAQ

Q: What is Form DTE1?
A: Form DTE1 is a complaint form used to dispute the valuation of real property.

Q: When should I use Form DTE1?
A: You should use Form DTE1 when you disagree with the valuation of your real property in Butler County, Ohio.

Q: What information is required on Form DTE1?
A: Form DTE1 requires you to provide information about the property, reasons for the complaint, and supporting evidence.

Q: What should I do after completing Form DTE1?
A: After completing Form DTE1, you should submit it to the Butler County Board of Revision along with any required fees.

Q: What happens after I submit Form DTE1?
A: After you submit Form DTE1, the Butler County Board of Revision will review your complaint and make a determination on the valuation of your property.

ADVERTISEMENT

Form Details:

  • Released on August 1, 2021;
  • The latest edition provided by the County Auditor's Office - Butler County, Ohio;
  • Easy to use and ready to print;
  • Quick to customize;
  • Compatible with most PDF-viewing applications;
  • Fill out the form in our online filing application.

Download a fillable version of Form DTE1 by clicking the link below or browse more documents and templates provided by the County Auditor's Office - Butler County, Ohio.

Download Form DTE1 Complaint Against the Valuation of Real Property - Butler County, Ohio

4.7 of 5 (23 votes)
  • Form DTE1 Complaint Against the Valuation of Real Property - Butler County, Ohio

    1

  • Form DTE1 Complaint Against the Valuation of Real Property - Butler County, Ohio, Page 2

    2

  • Form DTE1 Complaint Against the Valuation of Real Property - Butler County, Ohio, Page 3

    3

  • Form DTE1 Complaint Against the Valuation of Real Property - Butler County, Ohio, Page 4

    4

  • Form DTE1 Complaint Against the Valuation of Real Property - Butler County, Ohio, Page 5

    5

  • Form DTE1 Complaint Against the Valuation of Real Property - Butler County, Ohio, Page 6

    6

  • Form DTE1 Complaint Against the Valuation of Real Property - Butler County, Ohio, Page 1
  • Form DTE1 Complaint Against the Valuation of Real Property - Butler County, Ohio, Page 2
  • Form DTE1 Complaint Against the Valuation of Real Property - Butler County, Ohio, Page 3
  • Form DTE1 Complaint Against the Valuation of Real Property - Butler County, Ohio, Page 4
  • Form DTE1 Complaint Against the Valuation of Real Property - Butler County, Ohio, Page 5
  • Form DTE1 Complaint Against the Valuation of Real Property - Butler County, Ohio, Page 6
Prev 1 2 3 4 5 6 Next
ADVERTISEMENT

Related Documents