GSA Form 308 Notice of Inspection

GSA Form 308 Notice of Inspection

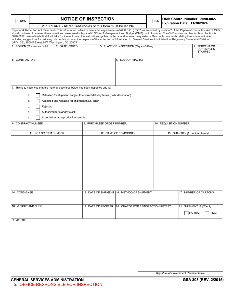
What Is GSA Form 308?

This is a legal form that was released by the U.S. General Services Administration on February 1, 2015 and used country-wide. As of today, no separate filing guidelines for the form are provided by the issuing department.

FAQ

Q: What is GSA Form 308?
A: GSA Form 308 is a Notice of Inspection.

Q: When is GSA Form 308 used?
A: GSA Form 308 is used when a government agency plans to inspect a property.

Q: Who uses GSA Form 308?
A: Government agencies use GSA Form 308.

Q: What is the purpose of GSA Form 308?
A: The purpose of GSA Form 308 is to notify the property owner or occupant about an upcoming inspection.

Q: Is GSA Form 308 mandatory?
A: Yes, GSA Form 308 is mandatory when a government agency plans to inspect a property.

ADVERTISEMENT

Form Details:

  • Released on February 1, 2015;
  • The latest available edition released by the U.S. General Services Administration;
  • Easy to use and ready to print;
  • Yours to fill out and keep for your records;
  • Compatible with most PDF-viewing applications;
  • Fill out the form in our online filing application.

Download a fillable version of GSA Form 308 by clicking the link below or browse more documents and templates provided by the U.S. General Services Administration.

Download GSA Form 308 Notice of Inspection

4.3 of 5 (10 votes)
  • GSA Form 308 Notice of Inspection

    1

  • GSA Form 308 Notice of Inspection, Page 2

    2

  • GSA Form 308 Notice of Inspection, Page 3

    3

  • GSA Form 308 Notice of Inspection, Page 4

    4

  • GSA Form 308 Notice of Inspection, Page 5

    5

  • GSA Form 308 Notice of Inspection, Page 6

    6

  • GSA Form 308 Notice of Inspection, Page 7

    7

  • GSA Form 308 Notice of Inspection, Page 1
  • GSA Form 308 Notice of Inspection, Page 2
  • GSA Form 308 Notice of Inspection, Page 3
  • GSA Form 308 Notice of Inspection, Page 4
  • GSA Form 308 Notice of Inspection, Page 5
  • GSA Form 308 Notice of Inspection, Page 6
  • GSA Form 308 Notice of Inspection, Page 7
Prev 1 2 3 4 5 ... 7 Next
ADVERTISEMENT