State Form 56554 Underground Storage Tank Systems Closure Report - Indiana

Notification Icon This version of the form is not currently in use and is provided for reference only. Download this version of State Form 56554 for the current year.

State Form 56554 Underground Storage Tank Systems Closure Report - Indiana

What Is State Form 56554?

This is a legal form that was released by the Indiana Department of Environmental Management - a government authority operating within Indiana. Check the official instructions before completing and submitting the form.

FAQ

Q: What is the purpose of Form 56554?
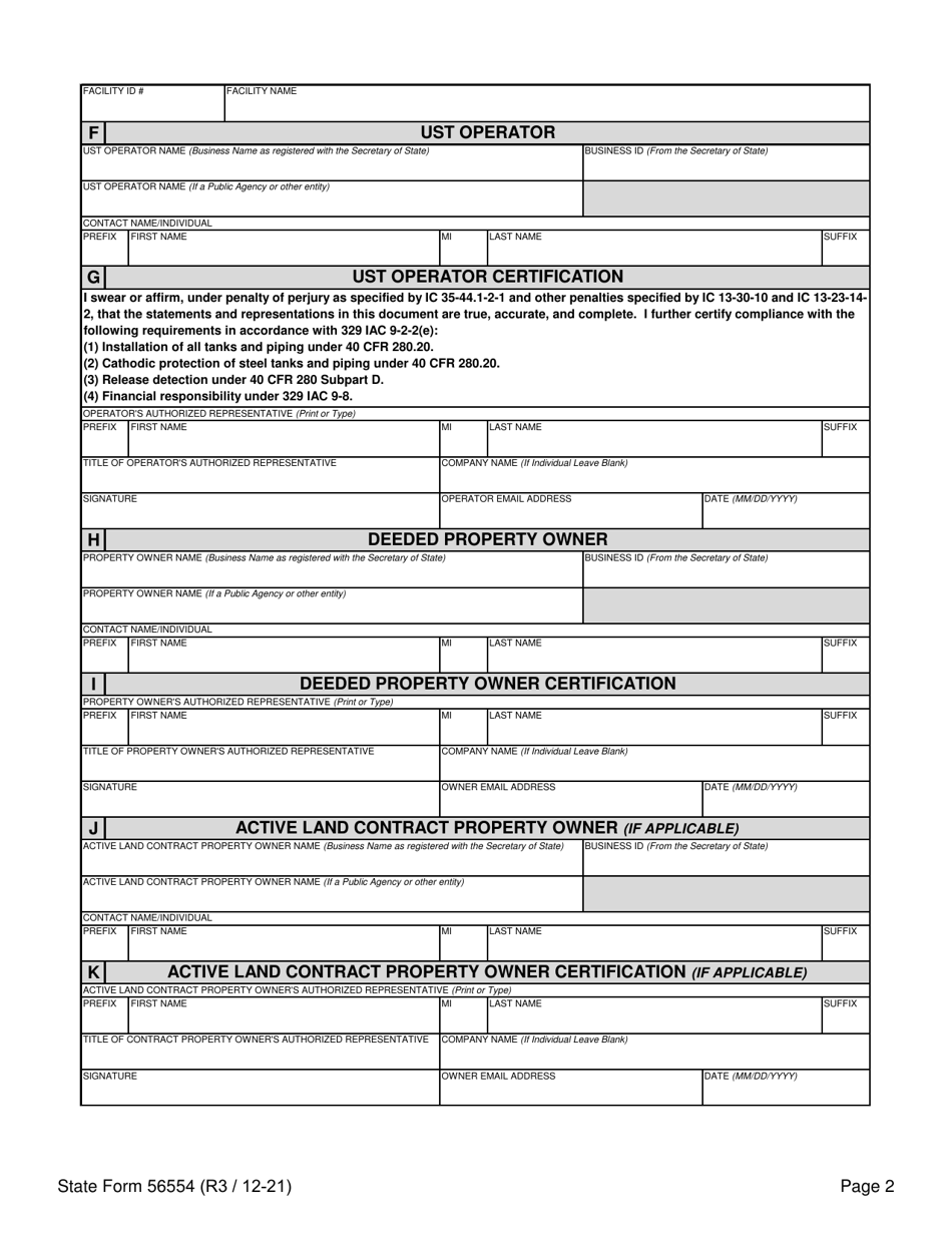
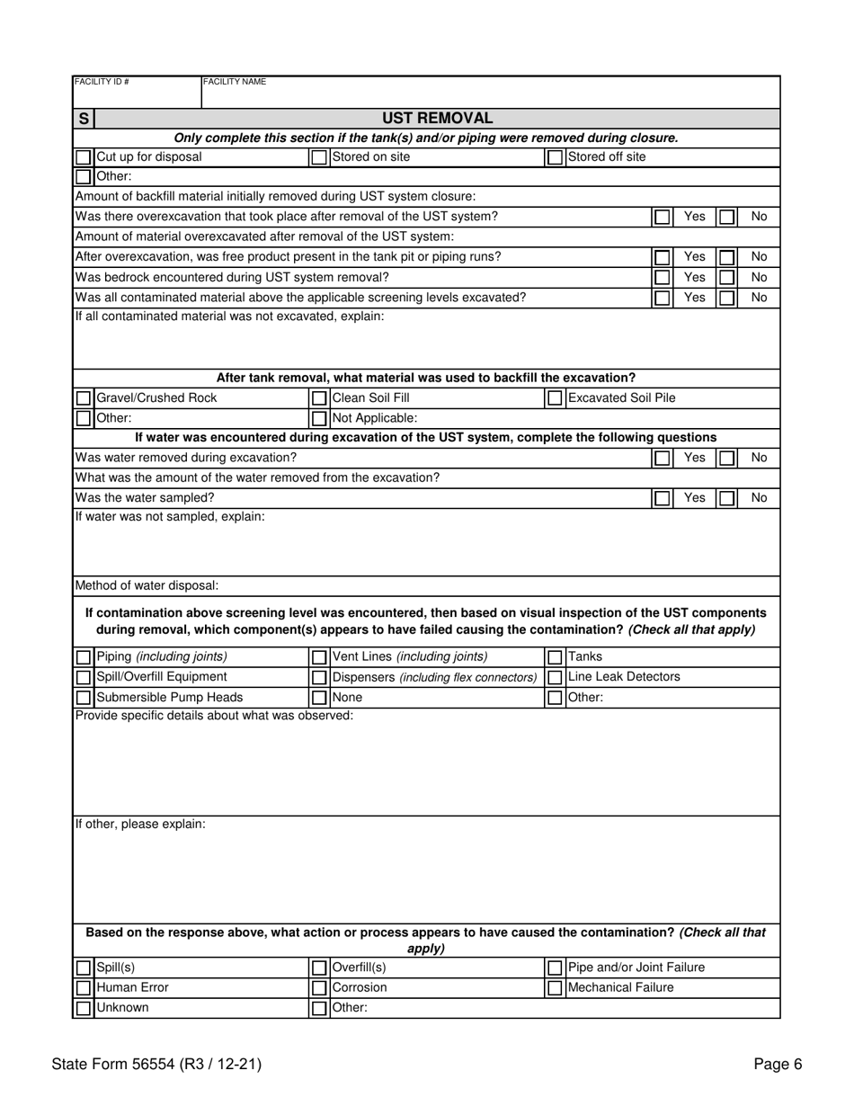
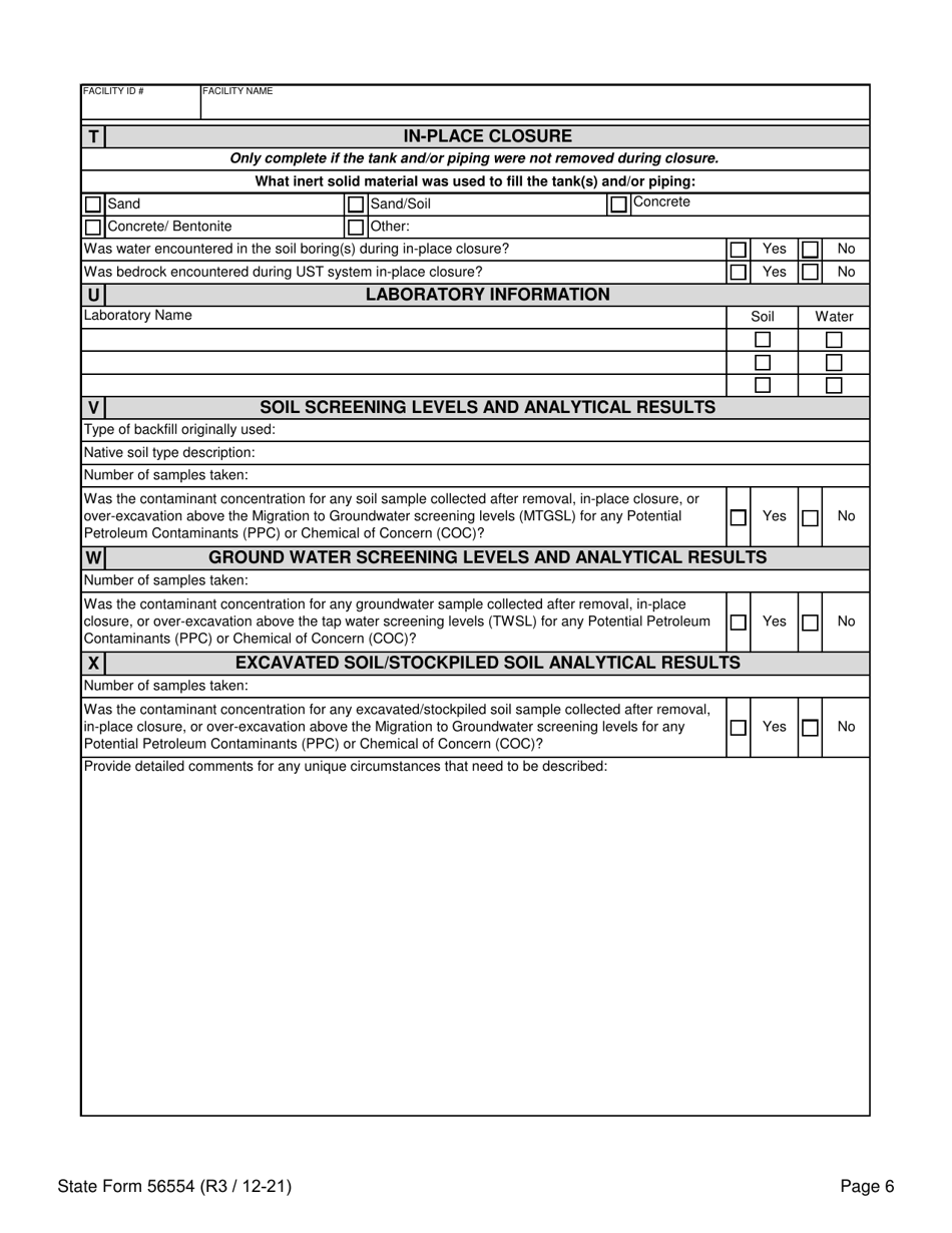
A: Form 56554 is used for reporting the closure of underground storage tank systems in Indiana.

Q: Who needs to fill out Form 56554?
A: Anyone who is responsible for closing an underground storage tank system in Indiana must fill out Form 56554.

Q: What information is required on Form 56554?
A: Form 56554 requires information about the underground storage tank system, closure activities, and any contamination that was detected.

Q: Is there a deadline for submitting Form 56554?
A: Yes, Form 56554 must be submitted within 30 days of completing the closure activities.

Q: Are there any fees associated with Form 56554?
A: Yes, there is a fee of $100 for submitting Form 56554.

Q: What are the consequences of not filling out Form 56554?
A: Failure to fill out Form 56554 can result in penalties and fines imposed by the Indiana Department of Environmental Management.

ADVERTISEMENT

Form Details:

  • Released on December 1, 2021;
  • The latest edition provided by the Indiana Department of Environmental Management;
  • Easy to use and ready to print;
  • Quick to customize;
  • Compatible with most PDF-viewing applications;
  • Fill out the form in our online filing application.

Download a fillable version of State Form 56554 by clicking the link below or browse more documents and templates provided by the Indiana Department of Environmental Management.

Download State Form 56554 Underground Storage Tank Systems Closure Report - Indiana

4.8 of 5 (14 votes)
  • State Form 56554 Underground Storage Tank Systems Closure Report - Indiana

    1

  • State Form 56554 Underground Storage Tank Systems Closure Report - Indiana, Page 2

    2

  • State Form 56554 Underground Storage Tank Systems Closure Report - Indiana, Page 3

    3

  • State Form 56554 Underground Storage Tank Systems Closure Report - Indiana, Page 4

    4

  • State Form 56554 Underground Storage Tank Systems Closure Report - Indiana, Page 5

    5

  • State Form 56554 Underground Storage Tank Systems Closure Report - Indiana, Page 6

    6

  • State Form 56554 Underground Storage Tank Systems Closure Report - Indiana, Page 7

    7

  • State Form 56554 Underground Storage Tank Systems Closure Report - Indiana, Page 8

    8

  • State Form 56554 Underground Storage Tank Systems Closure Report - Indiana, Page 9

    9

  • State Form 56554 Underground Storage Tank Systems Closure Report - Indiana, Page 10

    10

  • State Form 56554 Underground Storage Tank Systems Closure Report - Indiana, Page 1
  • State Form 56554 Underground Storage Tank Systems Closure Report - Indiana, Page 2
  • State Form 56554 Underground Storage Tank Systems Closure Report - Indiana, Page 3
  • State Form 56554 Underground Storage Tank Systems Closure Report - Indiana, Page 4
  • State Form 56554 Underground Storage Tank Systems Closure Report - Indiana, Page 5
  • State Form 56554 Underground Storage Tank Systems Closure Report - Indiana, Page 6
  • State Form 56554 Underground Storage Tank Systems Closure Report - Indiana, Page 7
  • State Form 56554 Underground Storage Tank Systems Closure Report - Indiana, Page 8
  • State Form 56554 Underground Storage Tank Systems Closure Report - Indiana, Page 9
  • State Form 56554 Underground Storage Tank Systems Closure Report - Indiana, Page 10
Prev 1 2 3 4 5 ... 10 Next
ADVERTISEMENT