Certificate of Participation in the New Home Warranty Security Fund - New Jersey

Certificate of Participation in the New Home Warranty Security Fund - New Jersey

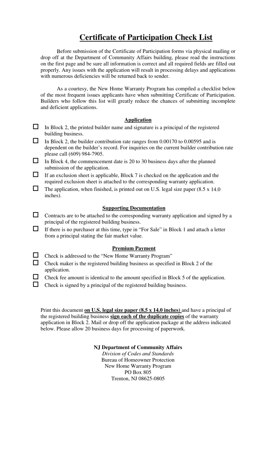
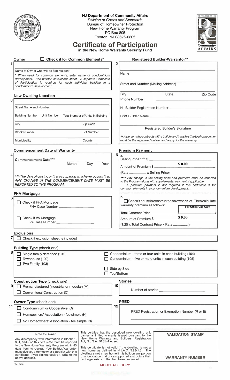
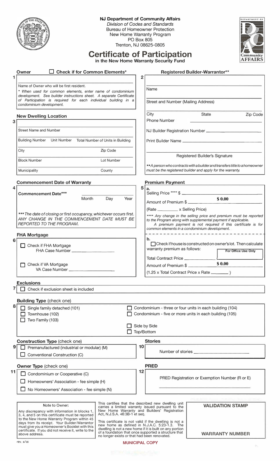
Certificate of Participation in the New Home Warranty Security Fund is a legal document that was released by the New Jersey Department of Community Affairs - Division of Codes and Standards - a government authority operating within New Jersey.

FAQ

Q: What is the New Home Warranty Security Fund?
A: The New Home Warranty Security Fund is a program in New Jersey that provides protection to homeowners in case they experience defects or issues with their newly constructed homes.

Q: What is a Certificate of Participation?
A: A Certificate of Participation is a document that indicates an individual's participation in the New Home Warranty Security Fund.

Q: How do I obtain a Certificate of Participation?
A: To obtain a Certificate of Participation, homeowners can contact the New Home Warranty Security Fund or the organization responsible for administering the program in New Jersey.

Q: What does the Certificate of Participation mean?
A: The Certificate of Participation signifies that the homeowner is eligible to receive benefits and coverage from the New Home Warranty Security Fund.

Q: What benefits does the New Home Warranty Security Fund provide?
A: The New Home Warranty Security Fund provides coverage for specific defects or issues that may arise in a newly constructed home, such as structural defects or water penetration.

ADVERTISEMENT

Form Details:

  • Released on June 1, 2018;
  • The latest edition currently provided by the New Jersey Department of Community Affairs - Division of Codes and Standards;
  • Ready to use and print;
  • Easy to customize;
  • Compatible with most PDF-viewing applications;
  • Fill out the form in our online filing application.

Download a fillable version of the form by clicking the link below or browse more documents and templates provided by the New Jersey Department of Community Affairs - Division of Codes and Standards.

Download Certificate of Participation in the New Home Warranty Security Fund - New Jersey

4.8 of 5 (26 votes)
  • Certificate of Participation in the New Home Warranty Security Fund - New Jersey

    1

  • Certificate of Participation in the New Home Warranty Security Fund - New Jersey, Page 2

    2

  • Certificate of Participation in the New Home Warranty Security Fund - New Jersey, Page 3

    3

  • Certificate of Participation in the New Home Warranty Security Fund - New Jersey, Page 4

    4

  • Certificate of Participation in the New Home Warranty Security Fund - New Jersey, Page 5

    5

  • Certificate of Participation in the New Home Warranty Security Fund - New Jersey, Page 6

    6

  • Certificate of Participation in the New Home Warranty Security Fund - New Jersey, Page 7

    7

  • Certificate of Participation in the New Home Warranty Security Fund - New Jersey, Page 8

    8

  • Certificate of Participation in the New Home Warranty Security Fund - New Jersey, Page 1
  • Certificate of Participation in the New Home Warranty Security Fund - New Jersey, Page 2
  • Certificate of Participation in the New Home Warranty Security Fund - New Jersey, Page 3
  • Certificate of Participation in the New Home Warranty Security Fund - New Jersey, Page 4
  • Certificate of Participation in the New Home Warranty Security Fund - New Jersey, Page 5
  • Certificate of Participation in the New Home Warranty Security Fund - New Jersey, Page 6
  • Certificate of Participation in the New Home Warranty Security Fund - New Jersey, Page 7
  • Certificate of Participation in the New Home Warranty Security Fund - New Jersey, Page 8
Prev 1 2 3 4 5 ... 8 Next
ADVERTISEMENT