Form MR-21 Application for a Special Permit for Removal of Abandoned Coal Refuse Pile - West Virginia

Form MR-21 Application for a Special Permit for Removal of Abandoned Coal Refuse Pile - West Virginia

What Is Form MR-21?

This is a legal form that was released by the West Virginia Department of Environmental Protection - a government authority operating within West Virginia. As of today, no separate filing guidelines for the form are provided by the issuing department.

FAQ

Q: What is Form MR-21?
A: Form MR-21 is an application for a special permit for the removal of an abandoned coal refuse pile in West Virginia.

Q: What is a special permit for the removal of an abandoned coal refuse pile?
A: A special permit is a permission granted for the removal of a coal refuse pile that has been abandoned.

Q: Who needs to fill out Form MR-21?
A: Anyone who wants to apply for a special permit to remove an abandoned coal refuse pile in West Virginia needs to fill out Form MR-21.

Q: What is the purpose of removing an abandoned coal refuse pile?
A: Removing an abandoned coal refuse pile helps in cleaning up the environment and preventing pollution.

Q: Are there any fees associated with Form MR-21?
A: Yes, there are fees associated with Form MR-21. The amount varies depending on the size of the coal refuse pile and the type of permit.

ADVERTISEMENT

Form Details:

  • Released on April 1, 2023;
  • The latest edition provided by the West Virginia Department of Environmental Protection;
  • Easy to use and ready to print;
  • Quick to customize;
  • Compatible with most PDF-viewing applications;
  • Fill out the form in our online filing application.

Download a fillable version of Form MR-21 by clicking the link below or browse more documents and templates provided by the West Virginia Department of Environmental Protection.

Download Form MR-21 Application for a Special Permit for Removal of Abandoned Coal Refuse Pile - West Virginia

4.4 of 5 (19 votes)
  • Form MR-21 Application for a Special Permit for Removal of Abandoned Coal Refuse Pile - West Virginia

    1

  • Form MR-21 Application for a Special Permit for Removal of Abandoned Coal Refuse Pile - West Virginia, Page 2

    2

  • Form MR-21 Application for a Special Permit for Removal of Abandoned Coal Refuse Pile - West Virginia, Page 3

    3

  • Form MR-21 Application for a Special Permit for Removal of Abandoned Coal Refuse Pile - West Virginia, Page 4

    4

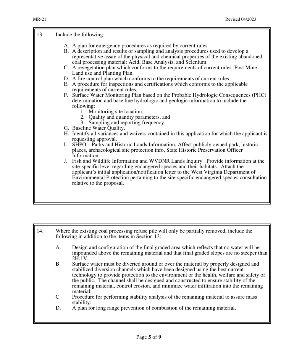
  • Form MR-21 Application for a Special Permit for Removal of Abandoned Coal Refuse Pile - West Virginia, Page 5

    5

  • Form MR-21 Application for a Special Permit for Removal of Abandoned Coal Refuse Pile - West Virginia, Page 6

    6

  • Form MR-21 Application for a Special Permit for Removal of Abandoned Coal Refuse Pile - West Virginia, Page 7

    7

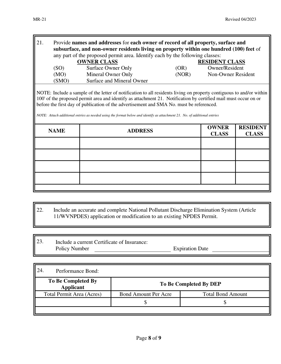
  • Form MR-21 Application for a Special Permit for Removal of Abandoned Coal Refuse Pile - West Virginia, Page 8

    8

  • Form MR-21 Application for a Special Permit for Removal of Abandoned Coal Refuse Pile - West Virginia, Page 9

    9

  • Form MR-21 Application for a Special Permit for Removal of Abandoned Coal Refuse Pile - West Virginia, Page 1
  • Form MR-21 Application for a Special Permit for Removal of Abandoned Coal Refuse Pile - West Virginia, Page 2
  • Form MR-21 Application for a Special Permit for Removal of Abandoned Coal Refuse Pile - West Virginia, Page 3
  • Form MR-21 Application for a Special Permit for Removal of Abandoned Coal Refuse Pile - West Virginia, Page 4
  • Form MR-21 Application for a Special Permit for Removal of Abandoned Coal Refuse Pile - West Virginia, Page 5
  • Form MR-21 Application for a Special Permit for Removal of Abandoned Coal Refuse Pile - West Virginia, Page 6
  • Form MR-21 Application for a Special Permit for Removal of Abandoned Coal Refuse Pile - West Virginia, Page 7
  • Form MR-21 Application for a Special Permit for Removal of Abandoned Coal Refuse Pile - West Virginia, Page 8
  • Form MR-21 Application for a Special Permit for Removal of Abandoned Coal Refuse Pile - West Virginia, Page 9
Prev 1 2 3 4 5 ... 9 Next
ADVERTISEMENT