City of Toronto Act Complaint - Vacant Unit Rebate - Ontario, Canada

City of Toronto Act Complaint - Vacant Unit Rebate - Ontario, Canada

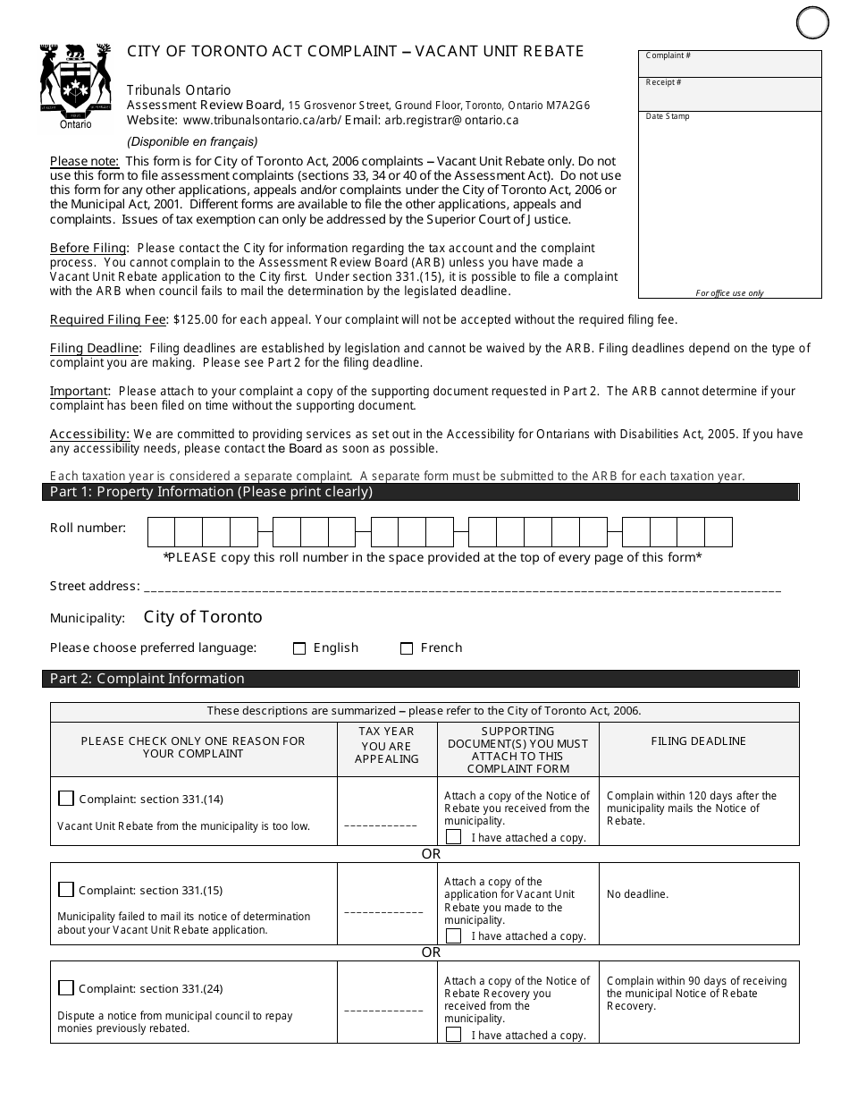
The City of Toronto Act Complaint - Vacant Unit Rebate is a policy in Ontario, Canada aimed at addressing complaints related to the rebate given on property taxes for vacant units in the City of Toronto. If you have a complaint regarding the vacant unit rebate, you can bring it forward using this act.

The City of Toronto Act complaint regarding the vacant unit rebate in Ontario, Canada can be filed by any individual or organization affected by the issue.

FAQ

Q: What is the City of Toronto Act Complaint?
A: The City of Toronto Act Complaint is a process for individuals and businesses to address concerns or complaints related to various issues in Toronto, Ontario.

Q: What is the Vacant Unit Rebate?
A: The Vacant Unit Rebate is a program offered by the City of Toronto that provides property tax rebates to property owners who have vacant commercial or industrial units.

Q: How does the Vacant Unit Rebate work?
A: Property owners can apply for the Vacant Unit Rebate by submitting an application to the City of Toronto. If approved, they will receive a rebate on a portion of the property taxes paid for the vacant unit.

Q: Who is eligible for the Vacant Unit Rebate?
A: Eligibility for the Vacant Unit Rebate is determined by the City of Toronto. Generally, property owners who have vacant commercial or industrial units may be eligible to apply for the rebate.

Q: How can I file a complaint regarding the Vacant Unit Rebate?
A: If you have a complaint regarding the Vacant Unit Rebate, you can contact the City of Toronto and provide details of your concern or issue.

Q: Are there any specific requirements or criteria for the Vacant Unit Rebate?
A: Yes, there are specific requirements and criteria for the Vacant Unit Rebate. These may include maintaining the property in good condition, providing proof of vacancy, and complying with all applicable regulations.

ADVERTISEMENT

Download City of Toronto Act Complaint - Vacant Unit Rebate - Ontario, Canada

4.4 of 5 (30 votes)
  • City of Toronto Act Complaint - Vacant Unit Rebate - Ontario, Canada

    1

  • City of Toronto Act Complaint - Vacant Unit Rebate - Ontario, Canada, Page 2

    2

  • City of Toronto Act Complaint - Vacant Unit Rebate - Ontario, Canada, Page 3

    3

  • City of Toronto Act Complaint - Vacant Unit Rebate - Ontario, Canada, Page 4

    4

  • City of Toronto Act Complaint - Vacant Unit Rebate - Ontario, Canada, Page 5

    5

  • City of Toronto Act Complaint - Vacant Unit Rebate - Ontario, Canada, Page 6

    6

  • City of Toronto Act Complaint - Vacant Unit Rebate - Ontario, Canada, Page 1
  • City of Toronto Act Complaint - Vacant Unit Rebate - Ontario, Canada, Page 2
  • City of Toronto Act Complaint - Vacant Unit Rebate - Ontario, Canada, Page 3
  • City of Toronto Act Complaint - Vacant Unit Rebate - Ontario, Canada, Page 4
  • City of Toronto Act Complaint - Vacant Unit Rebate - Ontario, Canada, Page 5
  • City of Toronto Act Complaint - Vacant Unit Rebate - Ontario, Canada, Page 6
Prev 1 2 3 4 5 6 Next
ADVERTISEMENT