Site Plan Approval Application Form - City of Guelph, Ontario, Canada

Site Plan Approval Application Form - City of Guelph, Ontario, Canada

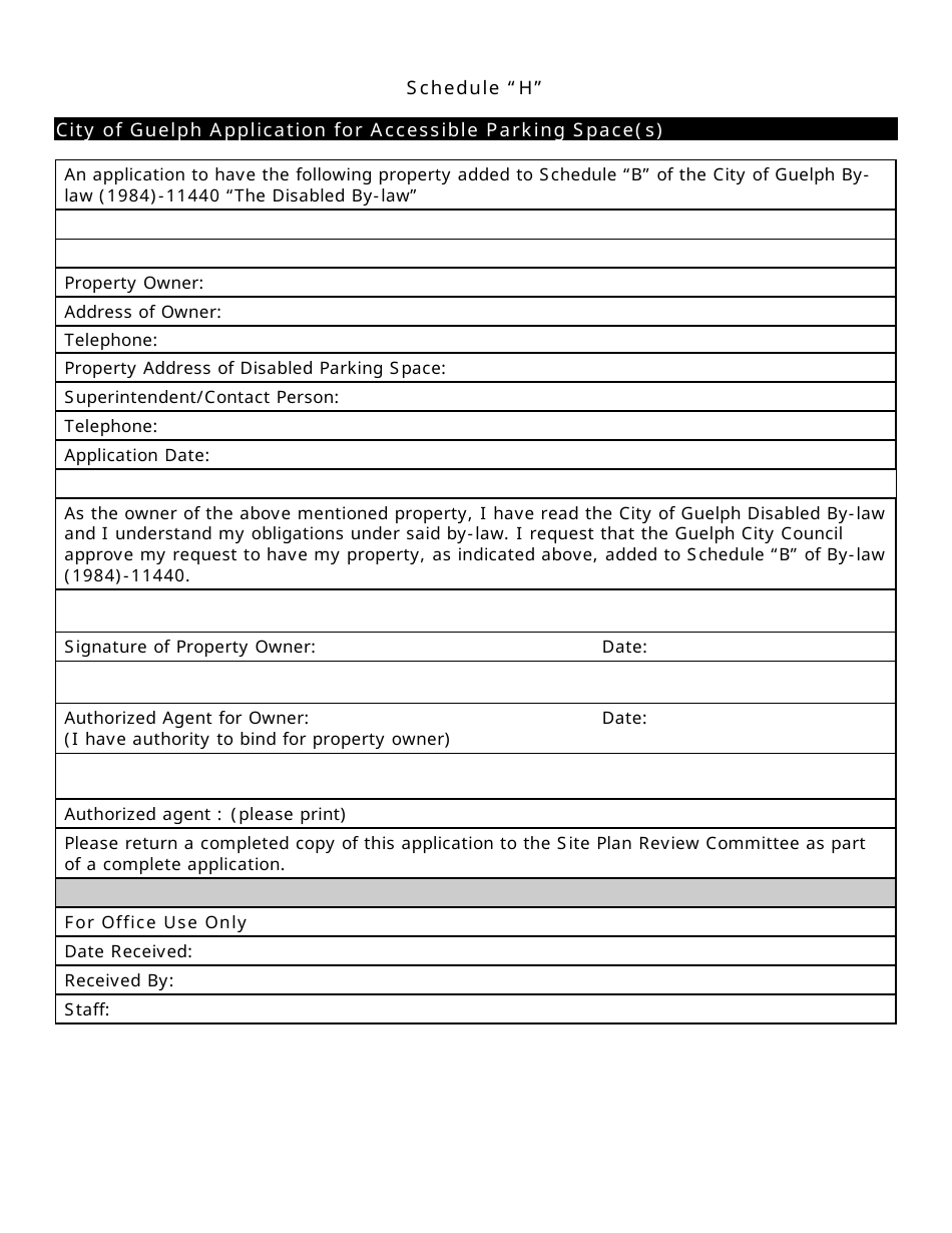
This Ontario-specific " Site Plan Approval Application Form " is a document released by the Ontario Ministry of Municipal Affairs and Housing .

Download the fillable PDF by clicking the link below and use it according to the applicable legal guidelines.

ADVERTISEMENT

Download Site Plan Approval Application Form - City of Guelph, Ontario, Canada

4.6 of 5 (28 votes)
  • Site Plan Approval Application Form - City of Guelph, Ontario, Canada

    1

  • Site Plan Approval Application Form - City of Guelph, Ontario, Canada, Page 2

    2

  • Site Plan Approval Application Form - City of Guelph, Ontario, Canada, Page 3

    3

  • Site Plan Approval Application Form - City of Guelph, Ontario, Canada, Page 4

    4

  • Site Plan Approval Application Form - City of Guelph, Ontario, Canada, Page 1
  • Site Plan Approval Application Form - City of Guelph, Ontario, Canada, Page 2
  • Site Plan Approval Application Form - City of Guelph, Ontario, Canada, Page 3
  • Site Plan Approval Application Form - City of Guelph, Ontario, Canada, Page 4
Prev 1 2 3 4 Next
ADVERTISEMENT

Related Documents