Form F2272 Approved Inspection Station Application - Approved Inspection Station Scheme - Queensland, Australia

Form F2272 Approved Inspection Station Application - Approved Inspection Station Scheme - Queensland, Australia

Unfortunately, as the USA and Canada document knowledge system, we do not have information on specific forms and applications from other countries such as Australia. We suggest reaching out to the appropriate government authority or agency in Queensland, Australia for more information about Form F2272 and its purpose.

In Queensland, Australia, the Approved Inspection Station Application (Form F2272) is filed by the operator or owner of the vehicle inspection station seeking approval.

Form F2272 Approved Inspection Station Application - Approved Inspection Station Scheme - Queensland, Australia - Frequently Asked Questions (FAQ)

Q: What is Form F2272?
A:
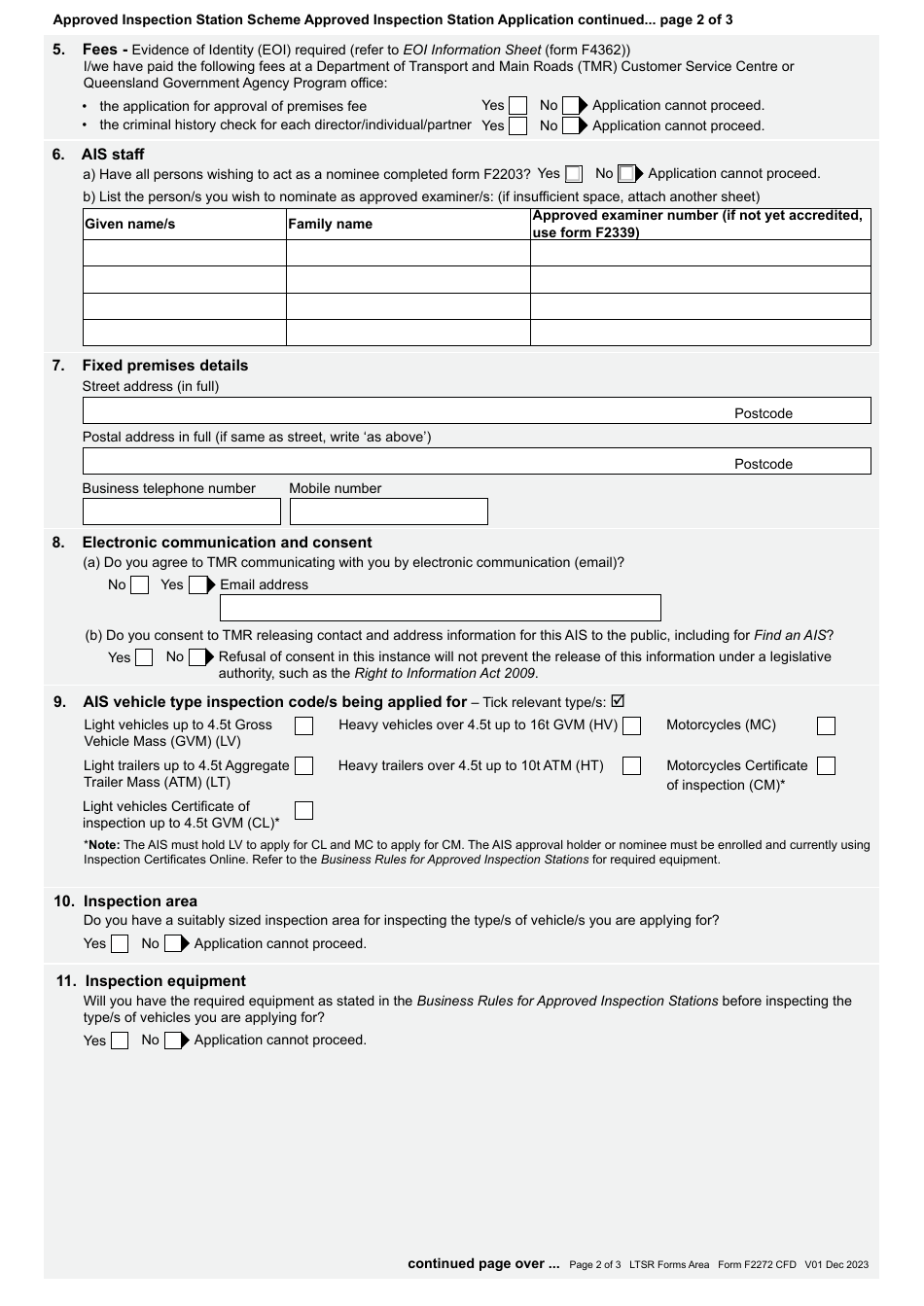
Form F2272 is an application for an Approved Inspection Station (AIS) in Queensland, Australia.

Q: What is the Approved Inspection Station Scheme?
A:
The Approved Inspection Station Scheme is a program in Queensland, Australia that regulates and approves inspection stations for vehicles.

Q: How do I apply for an Approved Inspection Station?
A:
To apply for an Approved Inspection Station, you need to fill out Form F2272 and submit it to the appropriate authority in Queensland.

Q: What are the requirements for an Approved Inspection Station?
A:
The requirements for an Approved Inspection Station include having appropriate facilities, equipment, and qualified staff to perform vehicle inspections.

Q: Why would I need an Approved Inspection Station?
A:
You may need an Approved Inspection Station if you want to operate a business that performs vehicle inspections in Queensland, Australia.

Q: How long does it take to get approval for an Approved Inspection Station?
A:
The time it takes to get approval for an Approved Inspection Station can vary, but it generally requires a thorough evaluation of the application and compliance with the scheme's requirements.

ADVERTISEMENT

Other Revisions

Download Form F2272 Approved Inspection Station Application - Approved Inspection Station Scheme - Queensland, Australia

4.4 of 5 (86 votes)
  • Form F2272 Approved Inspection Station Application - Approved Inspection Station Scheme - Queensland, Australia

    1

  • Form F2272 Approved Inspection Station Application - Approved Inspection Station Scheme - Queensland, Australia, Page 2

    2

  • Form F2272 Approved Inspection Station Application - Approved Inspection Station Scheme - Queensland, Australia, Page 3

    3

  • Form F2272 Approved Inspection Station Application - Approved Inspection Station Scheme - Queensland, Australia, Page 1
  • Form F2272 Approved Inspection Station Application - Approved Inspection Station Scheme - Queensland, Australia, Page 2
  • Form F2272 Approved Inspection Station Application - Approved Inspection Station Scheme - Queensland, Australia, Page 3
Prev 1 2 3 Next
ADVERTISEMENT