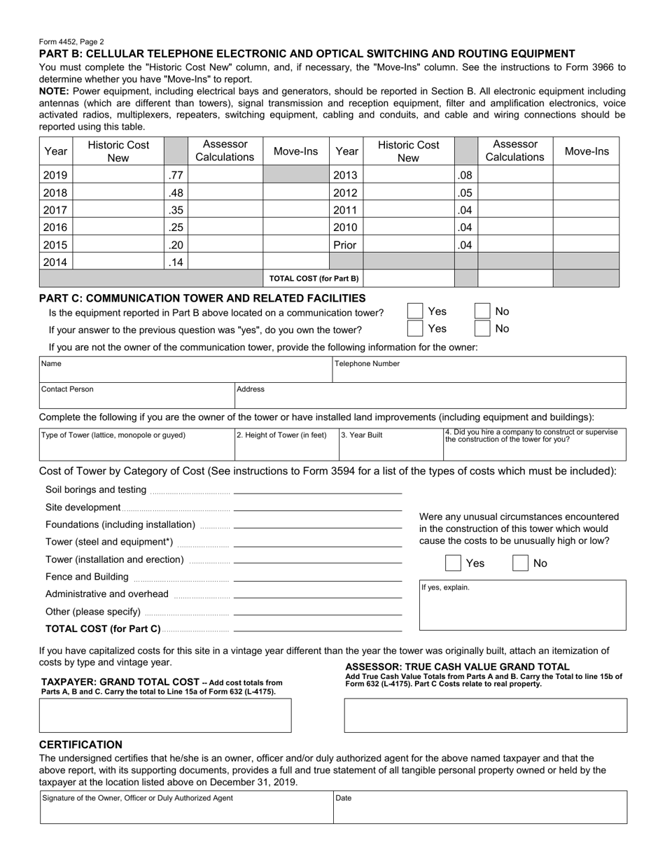
Form 4452 Cellular (Wireless) Site Equipment Personal Property Report - Michigan

Form 4452 Cellular (Wireless) Site Equipment Personal Property Report - Michigan

What Is Form 4452?

This is a legal form that was released by the Michigan Department of Treasury - a government authority operating within Michigan. As of today, no separate filing guidelines for the form are provided by the issuing department.

Form Details:

  • Released on June 1, 2019;
  • The latest edition provided by the Michigan Department of Treasury;
  • Easy to use and ready to print;
  • Quick to customize;
  • Compatible with most PDF-viewing applications;
  • Fill out the form in our online filing application.

Download a fillable version of Form 4452 by clicking the link below or browse more documents and templates provided by the Michigan Department of Treasury.

ADVERTISEMENT

Other Revision

Download Form 4452 Cellular (Wireless) Site Equipment Personal Property Report - Michigan

4.6 of 5 (62 votes)
  • Form 4452 Cellular (Wireless) Site Equipment Personal Property Report - Michigan

    1

  • Form 4452 Cellular (Wireless) Site Equipment Personal Property Report - Michigan, Page 2

    2

  • Form 4452 Cellular (Wireless) Site Equipment Personal Property Report - Michigan, Page 1
  • Form 4452 Cellular (Wireless) Site Equipment Personal Property Report - Michigan, Page 2
Prev 1 2 Next
ADVERTISEMENT