ADEM Form 556 3 Year Containment Sump Integrity Test Report (Low Level Method) - Alabama

ADEM Form 556 3 Year Containment Sump Integrity Test Report (Low Level Method) - Alabama

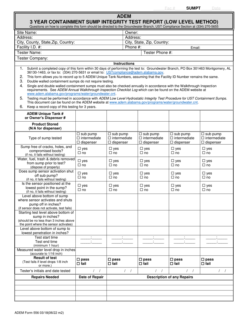
What Is ADEM Form 556?

This is a legal form that was released by the Alabama Department of Environmental Management - a government authority operating within Alabama. As of today, no separate filing guidelines for the form are provided by the issuing department.

Form Details:

  • Released on June 1, 2022;
  • The latest edition provided by the Alabama Department of Environmental Management;
  • Easy to use and ready to print;
  • Quick to customize;
  • Compatible with most PDF-viewing applications;
  • Fill out the form in our online filing application.

Download a printable version of ADEM Form 556 by clicking the link below or browse more documents and templates provided by the Alabama Department of Environmental Management.

ADVERTISEMENT

Other Revision

Download ADEM Form 556 3 Year Containment Sump Integrity Test Report (Low Level Method) - Alabama

4.6 of 5 (26 votes)
  • ADEM Form 556 3 Year Containment Sump Integrity Test Report (Low Level Method) - Alabama

    1

  • ADEM Form 556 3 Year Containment Sump Integrity Test Report (Low Level Method) - Alabama, Page 2

    2

  • ADEM Form 556 3 Year Containment Sump Integrity Test Report (Low Level Method) - Alabama, Page 3

    3

  • ADEM Form 556 3 Year Containment Sump Integrity Test Report (Low Level Method) - Alabama, Page 1
  • ADEM Form 556 3 Year Containment Sump Integrity Test Report (Low Level Method) - Alabama, Page 2
  • ADEM Form 556 3 Year Containment Sump Integrity Test Report (Low Level Method) - Alabama, Page 3
Prev 1 2 3 Next
ADVERTISEMENT