Form CEM-2301 Temporary Pedestrian Access Route Compliance Inspection Report - California

Form CEM-2301 Temporary Pedestrian Access Route Compliance Inspection Report - California

What Is Form CEM-2301?

This is a legal form that was released by the California Department of Transportation - a government authority operating within California. As of today, no separate filing guidelines for the form are provided by the issuing department.

Form Details:

  • Released on March 1, 2022;
  • The latest edition provided by the California Department of Transportation;
  • Easy to use and ready to print;
  • Quick to customize;
  • Compatible with most PDF-viewing applications;
  • Fill out the form in our online filing application.

Download a fillable version of Form CEM-2301 by clicking the link below or browse more documents and templates provided by the California Department of Transportation.

ADVERTISEMENT

Other Revision

Download Form CEM-2301 Temporary Pedestrian Access Route Compliance Inspection Report - California

4.6 of 5 (72 votes)
  • Form CEM-2301 Temporary Pedestrian Access Route Compliance Inspection Report - California

    1

  • Form CEM-2301 Temporary Pedestrian Access Route Compliance Inspection Report - California, Page 2

    2

  • Form CEM-2301 Temporary Pedestrian Access Route Compliance Inspection Report - California, Page 3

    3

  • Form CEM-2301 Temporary Pedestrian Access Route Compliance Inspection Report - California, Page 4

    4

  • Form CEM-2301 Temporary Pedestrian Access Route Compliance Inspection Report - California, Page 5

    5

  • Form CEM-2301 Temporary Pedestrian Access Route Compliance Inspection Report - California, Page 6

    6

  • Form CEM-2301 Temporary Pedestrian Access Route Compliance Inspection Report - California, Page 7

    7

  • Form CEM-2301 Temporary Pedestrian Access Route Compliance Inspection Report - California, Page 8

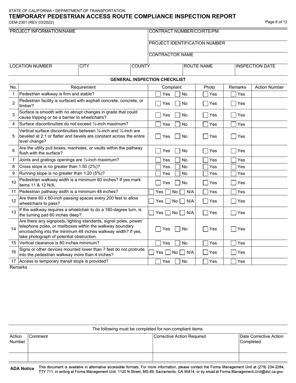
    8

  • Form CEM-2301 Temporary Pedestrian Access Route Compliance Inspection Report - California, Page 9

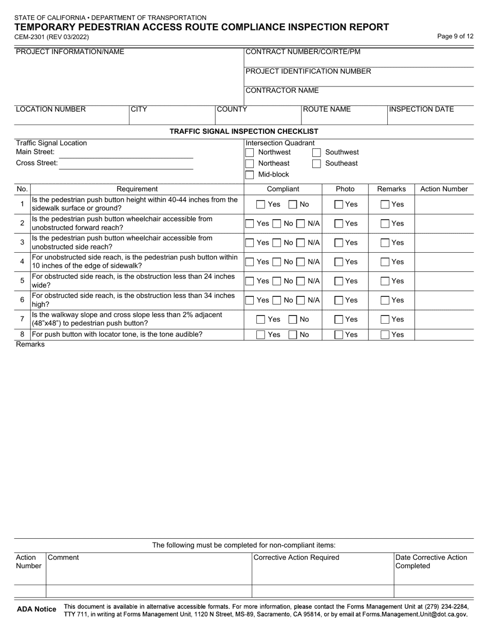
    9

  • Form CEM-2301 Temporary Pedestrian Access Route Compliance Inspection Report - California, Page 10

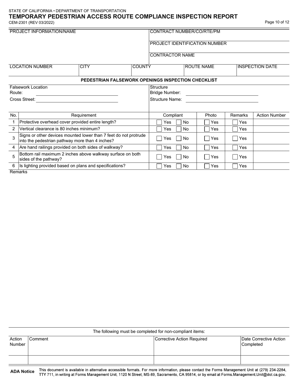
    10

  • Form CEM-2301 Temporary Pedestrian Access Route Compliance Inspection Report - California, Page 11

    11

  • Form CEM-2301 Temporary Pedestrian Access Route Compliance Inspection Report - California, Page 12

    12

  • Form CEM-2301 Temporary Pedestrian Access Route Compliance Inspection Report - California, Page 1
  • Form CEM-2301 Temporary Pedestrian Access Route Compliance Inspection Report - California, Page 2
  • Form CEM-2301 Temporary Pedestrian Access Route Compliance Inspection Report - California, Page 3
  • Form CEM-2301 Temporary Pedestrian Access Route Compliance Inspection Report - California, Page 4
  • Form CEM-2301 Temporary Pedestrian Access Route Compliance Inspection Report - California, Page 5
  • Form CEM-2301 Temporary Pedestrian Access Route Compliance Inspection Report - California, Page 6
  • Form CEM-2301 Temporary Pedestrian Access Route Compliance Inspection Report - California, Page 7
  • Form CEM-2301 Temporary Pedestrian Access Route Compliance Inspection Report - California, Page 8
  • Form CEM-2301 Temporary Pedestrian Access Route Compliance Inspection Report - California, Page 9
  • Form CEM-2301 Temporary Pedestrian Access Route Compliance Inspection Report - California, Page 10
  • Form CEM-2301 Temporary Pedestrian Access Route Compliance Inspection Report - California, Page 11
  • Form CEM-2301 Temporary Pedestrian Access Route Compliance Inspection Report - California, Page 12
Prev 1 2 3 4 5 ... 12 Next
ADVERTISEMENT

Related Documents