Concrete Strength Proficiency Pack - Missouri

Concrete Strength Proficiency Pack - Missouri

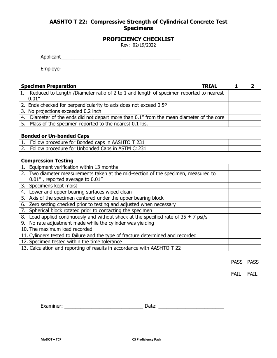
Concrete Strength Proficiency Pack is a legal document that was released by the Missouri Department of Transportation - a government authority operating within Missouri.

FAQ

Q: What is a Concrete Strength Proficiency Pack?
A: A Concrete Strength Proficiency Pack is a program offered in Missouri to certify individuals in concrete strength testing.

Q: Why is concrete strength testing important?
A: Concrete strength testing is important to ensure that structures are built to the required strength to withstand loads and perform safely.

Q: How can I become certified in concrete strength testing?
A: To become certified, you can enroll in the Concrete Strength Proficiency Pack program and complete the required training and testing.

Q: Is the Concrete Strength Proficiency Pack certification recognized outside of Missouri?
A: The recognition of the certification outside of Missouri may vary. It's best to check with the relevant authorities in the state or country where you intend to use the certification.

ADVERTISEMENT

Other Revision

Download Concrete Strength Proficiency Pack - Missouri

4.6 of 5 (41 votes)
  • Concrete Strength Proficiency Pack - Missouri

    1

  • Concrete Strength Proficiency Pack - Missouri, Page 2

    2

  • Concrete Strength Proficiency Pack - Missouri, Page 3

    3

  • Concrete Strength Proficiency Pack - Missouri, Page 4

    4

  • Concrete Strength Proficiency Pack - Missouri, Page 5

    5

  • Concrete Strength Proficiency Pack - Missouri, Page 6

    6

  • Concrete Strength Proficiency Pack - Missouri, Page 7

    7

  • Concrete Strength Proficiency Pack - Missouri, Page 8

    8

  • Concrete Strength Proficiency Pack - Missouri, Page 1
  • Concrete Strength Proficiency Pack - Missouri, Page 2
  • Concrete Strength Proficiency Pack - Missouri, Page 3
  • Concrete Strength Proficiency Pack - Missouri, Page 4
  • Concrete Strength Proficiency Pack - Missouri, Page 5
  • Concrete Strength Proficiency Pack - Missouri, Page 6
  • Concrete Strength Proficiency Pack - Missouri, Page 7
  • Concrete Strength Proficiency Pack - Missouri, Page 8
Prev 1 2 3 4 5 ... 8 Next
ADVERTISEMENT