EPA Form 3510-2F (NPDES Form 2F) Application for Permit to Discharge Storm Water Discharges Associated With Industrial Activity

EPA Form 3510-2F (NPDES Form 2F) Application for Permit to Discharge Storm Water Discharges Associated With Industrial Activity

What Is EPA Form 3510-2F (NPDES Form 2F)?

This is a legal form that was released by the U.S. Environmental Protection Agency on January 1, 1992 and used country-wide. As of today, no separate filing guidelines for the form are provided by the issuing department.

FAQ

Q: What is EPA Form 3510-2F?
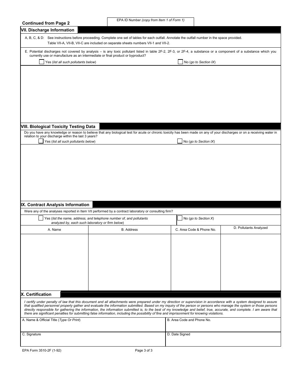
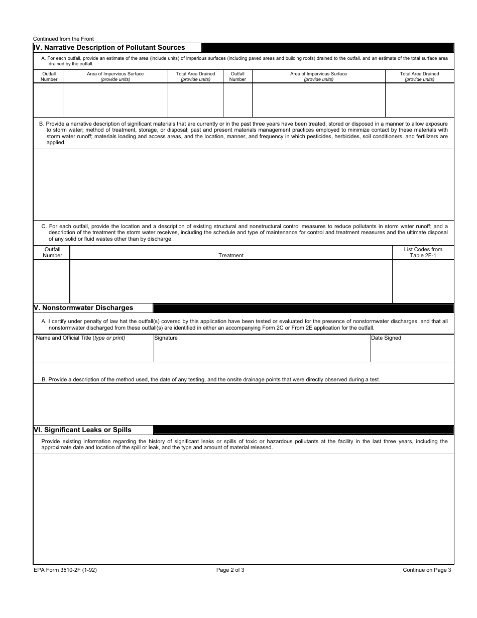
A: EPA Form 3510-2F is also known as NPDES Form 2F. It is an application form for obtaining a permit to discharge storm water associated with industrial activity.

Q: What is NPDES?
A: NPDES stands for National Pollutant Discharge Elimination System. It is a program under the Environmental Protection Agency (EPA) that regulates the discharge of pollutants into U.S. waters.

Q: Who needs to fill out EPA Form 3510-2F?
A: Industrial facilities that discharge storm water associated with industrial activity need to fill out EPA Form 3510-2F to obtain a permit.

Q: What is considered industrial activity?
A: Industrial activity includes activities such as manufacturing, mining, construction, and transportation that may result in storm water run-off with pollutants.

Q: Why do I need a permit for storm water discharge?
A: Permits are required to regulate and control the discharge of pollutants into water bodies, including storm water run-off from industrial activities, to protect water quality and the environment.

Q: What information is required on EPA Form 3510-2F?
A: EPA Form 3510-2F requires information about the facility, its activities, and potential pollutants in the storm water discharge, as well as measures taken to control pollution.

Q: Are there any fees associated with the permit application?
A: Yes, there may be fees associated with the permit application. The fees vary depending on the state and the size of the facility.

Q: What happens after I submit the permit application?
A: After submitting the permit application, it will be reviewed by the EPA or the state environmental agency. They will evaluate the information provided, conduct inspections if necessary, and determine if a permit will be issued.

Q: How long does it take to get a permit?
A: The time it takes to get a permit can vary depending on the complexity of the facility and the review process. It may take several months to receive a permit.

ADVERTISEMENT

Form Details:

  • Released on January 1, 1992;
  • The latest available edition released by the U.S. Environmental Protection Agency;
  • Easy to use and ready to print;
  • Yours to fill out and keep for your records;
  • Compatible with most PDF-viewing applications;
  • Fill out the form in our online filing application.

Download a fillable version of EPA Form 3510-2F (NPDES Form 2F) by clicking the link below or browse more documents and templates provided by the U.S. Environmental Protection Agency.

Download EPA Form 3510-2F (NPDES Form 2F) Application for Permit to Discharge Storm Water Discharges Associated With Industrial Activity

4.4 of 5 (72 votes)
  • EPA Form 3510-2F (NPDES Form 2F) Application for Permit to Discharge Storm Water Discharges Associated With Industrial Activity

    1

  • EPA Form 3510-2F (NPDES Form 2F) Application for Permit to Discharge Storm Water Discharges Associated With Industrial Activity, Page 2

    2

  • EPA Form 3510-2F (NPDES Form 2F) Application for Permit to Discharge Storm Water Discharges Associated With Industrial Activity, Page 3

    3

  • EPA Form 3510-2F (NPDES Form 2F) Application for Permit to Discharge Storm Water Discharges Associated With Industrial Activity, Page 4

    4

  • EPA Form 3510-2F (NPDES Form 2F) Application for Permit to Discharge Storm Water Discharges Associated With Industrial Activity, Page 5

    5

  • EPA Form 3510-2F (NPDES Form 2F) Application for Permit to Discharge Storm Water Discharges Associated With Industrial Activity, Page 6

    6

  • EPA Form 3510-2F (NPDES Form 2F) Application for Permit to Discharge Storm Water Discharges Associated With Industrial Activity, Page 7

    7

  • EPA Form 3510-2F (NPDES Form 2F) Application for Permit to Discharge Storm Water Discharges Associated With Industrial Activity, Page 8

    8

  • EPA Form 3510-2F (NPDES Form 2F) Application for Permit to Discharge Storm Water Discharges Associated With Industrial Activity, Page 9

    9

  • EPA Form 3510-2F (NPDES Form 2F) Application for Permit to Discharge Storm Water Discharges Associated With Industrial Activity, Page 10

    10

  • EPA Form 3510-2F (NPDES Form 2F) Application for Permit to Discharge Storm Water Discharges Associated With Industrial Activity, Page 11

    11

  • EPA Form 3510-2F (NPDES Form 2F) Application for Permit to Discharge Storm Water Discharges Associated With Industrial Activity, Page 12

    12

  • EPA Form 3510-2F (NPDES Form 2F) Application for Permit to Discharge Storm Water Discharges Associated With Industrial Activity, Page 13

    13

  • EPA Form 3510-2F (NPDES Form 2F) Application for Permit to Discharge Storm Water Discharges Associated With Industrial Activity, Page 14

    14

  • EPA Form 3510-2F (NPDES Form 2F) Application for Permit to Discharge Storm Water Discharges Associated With Industrial Activity, Page 15

    15

  • EPA Form 3510-2F (NPDES Form 2F) Application for Permit to Discharge Storm Water Discharges Associated With Industrial Activity, Page 16

    16

  • EPA Form 3510-2F (NPDES Form 2F) Application for Permit to Discharge Storm Water Discharges Associated With Industrial Activity, Page 17

    17

  • EPA Form 3510-2F (NPDES Form 2F) Application for Permit to Discharge Storm Water Discharges Associated With Industrial Activity, Page 1
  • EPA Form 3510-2F (NPDES Form 2F) Application for Permit to Discharge Storm Water Discharges Associated With Industrial Activity, Page 2
  • EPA Form 3510-2F (NPDES Form 2F) Application for Permit to Discharge Storm Water Discharges Associated With Industrial Activity, Page 3
  • EPA Form 3510-2F (NPDES Form 2F) Application for Permit to Discharge Storm Water Discharges Associated With Industrial Activity, Page 4
  • EPA Form 3510-2F (NPDES Form 2F) Application for Permit to Discharge Storm Water Discharges Associated With Industrial Activity, Page 5
  • EPA Form 3510-2F (NPDES Form 2F) Application for Permit to Discharge Storm Water Discharges Associated With Industrial Activity, Page 6
  • EPA Form 3510-2F (NPDES Form 2F) Application for Permit to Discharge Storm Water Discharges Associated With Industrial Activity, Page 7
  • EPA Form 3510-2F (NPDES Form 2F) Application for Permit to Discharge Storm Water Discharges Associated With Industrial Activity, Page 8
  • EPA Form 3510-2F (NPDES Form 2F) Application for Permit to Discharge Storm Water Discharges Associated With Industrial Activity, Page 9
  • EPA Form 3510-2F (NPDES Form 2F) Application for Permit to Discharge Storm Water Discharges Associated With Industrial Activity, Page 10
  • EPA Form 3510-2F (NPDES Form 2F) Application for Permit to Discharge Storm Water Discharges Associated With Industrial Activity, Page 11
  • EPA Form 3510-2F (NPDES Form 2F) Application for Permit to Discharge Storm Water Discharges Associated With Industrial Activity, Page 12
  • EPA Form 3510-2F (NPDES Form 2F) Application for Permit to Discharge Storm Water Discharges Associated With Industrial Activity, Page 13
  • EPA Form 3510-2F (NPDES Form 2F) Application for Permit to Discharge Storm Water Discharges Associated With Industrial Activity, Page 14
  • EPA Form 3510-2F (NPDES Form 2F) Application for Permit to Discharge Storm Water Discharges Associated With Industrial Activity, Page 15
  • EPA Form 3510-2F (NPDES Form 2F) Application for Permit to Discharge Storm Water Discharges Associated With Industrial Activity, Page 16
  • EPA Form 3510-2F (NPDES Form 2F) Application for Permit to Discharge Storm Water Discharges Associated With Industrial Activity, Page 17
Prev 1 2 3 4 5 ... 17 Next
ADVERTISEMENT

Related Documents