ADEM Form 545 Cathodic Protection Monitoring Form for Galvanic Systems - Alabama

Notification Icon This version of the form is not currently in use and is provided for reference only. Download this version of ADEM Form 545 for the current year.

ADEM Form 545 Cathodic Protection Monitoring Form for Galvanic Systems - Alabama

What Is ADEM Form 545?

This is a legal form that was released by the Alabama Department of Environmental Management - a government authority operating within Alabama. As of today, no separate filing guidelines for the form are provided by the issuing department.

FAQ

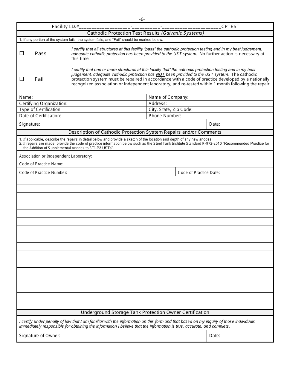
Q: What is ADEM Form 545?
A: ADEM Form 545 is the Cathodic Protection Monitoring Form for Galvanic Systems in Alabama.

Q: What is Cathodic Protection?
A: Cathodic protection is a technique used to control corrosion of metal surfaces in contact with an electrolyte.

Q: What are Galvanic Systems?
A: Galvanic systems are passive cathodic protection systems that use sacrificial anodes to protect metal structures from corrosion.

Q: Who is required to use ADEM Form 545?
A: Any entity in Alabama operating galvanic cathodic protection systems is required to use ADEM Form 545.

Q: What information is required in ADEM Form 545?
A: ADEM Form 545 requires information such as facility details, cathodic protection system specifications, and monitoring data.

Q: Is it mandatory to submit ADEM Form 545?
A: Yes, it is mandatory to submit ADEM Form 545 if you are operating galvanic cathodic protection systems in Alabama.

Q: What is the purpose of ADEM Form 545?
A: The purpose of ADEM Form 545 is to ensure proper monitoring and maintenance of galvanic cathodic protection systems to prevent corrosion.

Q: What are the consequences of not using ADEM Form 545?
A: Failure to use ADEM Form 545 or comply with the requirements may result in penalties and enforcement actions by ADEM.

ADVERTISEMENT

Form Details:

  • Released on February 1, 2012;
  • The latest edition provided by the Alabama Department of Environmental Management;
  • Easy to use and ready to print;
  • Quick to customize;
  • Compatible with most PDF-viewing applications;
  • Fill out the form in our online filing application.

Download a printable version of ADEM Form 545 by clicking the link below or browse more documents and templates provided by the Alabama Department of Environmental Management.

Download ADEM Form 545 Cathodic Protection Monitoring Form for Galvanic Systems - Alabama

4.5 of 5 (56 votes)
  • ADEM Form 545 Cathodic Protection Monitoring Form for Galvanic Systems - Alabama

    1

  • ADEM Form 545 Cathodic Protection Monitoring Form for Galvanic Systems - Alabama, Page 2

    2

  • ADEM Form 545 Cathodic Protection Monitoring Form for Galvanic Systems - Alabama, Page 3

    3

  • ADEM Form 545 Cathodic Protection Monitoring Form for Galvanic Systems - Alabama, Page 4

    4

  • ADEM Form 545 Cathodic Protection Monitoring Form for Galvanic Systems - Alabama, Page 5

    5

  • ADEM Form 545 Cathodic Protection Monitoring Form for Galvanic Systems - Alabama, Page 6

    6

  • ADEM Form 545 Cathodic Protection Monitoring Form for Galvanic Systems - Alabama, Page 1
  • ADEM Form 545 Cathodic Protection Monitoring Form for Galvanic Systems - Alabama, Page 2
  • ADEM Form 545 Cathodic Protection Monitoring Form for Galvanic Systems - Alabama, Page 3
  • ADEM Form 545 Cathodic Protection Monitoring Form for Galvanic Systems - Alabama, Page 4
  • ADEM Form 545 Cathodic Protection Monitoring Form for Galvanic Systems - Alabama, Page 5
  • ADEM Form 545 Cathodic Protection Monitoring Form for Galvanic Systems - Alabama, Page 6
Prev 1 2 3 4 5 6 Next
ADVERTISEMENT