Form CEM-5773CH Curb Ramp (Case Ch) Americans With Disabilities Act (Ada) Compliance Inspection Report - California

Notification Icon This version of the form is not currently in use and is provided for reference only. Download this version of Form CEM-5773CH for the current year.

Form CEM-5773CH Curb Ramp (Case Ch) Americans With Disabilities Act (Ada) Compliance Inspection Report - California

What Is Form CEM-5773CH?

This is a legal form that was released by the California Department of Transportation - a government authority operating within California. As of today, no separate filing guidelines for the form are provided by the issuing department.

FAQ

Q: What is Form CEM-5773CH?
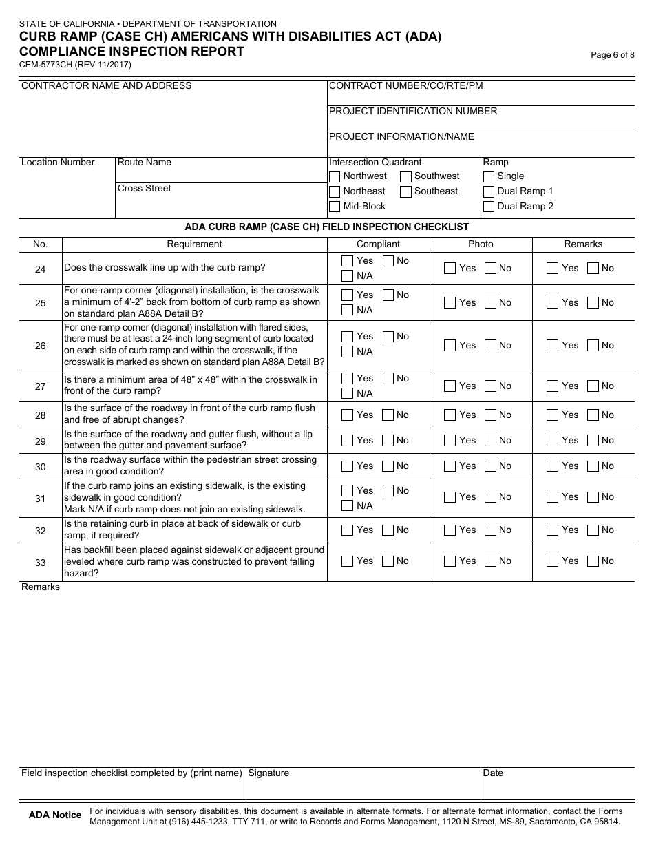
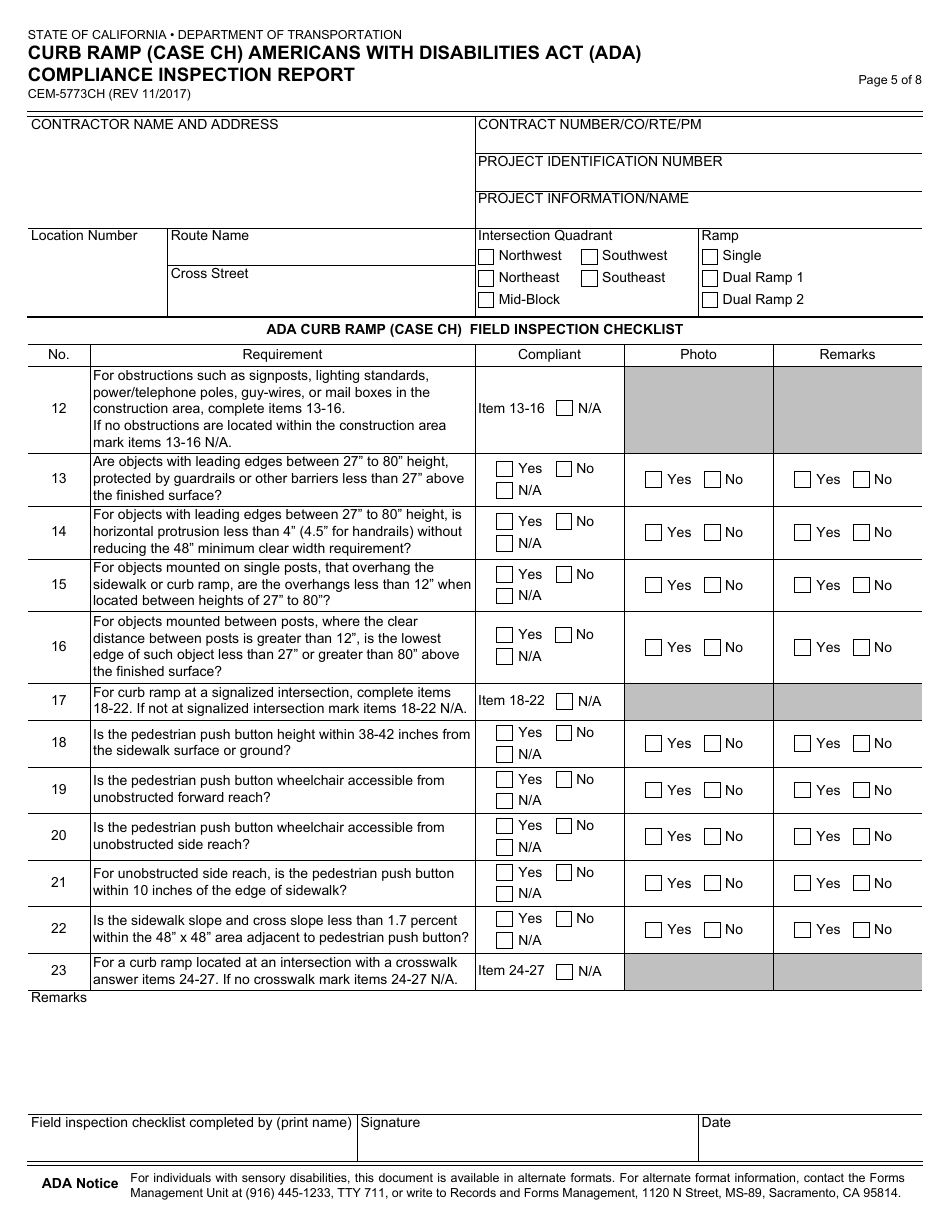
A: Form CEM-5773CH is the Curb Ramp (Case Ch) Americans With Disabilities Act (ADA) Compliance Inspection Report specifically for California.

Q: What is a curb ramp?
A: A curb ramp is a slope that connects a sidewalk to a street or roadway, allowing for easier access for people with disabilities.

Q: What is the Americans with Disabilities Act (ADA)?
A: The Americans with Disabilities Act (ADA) is a civil rights law that prohibits discrimination against individuals with disabilities and ensures equal opportunities in various areas, including employment, transportation, and public accommodations.

Q: What is the purpose of the ADA Compliance Inspection Report?
A: The purpose of the ADA Compliance Inspection Report is to assess whether curb ramps meet the accessibility standards outlined in the Americans with Disabilities Act (ADA).

Q: Who is required to comply with the ADA?
A: Public entities, businesses, and non-profit organizations that are considered places of public accommodation are required to comply with the ADA.

Q: Why is ADA compliance important?
A: ADA compliance is important to ensure equal access and opportunities for individuals with disabilities, promoting inclusivity and non-discrimination.

Q: Who is responsible for conducting ADA compliance inspections for curb ramps?
A: Engineering personnel or qualified inspectors are typically responsible for conducting ADA compliance inspections for curb ramps.

Q: What happens if a curb ramp is found to be non-compliant with ADA standards?
A: If a curb ramp is found to be non-compliant with ADA standards, it may need to be modified or improved to meet the accessibility requirements.

Q: Are there any penalties for non-compliance with the ADA?
A: Yes, businesses and public entities that fail to comply with the ADA can face legal consequences, including fines and potential lawsuits.

ADVERTISEMENT

Form Details:

  • Released on November 1, 2017;
  • The latest edition provided by the California Department of Transportation;
  • Easy to use and ready to print;
  • Quick to customize;
  • Compatible with most PDF-viewing applications;
  • Fill out the form in our online filing application.

Download a fillable version of Form CEM-5773CH by clicking the link below or browse more documents and templates provided by the California Department of Transportation.

Download Form CEM-5773CH Curb Ramp (Case Ch) Americans With Disabilities Act (Ada) Compliance Inspection Report - California

4.4 of 5 (58 votes)
  • Form CEM-5773CH Curb Ramp (Case Ch) Americans With Disabilities Act (Ada) Compliance Inspection Report - California

    1

  • Form CEM-5773CH Curb Ramp (Case Ch) Americans With Disabilities Act (Ada) Compliance Inspection Report - California, Page 2

    2

  • Form CEM-5773CH Curb Ramp (Case Ch) Americans With Disabilities Act (Ada) Compliance Inspection Report - California, Page 3

    3

  • Form CEM-5773CH Curb Ramp (Case Ch) Americans With Disabilities Act (Ada) Compliance Inspection Report - California, Page 4

    4

  • Form CEM-5773CH Curb Ramp (Case Ch) Americans With Disabilities Act (Ada) Compliance Inspection Report - California, Page 5

    5

  • Form CEM-5773CH Curb Ramp (Case Ch) Americans With Disabilities Act (Ada) Compliance Inspection Report - California, Page 6

    6

  • Form CEM-5773CH Curb Ramp (Case Ch) Americans With Disabilities Act (Ada) Compliance Inspection Report - California, Page 7

    7

  • Form CEM-5773CH Curb Ramp (Case Ch) Americans With Disabilities Act (Ada) Compliance Inspection Report - California, Page 8

    8

  • Form CEM-5773CH Curb Ramp (Case Ch) Americans With Disabilities Act (Ada) Compliance Inspection Report - California, Page 1
  • Form CEM-5773CH Curb Ramp (Case Ch) Americans With Disabilities Act (Ada) Compliance Inspection Report - California, Page 2
  • Form CEM-5773CH Curb Ramp (Case Ch) Americans With Disabilities Act (Ada) Compliance Inspection Report - California, Page 3
  • Form CEM-5773CH Curb Ramp (Case Ch) Americans With Disabilities Act (Ada) Compliance Inspection Report - California, Page 4
  • Form CEM-5773CH Curb Ramp (Case Ch) Americans With Disabilities Act (Ada) Compliance Inspection Report - California, Page 5
  • Form CEM-5773CH Curb Ramp (Case Ch) Americans With Disabilities Act (Ada) Compliance Inspection Report - California, Page 6
  • Form CEM-5773CH Curb Ramp (Case Ch) Americans With Disabilities Act (Ada) Compliance Inspection Report - California, Page 7
  • Form CEM-5773CH Curb Ramp (Case Ch) Americans With Disabilities Act (Ada) Compliance Inspection Report - California, Page 8
Prev 1 2 3 4 5 ... 8 Next
ADVERTISEMENT