Form CEM-5773ADE Curb Ramp (Case a,d, or E) Americans With Disabilities Act (Ada) Compliance Inspection Report - California

Notification Icon This version of the form is not currently in use and is provided for reference only. Download this version of Form CEM-5773ADE for the current year.

Form CEM-5773ADE Curb Ramp (Case a,d, or E) Americans With Disabilities Act (Ada) Compliance Inspection Report - California

What Is Form CEM-5773ADE?

This is a legal form that was released by the California Department of Transportation - a government authority operating within California. As of today, no separate filing guidelines for the form are provided by the issuing department.

FAQ

Q: What is the purpose of the Form CEM-5773ADE?
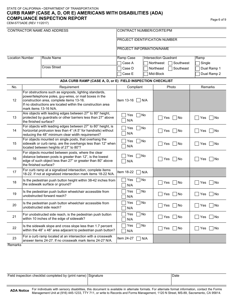
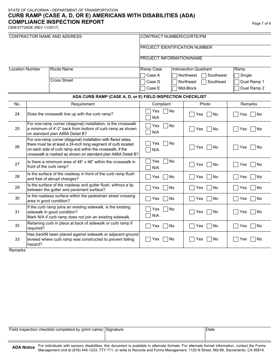
A: The purpose of the Form CEM-5773ADE is to document the compliance inspection of curb ramps with the Americans with Disabilities Act (ADA) in California.

Q: What does this form inspect?
A: This form inspects curb ramps for ADA compliance.

Q: What is the significance of ADA compliance?
A: ADA compliance ensures that curb ramps are accessible for individuals with disabilities.

Q: Who is responsible for conducting the inspection?
A: The inspection is conducted by individuals designated by the California Department of Transportation (Caltrans).

Q: What are the possible cases covered by this form?
A: This form covers cases a, d, and e of curb ramps.

Q: What information is included in the inspection report?
A: The inspection report includes details about the curb ramp's compliance with ADA standards, measurements, observations, and any recommended actions.

ADVERTISEMENT

Form Details:

  • Released on November 1, 2017;
  • The latest edition provided by the California Department of Transportation;
  • Easy to use and ready to print;
  • Quick to customize;
  • Compatible with most PDF-viewing applications;
  • Fill out the form in our online filing application.

Download a fillable version of Form CEM-5773ADE by clicking the link below or browse more documents and templates provided by the California Department of Transportation.

Download Form CEM-5773ADE Curb Ramp (Case a,d, or E) Americans With Disabilities Act (Ada) Compliance Inspection Report - California

4.8 of 5 (85 votes)
  • Form CEM-5773ADE Curb Ramp (Case a,d, or E) Americans With Disabilities Act (Ada) Compliance Inspection Report - California

    1

  • Form CEM-5773ADE Curb Ramp (Case a,d, or E) Americans With Disabilities Act (Ada) Compliance Inspection Report - California, Page 2

    2

  • Form CEM-5773ADE Curb Ramp (Case a,d, or E) Americans With Disabilities Act (Ada) Compliance Inspection Report - California, Page 3

    3

  • Form CEM-5773ADE Curb Ramp (Case a,d, or E) Americans With Disabilities Act (Ada) Compliance Inspection Report - California, Page 4

    4

  • Form CEM-5773ADE Curb Ramp (Case a,d, or E) Americans With Disabilities Act (Ada) Compliance Inspection Report - California, Page 5

    5

  • Form CEM-5773ADE Curb Ramp (Case a,d, or E) Americans With Disabilities Act (Ada) Compliance Inspection Report - California, Page 6

    6

  • Form CEM-5773ADE Curb Ramp (Case a,d, or E) Americans With Disabilities Act (Ada) Compliance Inspection Report - California, Page 7

    7

  • Form CEM-5773ADE Curb Ramp (Case a,d, or E) Americans With Disabilities Act (Ada) Compliance Inspection Report - California, Page 8

    8

  • Form CEM-5773ADE Curb Ramp (Case a,d, or E) Americans With Disabilities Act (Ada) Compliance Inspection Report - California, Page 9

    9

  • Form CEM-5773ADE Curb Ramp (Case a,d, or E) Americans With Disabilities Act (Ada) Compliance Inspection Report - California, Page 1
  • Form CEM-5773ADE Curb Ramp (Case a,d, or E) Americans With Disabilities Act (Ada) Compliance Inspection Report - California, Page 2
  • Form CEM-5773ADE Curb Ramp (Case a,d, or E) Americans With Disabilities Act (Ada) Compliance Inspection Report - California, Page 3
  • Form CEM-5773ADE Curb Ramp (Case a,d, or E) Americans With Disabilities Act (Ada) Compliance Inspection Report - California, Page 4
  • Form CEM-5773ADE Curb Ramp (Case a,d, or E) Americans With Disabilities Act (Ada) Compliance Inspection Report - California, Page 5
  • Form CEM-5773ADE Curb Ramp (Case a,d, or E) Americans With Disabilities Act (Ada) Compliance Inspection Report - California, Page 6
  • Form CEM-5773ADE Curb Ramp (Case a,d, or E) Americans With Disabilities Act (Ada) Compliance Inspection Report - California, Page 7
  • Form CEM-5773ADE Curb Ramp (Case a,d, or E) Americans With Disabilities Act (Ada) Compliance Inspection Report - California, Page 8
  • Form CEM-5773ADE Curb Ramp (Case a,d, or E) Americans With Disabilities Act (Ada) Compliance Inspection Report - California, Page 9
Prev 1 2 3 4 5 ... 9 Next
ADVERTISEMENT