Form CEM-5773NSPP Curb Ramp (Non-standard Plan - Perpendicular) Americans With Disabilities Act (Ada) Compliance Inspection Report - California

Notification Icon This version of the form is not currently in use and is provided for reference only. Download this version of Form CEM-5773NSPP for the current year.

Form CEM-5773NSPP Curb Ramp (Non-standard Plan - Perpendicular) Americans With Disabilities Act (Ada) Compliance Inspection Report - California

What Is Form CEM-5773NSPP?

This is a legal form that was released by the California Department of Transportation - a government authority operating within California. As of today, no separate filing guidelines for the form are provided by the issuing department.

FAQ

Q: What is Form CEM-5773NSPP?
A: Form CEM-5773NSPP is a document used in California for the inspection of curb ramps for compliance with the Americans With Disabilities Act (ADA) standards.

Q: What is the purpose of the CEM-5773NSPP form?
A: The purpose of the CEM-5773NSPP form is to assess the compliance of curb ramps with ADA standards.

Q: What does ADA stand for?
A: ADA stands for the Americans with Disabilities Act.

Q: Who is responsible for conducting the inspection?
A: The inspection for ADA compliance of curb ramps is typically conducted by qualified individuals or agencies designated by the state or local government.

Q: What does the CEM-5773NSPP form include?
A: The CEM-5773NSPP form includes information about the location of the curb ramp, its compliance status, and any recommendations for improvements or modifications.

Q: Is the CEM-5773NSPP form specific to California?
A: Yes, the CEM-5773NSPP form is specific to California as it is used for inspections in that state.

Q: Why is ADA compliance important for curb ramps?
A: ADA compliance for curb ramps is important to ensure that people with disabilities have equal access to sidewalks and pedestrian routes.

Q: What happens if a curb ramp is found to be non-compliant?
A: If a curb ramp is found to be non-compliant, recommendations for improvements or modifications may be made to bring it into compliance with ADA standards.

ADVERTISEMENT

Form Details:

  • Released on November 1, 2017;
  • The latest edition provided by the California Department of Transportation;
  • Easy to use and ready to print;
  • Quick to customize;
  • Compatible with most PDF-viewing applications;
  • Fill out the form in our online filing application.

Download a fillable version of Form CEM-5773NSPP by clicking the link below or browse more documents and templates provided by the California Department of Transportation.

Download Form CEM-5773NSPP Curb Ramp (Non-standard Plan - Perpendicular) Americans With Disabilities Act (Ada) Compliance Inspection Report - California

4.4 of 5 (90 votes)
  • Form CEM-5773NSPP Curb Ramp (Non-standard Plan - Perpendicular) Americans With Disabilities Act (Ada) Compliance Inspection Report - California

    1

  • Form CEM-5773NSPP Curb Ramp (Non-standard Plan - Perpendicular) Americans With Disabilities Act (Ada) Compliance Inspection Report - California, Page 2

    2

  • Form CEM-5773NSPP Curb Ramp (Non-standard Plan - Perpendicular) Americans With Disabilities Act (Ada) Compliance Inspection Report - California, Page 3

    3

  • Form CEM-5773NSPP Curb Ramp (Non-standard Plan - Perpendicular) Americans With Disabilities Act (Ada) Compliance Inspection Report - California, Page 4

    4

  • Form CEM-5773NSPP Curb Ramp (Non-standard Plan - Perpendicular) Americans With Disabilities Act (Ada) Compliance Inspection Report - California, Page 5

    5

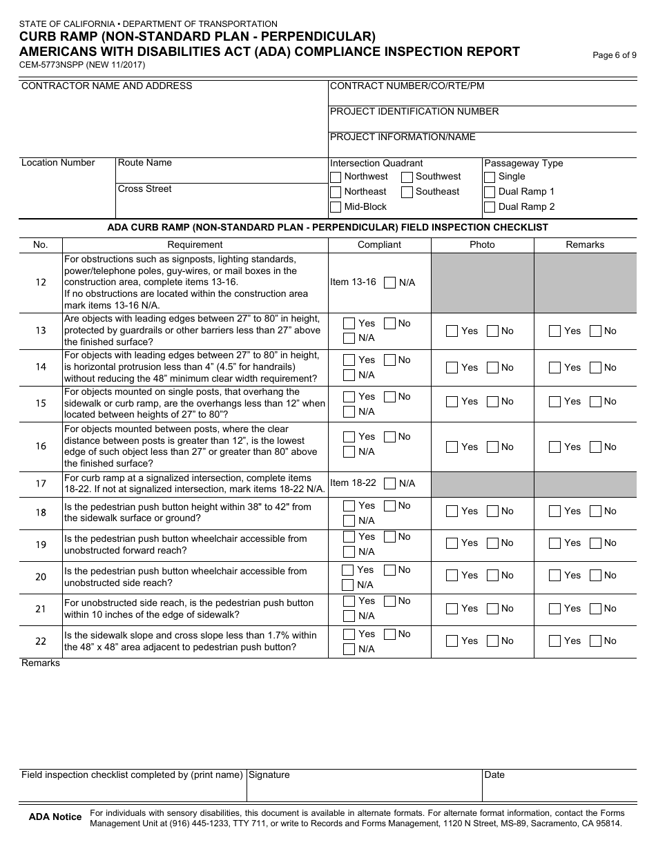
  • Form CEM-5773NSPP Curb Ramp (Non-standard Plan - Perpendicular) Americans With Disabilities Act (Ada) Compliance Inspection Report - California, Page 6

    6

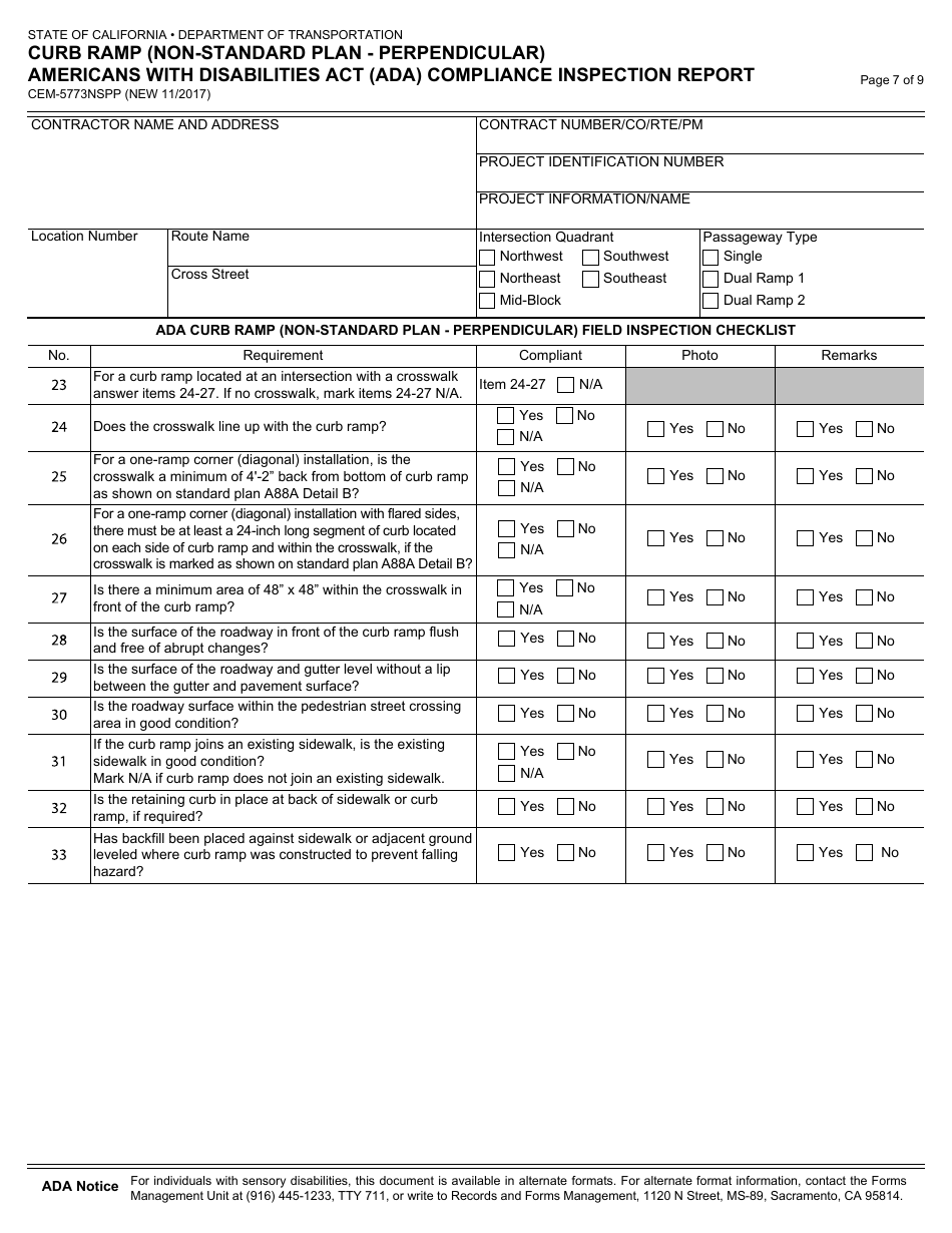
  • Form CEM-5773NSPP Curb Ramp (Non-standard Plan - Perpendicular) Americans With Disabilities Act (Ada) Compliance Inspection Report - California, Page 7

    7

  • Form CEM-5773NSPP Curb Ramp (Non-standard Plan - Perpendicular) Americans With Disabilities Act (Ada) Compliance Inspection Report - California, Page 8

    8

  • Form CEM-5773NSPP Curb Ramp (Non-standard Plan - Perpendicular) Americans With Disabilities Act (Ada) Compliance Inspection Report - California, Page 9

    9

  • Form CEM-5773NSPP Curb Ramp (Non-standard Plan - Perpendicular) Americans With Disabilities Act (Ada) Compliance Inspection Report - California, Page 1
  • Form CEM-5773NSPP Curb Ramp (Non-standard Plan - Perpendicular) Americans With Disabilities Act (Ada) Compliance Inspection Report - California, Page 2
  • Form CEM-5773NSPP Curb Ramp (Non-standard Plan - Perpendicular) Americans With Disabilities Act (Ada) Compliance Inspection Report - California, Page 3
  • Form CEM-5773NSPP Curb Ramp (Non-standard Plan - Perpendicular) Americans With Disabilities Act (Ada) Compliance Inspection Report - California, Page 4
  • Form CEM-5773NSPP Curb Ramp (Non-standard Plan - Perpendicular) Americans With Disabilities Act (Ada) Compliance Inspection Report - California, Page 5
  • Form CEM-5773NSPP Curb Ramp (Non-standard Plan - Perpendicular) Americans With Disabilities Act (Ada) Compliance Inspection Report - California, Page 6
  • Form CEM-5773NSPP Curb Ramp (Non-standard Plan - Perpendicular) Americans With Disabilities Act (Ada) Compliance Inspection Report - California, Page 7
  • Form CEM-5773NSPP Curb Ramp (Non-standard Plan - Perpendicular) Americans With Disabilities Act (Ada) Compliance Inspection Report - California, Page 8
  • Form CEM-5773NSPP Curb Ramp (Non-standard Plan - Perpendicular) Americans With Disabilities Act (Ada) Compliance Inspection Report - California, Page 9
Prev 1 2 3 4 5 ... 9 Next
ADVERTISEMENT