Form CEM-5773C Curb Ramp (Case C) Americans With Disabilities Act (Ada) Compliance Inspection Report - California

Notification Icon This version of the form is not currently in use and is provided for reference only. Download this version of Form CEM-5773C for the current year.

Form CEM-5773C Curb Ramp (Case C) Americans With Disabilities Act (Ada) Compliance Inspection Report - California

What Is Form CEM-5773C?

This is a legal form that was released by the California Department of Transportation - a government authority operating within California. As of today, no separate filing guidelines for the form are provided by the issuing department.

FAQ

Q: What is Form CEM-5773C?
A: Form CEM-5773C is the Curb Ramp (Case C) Americans With Disabilities Act (ADA) Compliance Inspection Report for California.

Q: What does this form cover?
A: This form covers the compliance inspection report for curb ramps with Case C. Case C refers to projects funded entirely with state or local funds.

Q: What is the purpose of this form?
A: The purpose of this form is to document the inspection and compliance status of curb ramps with the Americans With Disabilities Act (ADA) requirements.

Q: Who is required to fill out this form?
A: This form is typically filled out by inspectors or officials responsible for inspecting and ensuring ADA compliance of curb ramps in California.

Q: Are there any specific requirements for this form?
A: Yes, this form must be completed in accordance with the California Manual on Uniform Traffic Control Devices and the ADA requirements.

ADVERTISEMENT

Form Details:

  • Released on November 1, 2017;
  • The latest edition provided by the California Department of Transportation;
  • Easy to use and ready to print;
  • Quick to customize;
  • Compatible with most PDF-viewing applications;
  • Fill out the form in our online filing application.

Download a fillable version of Form CEM-5773C by clicking the link below or browse more documents and templates provided by the California Department of Transportation.

Download Form CEM-5773C Curb Ramp (Case C) Americans With Disabilities Act (Ada) Compliance Inspection Report - California

4.7 of 5 (47 votes)
  • Form CEM-5773C Curb Ramp (Case C) Americans With Disabilities Act (Ada) Compliance Inspection Report - California

    1

  • Form CEM-5773C Curb Ramp (Case C) Americans With Disabilities Act (Ada) Compliance Inspection Report - California, Page 2

    2

  • Form CEM-5773C Curb Ramp (Case C) Americans With Disabilities Act (Ada) Compliance Inspection Report - California, Page 3

    3

  • Form CEM-5773C Curb Ramp (Case C) Americans With Disabilities Act (Ada) Compliance Inspection Report - California, Page 4

    4

  • Form CEM-5773C Curb Ramp (Case C) Americans With Disabilities Act (Ada) Compliance Inspection Report - California, Page 5

    5

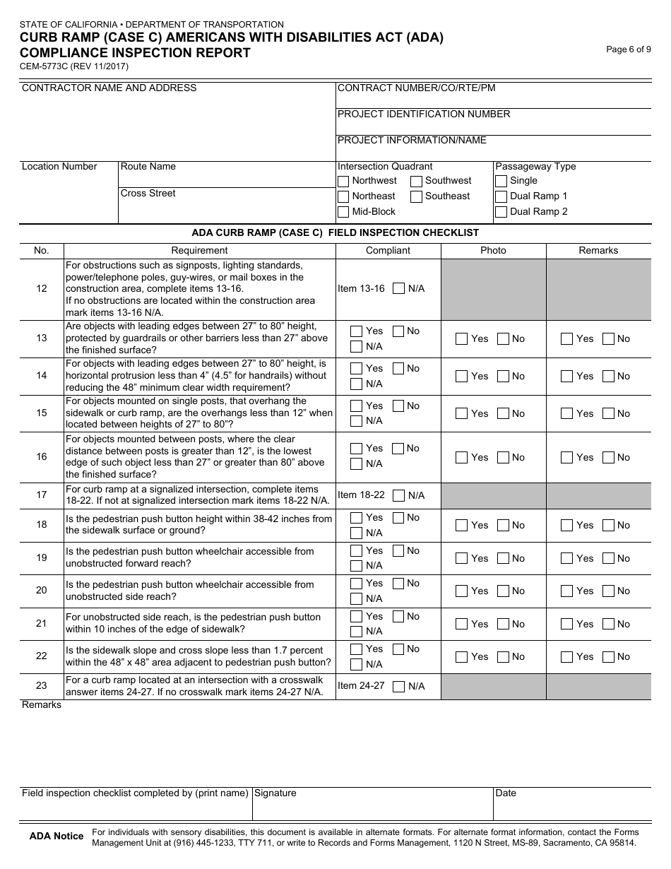
  • Form CEM-5773C Curb Ramp (Case C) Americans With Disabilities Act (Ada) Compliance Inspection Report - California, Page 6

    6

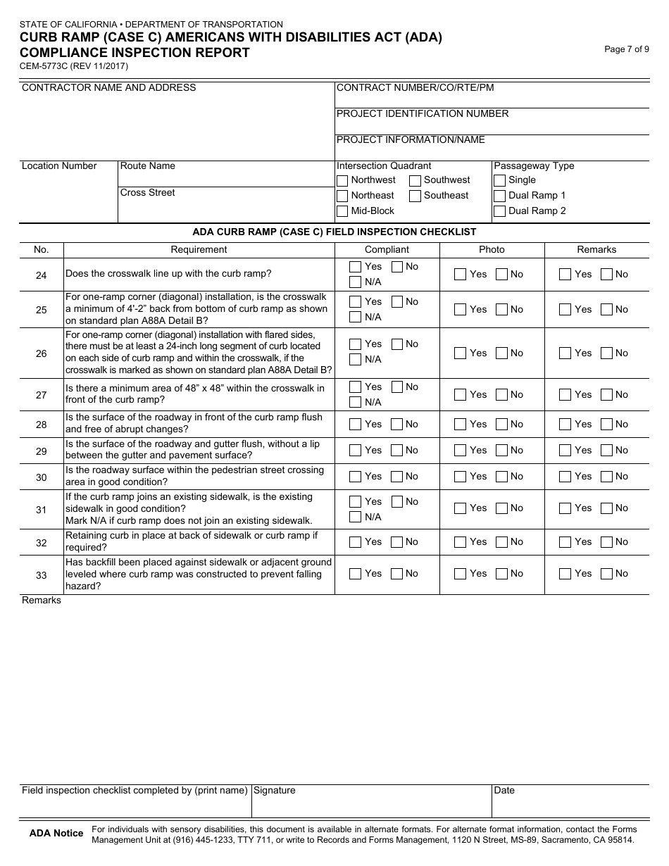
  • Form CEM-5773C Curb Ramp (Case C) Americans With Disabilities Act (Ada) Compliance Inspection Report - California, Page 7

    7

  • Form CEM-5773C Curb Ramp (Case C) Americans With Disabilities Act (Ada) Compliance Inspection Report - California, Page 8

    8

  • Form CEM-5773C Curb Ramp (Case C) Americans With Disabilities Act (Ada) Compliance Inspection Report - California, Page 9

    9

  • Form CEM-5773C Curb Ramp (Case C) Americans With Disabilities Act (Ada) Compliance Inspection Report - California, Page 1
  • Form CEM-5773C Curb Ramp (Case C) Americans With Disabilities Act (Ada) Compliance Inspection Report - California, Page 2
  • Form CEM-5773C Curb Ramp (Case C) Americans With Disabilities Act (Ada) Compliance Inspection Report - California, Page 3
  • Form CEM-5773C Curb Ramp (Case C) Americans With Disabilities Act (Ada) Compliance Inspection Report - California, Page 4
  • Form CEM-5773C Curb Ramp (Case C) Americans With Disabilities Act (Ada) Compliance Inspection Report - California, Page 5
  • Form CEM-5773C Curb Ramp (Case C) Americans With Disabilities Act (Ada) Compliance Inspection Report - California, Page 6
  • Form CEM-5773C Curb Ramp (Case C) Americans With Disabilities Act (Ada) Compliance Inspection Report - California, Page 7
  • Form CEM-5773C Curb Ramp (Case C) Americans With Disabilities Act (Ada) Compliance Inspection Report - California, Page 8
  • Form CEM-5773C Curb Ramp (Case C) Americans With Disabilities Act (Ada) Compliance Inspection Report - California, Page 9
Prev 1 2 3 4 5 ... 9 Next
ADVERTISEMENT