Form LAPG22-U ATP Cycle 4 Application Form - California

Notification Icon This version of the form is not currently in use and is provided for reference only. Download this version of Form LAPG22-U for the current year.

Form LAPG22-U ATP Cycle 4 Application Form - California

What Is Form LAPG22-U?

This is a legal form that was released by the California Department of Transportation - a government authority operating within California. As of today, no separate filing guidelines for the form are provided by the issuing department.

FAQ

Q: What is the purpose of the LAPG22-U ATP Cycle 4 Application Form?
A: The LAPG22-U ATP Cycle 4 Application Form is used to apply for an Alternative Treatment Program (ATP) in California.

Q: Who is eligible to apply for the LAPG22-U ATP Cycle 4?
A: Individuals who meet the eligibility requirements set by the California Department of Fish and Wildlife are eligible to apply for the LAPG22-U ATP Cycle 4.

Q: What documents do I need to submit with the LAPG22-U ATP Cycle 4 Application Form?
A: You will need to submit supporting documents such as identification, proof of residency, and any required permits or licenses.

Q: How much does it cost to submit the LAPG22-U ATP Cycle 4 Application Form?
A: The cost of submitting the LAPG22-U ATP Cycle 4 Application Form varies and is determined by the California Department of Fish and Wildlife. Please refer to the application form or contact them for the current fee.

Q: What is the deadline for submitting the LAPG22-U ATP Cycle 4 Application Form?
A: The deadline for submitting the LAPG22-U ATP Cycle 4 Application Form is typically specified on the form. It is important to submit your application before the deadline to be considered for the program.

ADVERTISEMENT

Form Details:

  • Released on May 1, 2018;
  • The latest edition provided by the California Department of Transportation;
  • Easy to use and ready to print;
  • Quick to customize;
  • Compatible with most PDF-viewing applications;
  • Fill out the form in our online filing application.

Download a printable version of Form LAPG22-U by clicking the link below or browse more documents and templates provided by the California Department of Transportation.

Download Form LAPG22-U ATP Cycle 4 Application Form - California

4.7 of 5 (11 votes)
  • Form LAPG22-U ATP Cycle 4 Application Form - California

    1

  • Form LAPG22-U ATP Cycle 4 Application Form - California, Page 2

    2

  • Form LAPG22-U ATP Cycle 4 Application Form - California, Page 3

    3

  • Form LAPG22-U ATP Cycle 4 Application Form - California, Page 4

    4

  • Form LAPG22-U ATP Cycle 4 Application Form - California, Page 5

    5

  • Form LAPG22-U ATP Cycle 4 Application Form - California, Page 6

    6

  • Form LAPG22-U ATP Cycle 4 Application Form - California, Page 7

    7

  • Form LAPG22-U ATP Cycle 4 Application Form - California, Page 8

    8

  • Form LAPG22-U ATP Cycle 4 Application Form - California, Page 9

    9

  • Form LAPG22-U ATP Cycle 4 Application Form - California, Page 10

    10

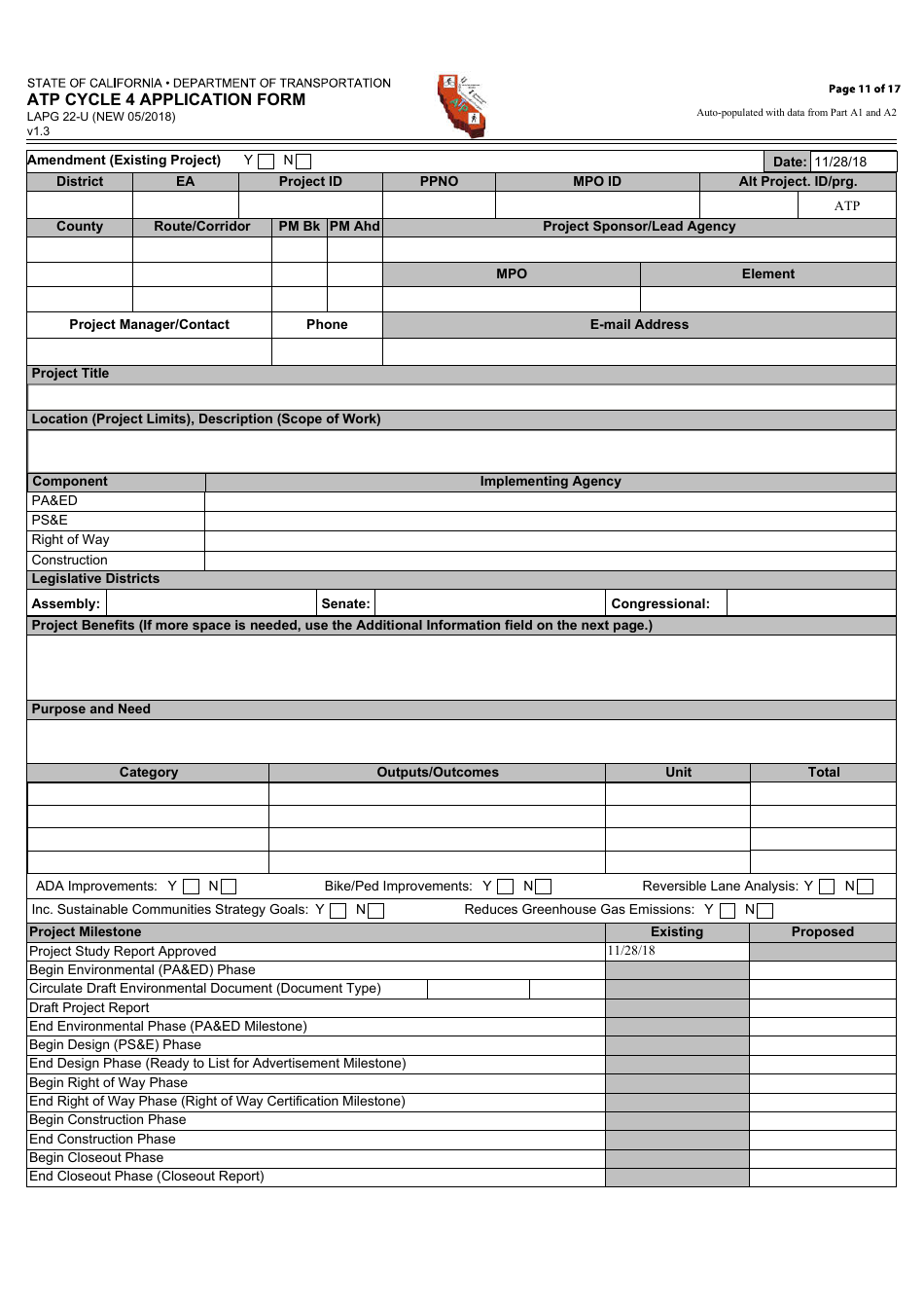
  • Form LAPG22-U ATP Cycle 4 Application Form - California, Page 11

    11

  • Form LAPG22-U ATP Cycle 4 Application Form - California, Page 12

    12

  • Form LAPG22-U ATP Cycle 4 Application Form - California, Page 13

    13

  • Form LAPG22-U ATP Cycle 4 Application Form - California, Page 14

    14

  • Form LAPG22-U ATP Cycle 4 Application Form - California, Page 15

    15

  • Form LAPG22-U ATP Cycle 4 Application Form - California, Page 16

    16

  • Form LAPG22-U ATP Cycle 4 Application Form - California, Page 17

    17

  • Form LAPG22-U ATP Cycle 4 Application Form - California, Page 1
  • Form LAPG22-U ATP Cycle 4 Application Form - California, Page 2
  • Form LAPG22-U ATP Cycle 4 Application Form - California, Page 3
  • Form LAPG22-U ATP Cycle 4 Application Form - California, Page 4
  • Form LAPG22-U ATP Cycle 4 Application Form - California, Page 5
  • Form LAPG22-U ATP Cycle 4 Application Form - California, Page 6
  • Form LAPG22-U ATP Cycle 4 Application Form - California, Page 7
  • Form LAPG22-U ATP Cycle 4 Application Form - California, Page 8
  • Form LAPG22-U ATP Cycle 4 Application Form - California, Page 9
  • Form LAPG22-U ATP Cycle 4 Application Form - California, Page 10
  • Form LAPG22-U ATP Cycle 4 Application Form - California, Page 11
  • Form LAPG22-U ATP Cycle 4 Application Form - California, Page 12
  • Form LAPG22-U ATP Cycle 4 Application Form - California, Page 13
  • Form LAPG22-U ATP Cycle 4 Application Form - California, Page 14
  • Form LAPG22-U ATP Cycle 4 Application Form - California, Page 15
  • Form LAPG22-U ATP Cycle 4 Application Form - California, Page 16
  • Form LAPG22-U ATP Cycle 4 Application Form - California, Page 17
Prev 1 2 3 4 5 ... 17 Next
ADVERTISEMENT