Form DBPR AR5 Application for Certificate of Authorization Architectural Business - Florida

Notification Icon This version of the form is not currently in use and is provided for reference only. Download this version of Form DBPR AR5 for the current year.

Form DBPR AR5 Application for Certificate of Authorization Architectural Business - Florida

What Is Form DBPR AR5?

This is a legal form that was released by the Florida Department of Business & Professional Regulation - a government authority operating within Florida. As of today, no separate filing guidelines for the form are provided by the issuing department.

FAQ

Q: What is a DBPR AR5 Application?
A: The DBPR AR5 Application is a form used to apply for a Certificate of Authorization for an architectural business in Florida.

Q: What is a Certificate of Authorization?
A: A Certificate of Authorization is a license issued by the state of Florida that allows an architectural business to operate legally.

Q: Who needs to fill out the DBPR AR5 Application?
A: Architectural businesses in Florida that want to operate legally need to fill out the DBPR AR5 Application.

Q: What information is required on the DBPR AR5 Application?
A: The DBPR AR5 Application requires information about the architectural business, its owners, and its qualifications.

Q: How long does it take to process the DBPR AR5 Application?
A: The processing time for the DBPR AR5 Application can vary, but it typically takes several weeks.

Q: Are there any additional requirements to obtain a Certificate of Authorization?
A: Yes, in addition to the DBPR AR5 Application, there may be additional requirements such as proof of professional liability insurance and evidence of experience.

Q: Can I operate an architectural business in Florida without a Certificate of Authorization?
A: No, operating an architectural business in Florida without a Certificate of Authorization is illegal.

Q: What should I do if I have questions or need assistance with the DBPR AR5 Application?
A: If you have questions or need assistance with the DBPR AR5 Application, you can contact the Florida Department of Business and Professional Regulation (DBPR) for guidance.

ADVERTISEMENT

Form Details:

  • Released on December 12, 2012;
  • The latest edition provided by the Florida Department of Business & Professional Regulation;
  • Easy to use and ready to print;
  • Quick to customize;
  • Compatible with most PDF-viewing applications;
  • Fill out the form in our online filing application.

Download a fillable version of Form DBPR AR5 by clicking the link below or browse more documents and templates provided by the Florida Department of Business & Professional Regulation.

Download Form DBPR AR5 Application for Certificate of Authorization Architectural Business - Florida

4.5 of 5 (47 votes)
  • Form DBPR AR5 Application for Certificate of Authorization Architectural Business - Florida

    1

  • Form DBPR AR5 Application for Certificate of Authorization Architectural Business - Florida, Page 2

    2

  • Form DBPR AR5 Application for Certificate of Authorization Architectural Business - Florida, Page 3

    3

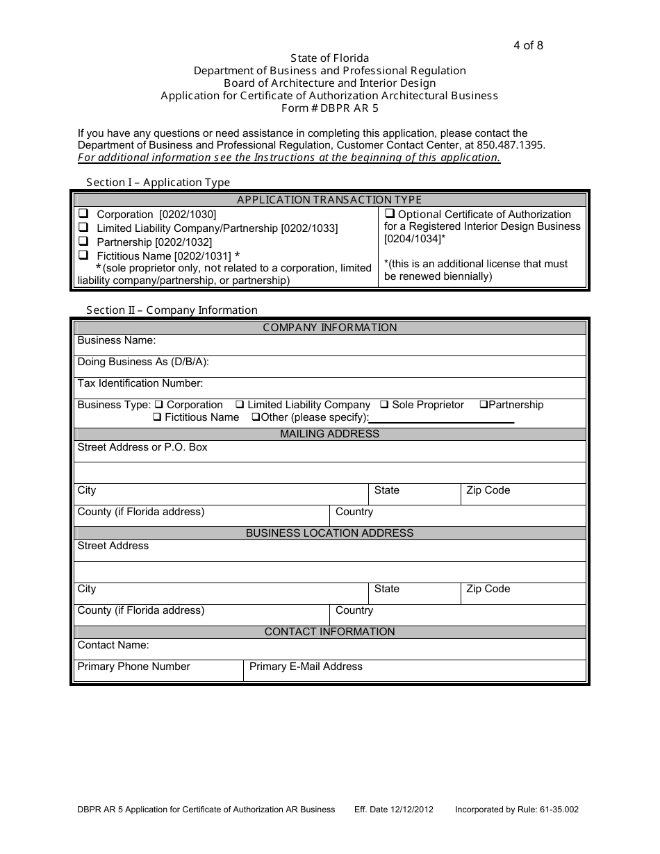
  • Form DBPR AR5 Application for Certificate of Authorization Architectural Business - Florida, Page 4

    4

  • Form DBPR AR5 Application for Certificate of Authorization Architectural Business - Florida, Page 5

    5

  • Form DBPR AR5 Application for Certificate of Authorization Architectural Business - Florida, Page 6

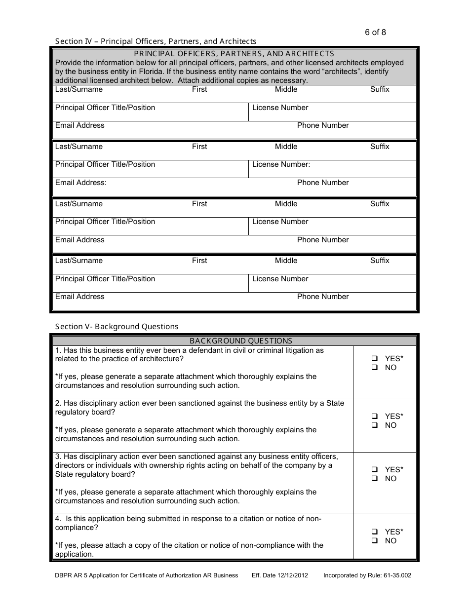
    6

  • Form DBPR AR5 Application for Certificate of Authorization Architectural Business - Florida, Page 7

    7

  • Form DBPR AR5 Application for Certificate of Authorization Architectural Business - Florida, Page 8

    8

  • Form DBPR AR5 Application for Certificate of Authorization Architectural Business - Florida, Page 1
  • Form DBPR AR5 Application for Certificate of Authorization Architectural Business - Florida, Page 2
  • Form DBPR AR5 Application for Certificate of Authorization Architectural Business - Florida, Page 3
  • Form DBPR AR5 Application for Certificate of Authorization Architectural Business - Florida, Page 4
  • Form DBPR AR5 Application for Certificate of Authorization Architectural Business - Florida, Page 5
  • Form DBPR AR5 Application for Certificate of Authorization Architectural Business - Florida, Page 6
  • Form DBPR AR5 Application for Certificate of Authorization Architectural Business - Florida, Page 7
  • Form DBPR AR5 Application for Certificate of Authorization Architectural Business - Florida, Page 8
Prev 1 2 3 4 5 ... 8 Next
ADVERTISEMENT

Related Documents