Form DBPR AR4 Architect or Architect Business Seeking Licensure as Interior Designer - Florida

Notification Icon This version of the form is not currently in use and is provided for reference only. Download this version of Form DBPR AR4 for the current year.

Form DBPR AR4 Architect or Architect Business Seeking Licensure as Interior Designer - Florida

What Is Form DBPR AR4?

This is a legal form that was released by the Florida Department of Business & Professional Regulation - a government authority operating within Florida. As of today, no separate filing guidelines for the form are provided by the issuing department.

FAQ

Q: What is the DBPR AR4 form?
A: The DBPR AR4 form is a document used for architects or architect businesses seeking licensure as interior designers in Florida.

Q: Who needs to use the DBPR AR4 form?
A: Architects or architect businesses who wish to become licensed as interior designers in Florida need to use the DBPR AR4 form.

Q: What is the purpose of the DBPR AR4 form?
A: The purpose of the DBPR AR4 form is to apply for licensure as an interior designer in Florida for architects or architect businesses.

Q: What information is required on the DBPR AR4 form?
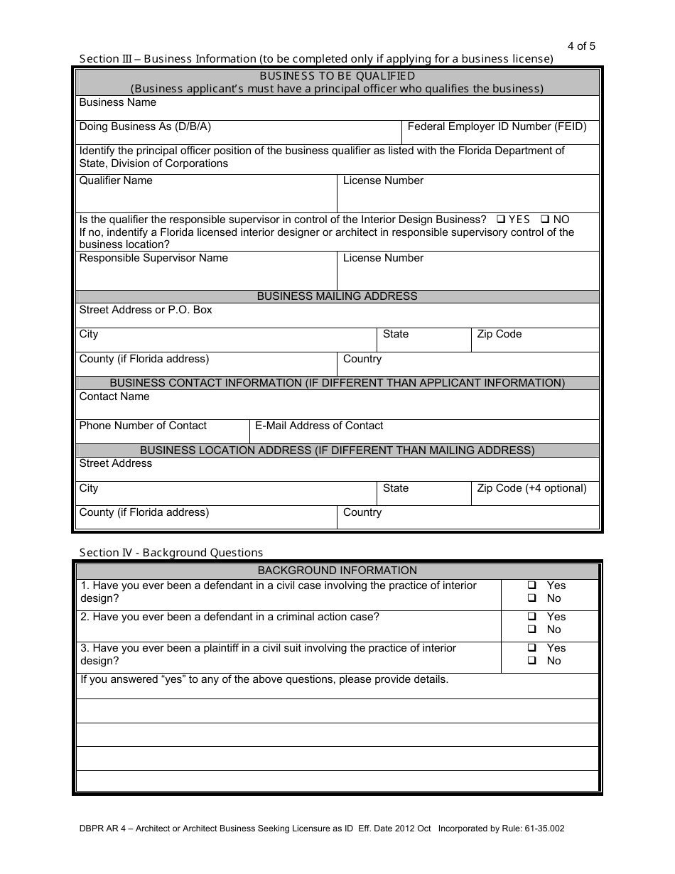
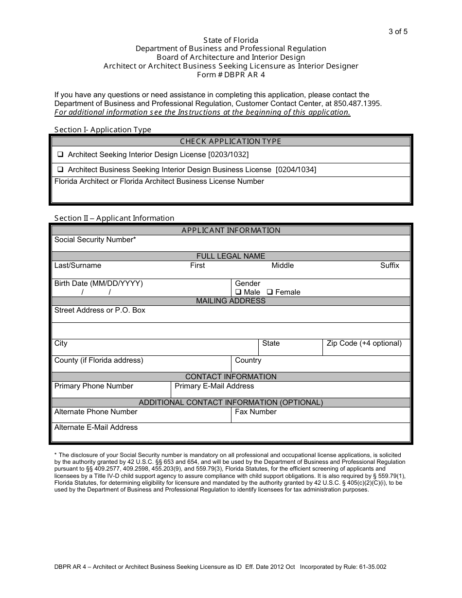
A: The DBPR AR4 form requires information such as personal details, education and experience, examination results, and professional references.

ADVERTISEMENT

Form Details:

  • Released on October 1, 2012;
  • The latest edition provided by the Florida Department of Business & Professional Regulation;
  • Easy to use and ready to print;
  • Quick to customize;
  • Compatible with most PDF-viewing applications;
  • Fill out the form in our online filing application.

Download a fillable version of Form DBPR AR4 by clicking the link below or browse more documents and templates provided by the Florida Department of Business & Professional Regulation.

Download Form DBPR AR4 Architect or Architect Business Seeking Licensure as Interior Designer - Florida

4.6 of 5 (81 votes)
  • Form DBPR AR4 Architect or Architect Business Seeking Licensure as Interior Designer - Florida

    1

  • Form DBPR AR4 Architect or Architect Business Seeking Licensure as Interior Designer - Florida, Page 2

    2

  • Form DBPR AR4 Architect or Architect Business Seeking Licensure as Interior Designer - Florida, Page 3

    3

  • Form DBPR AR4 Architect or Architect Business Seeking Licensure as Interior Designer - Florida, Page 4

    4

  • Form DBPR AR4 Architect or Architect Business Seeking Licensure as Interior Designer - Florida, Page 5

    5

  • Form DBPR AR4 Architect or Architect Business Seeking Licensure as Interior Designer - Florida, Page 1
  • Form DBPR AR4 Architect or Architect Business Seeking Licensure as Interior Designer - Florida, Page 2
  • Form DBPR AR4 Architect or Architect Business Seeking Licensure as Interior Designer - Florida, Page 3
  • Form DBPR AR4 Architect or Architect Business Seeking Licensure as Interior Designer - Florida, Page 4
  • Form DBPR AR4 Architect or Architect Business Seeking Licensure as Interior Designer - Florida, Page 5
Prev 1 2 3 4 5 Next
ADVERTISEMENT