Form DBPR AU-4154 License Maintenance / Status Change Form - Florida

Form DBPR AU-4154 License Maintenance / Status Change Form - Florida

What Is Form DBPR AU-4154?

This is a legal form that was released by the Florida Department of Business & Professional Regulation - a government authority operating within Florida. As of today, no separate filing guidelines for the form are provided by the issuing department.

FAQ

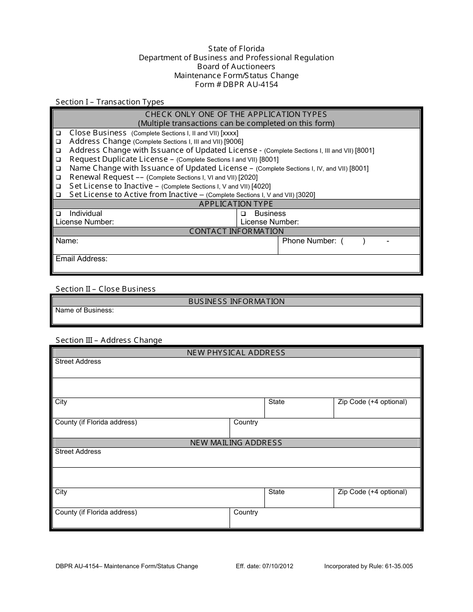
Q: What is the DBPR AU-4154 License Maintenance/Status Change Form?
A: The DBPR AU-4154 License Maintenance/Status Change Form is a document used in Florida for making changes to a license or maintaining its status.

Q: What can be done with the DBPR AU-4154 form?
A: The DBPR AU-4154 form can be used to request changes to a license, such as adding or removing a qualifier, updating contact information, or requesting a change in license status.

Q: What information is required on the DBPR AU-4154 form?
A: The DBPR AU-4154 form requires information such as the licensee's name, license number, contact information, and details of the requested changes or maintenance.

Q: Is there a fee for submitting the DBPR AU-4154 form?
A: Yes, there may be a fee associated with submitting the DBPR AU-4154 form. The fee amount varies depending on the type of license and the requested changes.

Q: How long does it take for changes or maintenance to be processed with the DBPR AU-4154 form?
A: The processing time for changes or maintenance requested through the DBPR AU-4154 form can vary. It is recommended to check with the DBPR for an estimated processing time.

Q: Are there any specific regulations or requirements for using the DBPR AU-4154 form?
A: Yes, it is important to carefully review any instructions or guidelines provided with the DBPR AU-4154 form to ensure compliance with regulations and requirements set by the DBPR.

Q: Can I use the DBPR AU-4154 form for licenses in other states?
A: No, the DBPR AU-4154 form is specific to license maintenance and status changes in Florida. For licenses in other states, you will need to consult the respective licensing authority for the appropriate form or process.

Q: Can I get assistance or more information about the DBPR AU-4154 form?
A: Yes, if you need assistance or more information about the DBPR AU-4154 form, you can contact the Florida Department of Business and Professional Regulation (DBPR) directly.

ADVERTISEMENT

Form Details:

  • Released on July 10, 2012;
  • The latest edition provided by the Florida Department of Business & Professional Regulation;
  • Easy to use and ready to print;
  • Quick to customize;
  • Compatible with most PDF-viewing applications;
  • Fill out the form in our online filing application.

Download a fillable version of Form DBPR AU-4154 by clicking the link below or browse more documents and templates provided by the Florida Department of Business & Professional Regulation.

Download Form DBPR AU-4154 License Maintenance / Status Change Form - Florida

4.7 of 5 (40 votes)
  • Form DBPR AU-4154 License Maintenance/Status Change Form - Florida

    1

  • Form DBPR AU-4154 License Maintenance/Status Change Form - Florida, Page 2

    2

  • Form DBPR AU-4154 License Maintenance/Status Change Form - Florida, Page 3

    3

  • Form DBPR AU-4154 License Maintenance/Status Change Form - Florida, Page 4

    4

  • Form DBPR AU-4154 License Maintenance / Status Change Form - Florida, Page 1
  • Form DBPR AU-4154 License Maintenance / Status Change Form - Florida, Page 2
  • Form DBPR AU-4154 License Maintenance / Status Change Form - Florida, Page 3
  • Form DBPR AU-4154 License Maintenance / Status Change Form - Florida, Page 4
Prev 1 2 3 4 Next
ADVERTISEMENT